Se Connecter/S’inscrire
Votre courriel a été envoyé.
173 S Lee St - 173 S Lee St Immeuble de 5 040 pi² • Soins de santé • À vendre • Forsyth, GA 31029



Certaines informations ont été traduites automatiquement.
Résumé de l'annonce
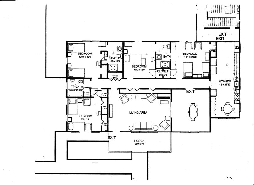
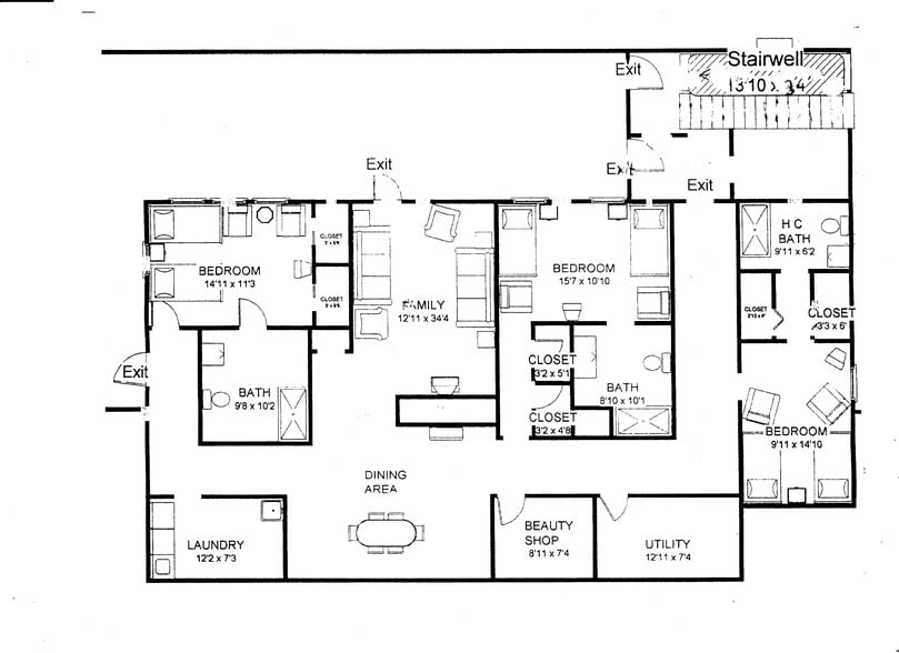
Income producing personal home care business opportunity with expansion potential operating out of well appointed 7/BR/6BA residence. This turnkey operation allows a buyer to step into an established setup without starting from scratch. BUSINESS SALE ONLY real estate not included. Property available for lease at $6,000 per month pending landlord approval. For Building- 1. term: 5 years 2. NNN lease 3. $6,000 per month 4. 3% annual increase 5. Personal Guarantee
Faits sur la propriété
| Type de vente | Investissement ou propriétaire utilisateur | Taille du bâtiment | 5 040 pi² |
| Type de propriété | Soins de santé | Nbre de lits | 7 |
| Sous-type de propriété | Logement avec assistance | Nombre d’étages | 2 |
| Classe d’immeuble | C | Année de construction | 1960 |
| Taille du lot | 0,72 AC | ||
| Zonage | C - Commercial | ||
| Type de vente | Investissement ou propriétaire utilisateur |
| Type de propriété | Soins de santé |
| Sous-type de propriété | Logement avec assistance |
| Classe d’immeuble | C |
| Taille du lot | 0,72 AC |
| Taille du bâtiment | 5 040 pi² |
| Nbre de lits | 7 |
| Nombre d’étages | 2 |
| Année de construction | 1960 |
| Zonage | C - Commercial |
1 1
Plutôt praticable à pied
30/100
Exceptionnellement facile d’accès en voiture
100/100
Assez praticable en vélo
20/100
Impôts fonciers
| Numéro de lot | F27-029 | Évaluation des bâtiments | 111 518 $ CAD |
| Évaluation du terrain | 21 043 $ CAD | Évaluation totale | 132 561 $ CAD |
Impôts fonciers
Numéro de lot
F27-029
Évaluation du terrain
21 043 $ CAD
Évaluation des bâtiments
111 518 $ CAD
Évaluation totale
132 561 $ CAD
1 de 28
Vidéos
Visite extérieure 3D Matterport
Visite 3D Matterport
Photos
Vue depuis la rue
Rue
Carte
1 de 1
Présenté par
Self Property Advisors, LLC
173 S Lee St - 173 S Lee St
Vous êtes déjà membre? Connectez-vous
Hmm, il semble y avoir eu une erreur lors de l’envoi de votre message. Veuillez réessayer.
Merci! Votre message a été envoyé.
