Se Connecter/S’inscrire
Votre courriel a été envoyé.
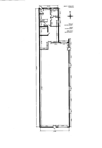
174-176 Easy Street 174-176 Easy St 12 000 pi² 100% Loué Industriel Immeuble Carol Stream, IL 60188 À vendre



Certaines informations ont été traduites automatiquement.
Faits saillants de l'investissement
- Equipped with 2 dock-high doors, 2 drive-in doors, and wet sprinkler system.
- Close proximity to major highways, rail hubs, and O’Hare International Airport.
Résumé de l'annonce
174–176 Easy Street is a 12,000 SF industrial building situated on 0.67 acres in Carol Stream, Illinois. The property features two divisible units with dock-high and drive-in loading, 16-foot clear height, and an open-span layout with no interior columns. Located in the Easy Street Industrial Park, it offers convenient access to Route 64, I-355, and I-290, and is approximately 20 miles from O’Hare International Airport.
Faits sur la propriété
Commodités
- Accès 24 heures
- Drains de sol
- Chargement frontal
- Système de sécurité
- Puits de lumière
- Réception
- Climatisation
- Internet par fibre optique
- Détecteur de fumée
Services publics
- Éclairage
- Gaz - Naturel
- Eau
- Égout
- Chauffage - Gaz
1 1
Assez practicable à pied
40/100
Très facile d'accès en voiture
80/100
Transports en commun très limités
10/100
Plutôt praticable en vélo
50/100
Impôts fonciers
| Numéro de lot | 05-05-206-012 | Évaluation des bâtiments | 349 457 $ CAD |
| Évaluation du terrain | 68 153 $ CAD | Évaluation totale | 417 610 $ CAD |
Impôts fonciers
Numéro de lot
05-05-206-012
Évaluation du terrain
68 153 $ CAD
Évaluation des bâtiments
349 457 $ CAD
Évaluation totale
417 610 $ CAD
1 de 4
Vidéos
Visite extérieure 3D Matterport
Visite 3D Matterport
Photos
Vue depuis la rue
Rue
Carte
1 de 1
Présenté par
Charly Lonappan Properties
174-176 Easy Street | 174-176 Easy St
Vous êtes déjà membre? Connectez-vous
Hmm, il semble y avoir eu une erreur lors de l’envoi de votre message. Veuillez réessayer.
Merci! Votre message a été envoyé.
