Se Connecter/S’inscrire
Votre courriel a été envoyé.
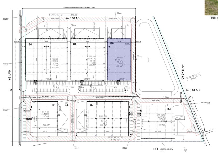
17620 Eastex Fwy 37 700 pi² Industriel Immeuble Humble, TX 77396 80 935 800 $ CAD (2 146,84 $ CAD/pi²)



Certaines informations ont été traduites automatiquement.
Résumé de l'annonce
Property Type: Industrial / Flex
Building SF: ± 37,700 SF
Office SF: ±1,293 SF
Clear Height 32 feet
ESFR
Power: 3 Phase/ 480 Volts /400 Amp
Five(5) 9'-0" x 10'-0" MANUAL OVERHEAD DOCK DOOR
One(1) 12'-0" x 14'-0" MOTORIZED OVERHEAD DOOR WITH
RAMP
Building SF: ± 37,700 SF
Office SF: ±1,293 SF
Clear Height 32 feet
ESFR
Power: 3 Phase/ 480 Volts /400 Amp
Five(5) 9'-0" x 10'-0" MANUAL OVERHEAD DOCK DOOR
One(1) 12'-0" x 14'-0" MOTORIZED OVERHEAD DOOR WITH
RAMP
Faits sur la propriété
| Prix | 80 935 800 $ CAD | Nombre d’étages | 1 |
| Prix par pi² | 2 146,84 $ CAD | Année de construction | 2024 |
| Type de vente | Investissement ou propriétaire utilisateur | Location | Unique |
| Type de propriété | Industriel | Effacer hauteur du plafond | 32’ |
| Classe d’immeuble | A | Nbre de quais à portes élevées/de chargement | 5 |
| Taille du lot | 1,00 AC | Nbre d’entrées dans les portes/au niveau du sol | 1 |
| Aire du bâtiment louable | 37 700 pi² |
| Prix | 80 935 800 $ CAD |
| Prix par pi² | 2 146,84 $ CAD |
| Type de vente | Investissement ou propriétaire utilisateur |
| Type de propriété | Industriel |
| Classe d’immeuble | A |
| Taille du lot | 1,00 AC |
| Aire du bâtiment louable | 37 700 pi² |
| Nombre d’étages | 1 |
| Année de construction | 2024 |
| Location | Unique |
| Effacer hauteur du plafond | 32’ |
| Nbre de quais à portes élevées/de chargement | 5 |
| Nbre d’entrées dans les portes/au niveau du sol | 1 |
Impôts fonciers
| Numéro de lot | 1423540010003 | Évaluation des bâtiments | 7 583 142 $ CAD |
| Évaluation du terrain | 750 769 $ CAD | Évaluation totale | 8 333 911 $ CAD |
Impôts fonciers
Numéro de lot
1423540010003
Évaluation du terrain
750 769 $ CAD
Évaluation des bâtiments
7 583 142 $ CAD
Évaluation totale
8 333 911 $ CAD
1 de 33
Vidéos
Visite extérieure 3D Matterport
Visite 3D Matterport
Photos
Vue depuis la rue
Rue
Carte
Présenté par
17620 Eastex Fwy
Vous êtes déjà membre? Connectez-vous
Hmm, il semble y avoir eu une erreur lors de l’envoi de votre message. Veuillez réessayer.
Merci! Votre message a été envoyé.
Votre message a été envoyé !
Activez votre compte LoopNet dès maintenant pour suivre les propriétés, recevoir des alertes en temps réel, gagner du temps sur vos demandes futures et bien plus encore.

