Votre courriel a été envoyé.
17741 65A Ave 5 915 pi² d'espace disponible • Industriel • Surrey, BC V3S 1Z8



Certaines informations ont été traduites automatiquement.
Faits saillants
- Emplacement industriel de choix à Cloverdale avec un excellent accès à l'autoroute
- Deux portes de chargement au niveau du sol pour des opérations efficaces
- Entièrement équipé de gicleurs, doté de systèmes CVC, et avec un vaste stationnement disponible
- Entrepôt lumineux avec de grandes vitrages et une hauteur libre de 22 pieds
- Plusieurs bureaux privés, salle de conférence et cuisinette inclus
Caractéristiques
Tous les espaces disponibles(1)
Afficher les taux de location en
- Espace
- Taille
- Terme
- Taux de location
- Utilisation de l’espace
- Aménagement
- Disponible
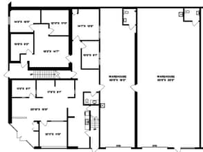
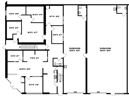
Possibilité de louer une unité d'entrepôt lumineuse avec bureaux sur deux étages dans la zone industrielle nord de Cloverdale. Construction de qualité en béton préfabriqué, vitrages abondants, plusieurs bureaux privés, salle de conférence, aire de réception, deux kitchenettes et grand espace de rangement au 2e étage. Emplacement central incroyable à proximité de l'autoroute Pacific Hwy 15, de l'autoroute BC Hwy 10 et de l'autoroute Fraser Hwy, avec un accès facile à l'autoroute 1, l'autoroute 99, la frontière américaine et la SFPR. Entouré de divers services professionnels et options de vente au détail au cœur de Cloverdale. Hauteur sous plafond : 22’ dégagé / 11’ dégagé (entrepôt) Stationnement : 18 places (plus stationnement abondant dans la rue) Mécanique : CVC, entièrement équipé de gicleurs Électricité : 135A/347/600V 3 phases Portes de chargement : Deux (2) portes de plain-pied
- Le taux de location ne comprend pas les services publics, les services de bâtiment ou les dépenses immobilières.
- 2 accès plain-pied
- Propriété entièrement aspergée.
- Comprend 2 775 pi² d’espace de bureau dédié
- Deux portes de chargement au niveau du sol.
| Espace | Taille | Terme | Taux de location | Utilisation de l’espace | Aménagement | Disponible |
| RDC - 104 | 5 915 pi² | Négociable | 18,00 $ CAD/pi²/an 1,50 $ CAD/pi²/mois 106 470 $ CAD/an 8 873 $ CAD/mois | Industriel | espace cloisonné | Maintenant |
RDC - 104
| Taille |
| 5 915 pi² |
| Terme |
| Négociable |
| Taux de location |
| 18,00 $ CAD/pi²/an 1,50 $ CAD/pi²/mois 106 470 $ CAD/an 8 873 $ CAD/mois |
| Utilisation de l’espace |
| Industriel |
| Aménagement |
| espace cloisonné |
| Disponible |
| Maintenant |
RDC - 104
| Taille | 5 915 pi² |
| Terme | Négociable |
| Taux de location | 18,00 $ CAD/pi²/an |
| Utilisation de l’espace | Industriel |
| Aménagement | espace cloisonné |
| Disponible | Maintenant |
Possibilité de louer une unité d'entrepôt lumineuse avec bureaux sur deux étages dans la zone industrielle nord de Cloverdale. Construction de qualité en béton préfabriqué, vitrages abondants, plusieurs bureaux privés, salle de conférence, aire de réception, deux kitchenettes et grand espace de rangement au 2e étage. Emplacement central incroyable à proximité de l'autoroute Pacific Hwy 15, de l'autoroute BC Hwy 10 et de l'autoroute Fraser Hwy, avec un accès facile à l'autoroute 1, l'autoroute 99, la frontière américaine et la SFPR. Entouré de divers services professionnels et options de vente au détail au cœur de Cloverdale. Hauteur sous plafond : 22’ dégagé / 11’ dégagé (entrepôt) Stationnement : 18 places (plus stationnement abondant dans la rue) Mécanique : CVC, entièrement équipé de gicleurs Électricité : 135A/347/600V 3 phases Portes de chargement : Deux (2) portes de plain-pied
- Le taux de location ne comprend pas les services publics, les services de bâtiment ou les dépenses immobilières.
- Comprend 2 775 pi² d’espace de bureau dédié
- 2 accès plain-pied
- Deux portes de chargement au niveau du sol.
- Propriété entièrement aspergée.
Aperçu de la propriété
Situé stratégiquement à proximité de la Pacific Highway 15, de la route provinciale 10 (BC Highway 10) et de la Fraser Highway, le site offre un accès rapide à l’autoroute 1 (6 minutes), à l’autoroute 99 (12 minutes), à la frontière américaine (17 minutes) et à la South Fraser Perimeter Road (20 minutes). Entourée de services professionnels et de commerces de détail, cette adresse offre commodité et connectivité pour les entreprises en croissance.
Faits sur l’installation fabrication
Sélectionner des locataires
- Nom du locataire
- Secteur
- Electrum Charging Solutions
- Fabrication
Présenté par
17741 65A Ave
Hmm, il semble y avoir eu une erreur lors de l’envoi de votre message. Veuillez réessayer.
Merci! Votre message a été envoyé.



