Se Connecter/S’inscrire
Votre courriel a été envoyé.
Certaines informations ont été traduites automatiquement.
Faits saillants de l'investissement
- Ideal for warehousing, distribution, and light industrial operations with a clean layout and efficient functionality.
- Supports high-stack racking, increased storage capacity, and optimized operational flow.
- Enhances convenience and accessibility within the business park.
- Includes reception area, multiple private offices, and restrooms—perfect for administrative, management, or customer-facing needs.
- Provides excellent loading flexibility for a variety of trucking and logistics requirements.
- Just 2.3 miles from the I-10, surrounded by nearby retail amenities, improving employee convenience and supporting business operations.
Résumé de l'annonce
The property at 1750-1780 Foothill Blvd. in Upland, California, is part of the MVP Foothill Business Park, offering industrial spaces suitable for various business needs. The business park has ample surface parking, enhancing accessibility for tenants and visitors.
Faits sur la propriété
| Type de vente | Investissement ou propriétaire utilisateur | État de la construction | Proposé |
| Type de propriété | Industriel | Aire du bâtiment louable | 51 959 pi² |
| Classe d’immeuble | B | Nombre d’étages | 1 |
| Zonage | MU - Mixed Use | ||
| Type de vente | Investissement ou propriétaire utilisateur |
| Type de propriété | Industriel |
| Classe d’immeuble | B |
| État de la construction | Proposé |
| Aire du bâtiment louable | 51 959 pi² |
| Nombre d’étages | 1 |
| Zonage | MU - Mixed Use |
Disponibilité des espaces
- Espace
- Taille
- Utilisation de l’espace
- Aménagement
- Disponible
| Espace | Taille | Utilisation de l’espace | Aménagement | Disponible |
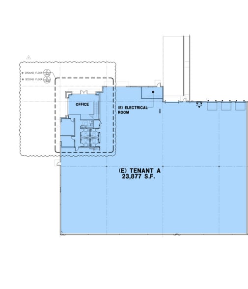
| 1er Ét. - A | 23 877 pi² | Industriel | espace cloisonné | À déterminer |
| 1er Ét. - B | 28 082 pi² | Industriel | espace cloisonné | Maintenant |
1er Ét. - A
| Taille |
| 23 877 pi² |
| Utilisation de l’espace |
| Industriel |
| Aménagement |
| espace cloisonné |
| Disponible |
| À déterminer |
1er Ét. - B
| Taille |
| 28 082 pi² |
| Utilisation de l’espace |
| Industriel |
| Aménagement |
| espace cloisonné |
| Disponible |
| Maintenant |
1 de 3
Vidéos
Visite extérieure 3D Matterport
Visite 3D Matterport
Photos
Vue depuis la rue
Rue
Carte
1er Ét. - A
| Taille | 23 877 pi² |
| Utilisation de l’espace | Industriel |
| Aménagement | espace cloisonné |
| Disponible | À déterminer |
1 de 4
Vidéos
Visite extérieure 3D Matterport
Visite 3D Matterport
Photos
Vue depuis la rue
Rue
Carte
1er Ét. - B
| Taille | 28 082 pi² |
| Utilisation de l’espace | Industriel |
| Aménagement | espace cloisonné |
| Disponible | Maintenant |
1 1
Assez praticable à pied
50/100
Exceptionnellement facile d’accès en voiture
90/100
Transports en commun limités
30/100
Plutôt praticable en vélo
40/100
Impôts fonciers
| Numéro de lot | 1007-091-01 | Évaluation des bâtiments | 1 273 466 $ CAD |
| Évaluation du terrain | 4 415 266 $ CAD | Évaluation totale | 5 688 732 $ CAD |
Impôts fonciers
Numéro de lot
1007-091-01
Évaluation du terrain
4 415 266 $ CAD
Évaluation des bâtiments
1 273 466 $ CAD
Évaluation totale
5 688 732 $ CAD
1 de 4
Vidéos
Visite extérieure 3D Matterport
Visite 3D Matterport
Photos
Vue depuis la rue
Rue
Carte
1 de 1
Présenté par
1780 W Foothill Blvd
Vous êtes déjà membre? Connectez-vous
Hmm, il semble y avoir eu une erreur lors de l’envoi de votre message. Veuillez réessayer.
Merci! Votre message a été envoyé.









