Votre courriel a été envoyé.
Former Panera Bread | 4,849 SF End-Cap 1781 Dunlawton Ave 4 849 pi² d'espace disponible • Commerce de détail • Port Orange, FL 32127



Certaines informations ont été traduites automatiquement.
Faits saillants
- 4,849 SF former Panera end-cap with outdoor seating
- Strong co-tenancy with Target, Lowe’s, Chick-fil-A, Starbucks, and others
- Divisible space with excellent visibility and LED signage
- Ideal for restaurant, retail, medical, or fitness users
Disponibilité de l’espace (1)
Afficher les taux de location en
- Espace
- Taille
- Terme
- Taux de location
- Type de loyer
| Espace | Taille | Terme | Taux de location | Type de loyer | ||
| 1er étage, ste 4 | 4 849 pi² | Négociable | 61,55 $ CAD/pi²/an 5,13 $ CAD/pi²/mois 298 435 $ CAD/an 24 870 $ CAD/mois | Loyer hypernet |
1er étage, ste 4
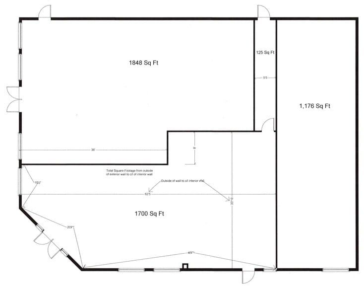
Former Panera Bread for Lease in Port Orange Gateway Center. This 4,849 SF end-cap space with outdoor seating is located on high-traffic Dunlawton Avenue in a wellpositioned shopping center just off I-95. May be divided into smaller spaces ranging from 1,100 to 1,700 SF. High-visibility location for restaurant, retail, medical, fitness, showroom, or other uses. The property has direct frontage and signage, including an LED message board. Co-tenants include Hand & Stone, Great Clips, Pizza Hut, Tropical Smoothie Cafe, and Thai Kitchen by Saowanee. Outparcel to Target and Lowe’s and adjacent to Chick-fil-A, First Watch, Chipotle, Starbucks, and others, driving strong daily traffic and brand exposure. Front and rear parking available. Estimated CAM, Real Estate Taxes, and Insurance $13.35 per SF. LOCATION DESCRIPTION Located on Dunlawton Avenue, Port Orange’s primary eastwest corridor just east of I-95, with immediate access via the Dunlawton interchange.
- Le taux de location ne comprend pas les services publics, les services de bâtiment ou les dépenses immobilières.
- Entièrement construit comme Espace pour un restaurant ou un café
- Espace embout très recherché
- 4,849 SF former Panera end-cap w/ outdoor seating
- Divisible space with excellent visibility and LED
- Strong co-tenancy with Target, Lowe’s, Chick-fil-A
- Ideal for restaurant, retail, medical, or fitness
Types de loyers
Le type et le montant du loyer que le locataire (preneur) est tenu de payer au propriétaire (bailleur) sur la durée du bail sont négociés avant la signature du bail par les deux parties. Le type de loyer varie selon les services fournis. Par exemple, le prix d’un loyer hypernet est habituellement inférieur à celui d’un bail à service complet puisque le locataire est tenu d’assumer des dépenses additionnelles par rapport au loyer de base. Contactez le courtier inscripteur pour tout connaître sur les frais connexes et additionnels associés à chaque type de loyer.
1. Service complet: Un taux de location qui comprend des services standards liés à l’immeuble fournis par le propriétaire dans le cadre d’une location annuelle de base.
2. Loyer supernet: Le locataire paie seulement deux des frais de l’immeuble. Le propriétaire et le locataire déterminent ces frais spécifiques avant la signature du bail.
3. Loyer hypernet: Un bail en vertu duquel le locataire est responsable de tous les frais liés à sa part proportionnelle d’occupation de l’immeuble.
4. Brut modifié: Le loyer brut modifié désigne un type général de taux de location dans lequel le locataire est habituellement responsable de sa part proportionnelle d’un ou de plusieurs frais. C’est le propriétaire qui paie les frais restants. Considérez les structures tarifaires courantes suivantes applicables aux loyers bruts modifiés: 4. Plus les services: Un type de bail brut modifié suivant lequel le locataire est responsable de sa part proportionnelle des coûts des services publics, en plus du loyer. 4. Plus le nettoyage: Un type de bail brut modifié suivant lequel le locataire est responsable de sa part proportionnelle des coûts de nettoyage, en plus du loyer. 4. Plus l'électricité: Un type de bail brut modifié suivant lequel le locataire est responsable de sa part proportionnelle des coûts d’électricité, en plus du loyer. 4. Plus l’électricité et le nettoyage: Un type de bail brut modifié dans lequel le locataire est responsable de sa part proportionnelle des coûts d’électricité et de nettoyage, en plus du loyer. 4. Plus les services publics et le nettoyage: Un type de bail brut modifié dans lequel le locataire est responsable de sa part proportionnelle des coûts des services publics et de nettoyage, en plus du loyer. 4. Bail industriel brut: Un type de bail brut modifié dans lequel le locataire paie un ou plusieurs des frais, en plus du loyer. Le propriétaire et le locataire déterminent ces frais spécifiques avant la signature du bail.
5. L’électricité est à la charge du locataire: Le propriétaire paie pour tous les services et le locataire est responsable de sa propre utilisation de l’éclairage et des prises électriques dans l’espace qu’il occupe.
6. Négociable ou sur demande: Cette option est utilisée lorsque le contact de location ne précise pas le type de loyer ou de service.
7. À déterminer: À déterminer ; utilisé pour les immeubles dont le type de services ou de loyer n’est pas connu, souvent quand l’immeuble n’est pas encore construit.
Sélectionner des locataires à Former Panera Bread | 4,849 SF End-Cap
- Locataire
- Description
- Emplacements US
- Portée
- Classy Nails
- Salon / Barbier / Spa
- 1
- -
- Hand & Stone Massage and Facial Spa
- Massage
- 790
- International
- Panera Bread
- Boulangerie
- 2 830
- International
- Pizza Hut
- Pizza
- 8 466
- International
- Thai Kitchen By Saowannee
- -
- 1
- -
- Tropical Smoothie Cafe
- Restauration rapide
- 2 046
- National
| Locataire | Description | Emplacements US | Portée |
| Classy Nails | Salon / Barbier / Spa | 1 | - |
| Hand & Stone Massage and Facial Spa | Massage | 790 | International |
| Panera Bread | Boulangerie | 2 830 | International |
| Pizza Hut | Pizza | 8 466 | International |
| Thai Kitchen By Saowannee | - | 1 | - |
| Tropical Smoothie Cafe | Restauration rapide | 2 046 | National |
Faits sur la propriété
| Superficie totale disponible | 4 849 pi² | Superficie totale du terrain | 1,61 AC |
| Type de propriété | Commerce de détail | Année de construction | 2005 |
| Superficie commerciale brute | 14 092 pi² | Ratio de stationnement | 7,67/1 000 pi² |
| Superficie totale disponible | 4 849 pi² |
| Type de propriété | Commerce de détail |
| Superficie commerciale brute | 14 092 pi² |
| Superficie totale du terrain | 1,61 AC |
| Année de construction | 2005 |
| Ratio de stationnement | 7,67/1 000 pi² |
À propos de la propriété
Former Panera Bread for Lease in Port Orange Gateway Center. This 4,849 SF end-cap space with outdoor seating is located on high-traffic Dunlawton Avenue in a wellpositioned shopping center just off I-95. May be divided into smaller spaces ranging from 1,100 to 1,700 SF. High-visibility location for restaurant, retail, medical, fitness, showroom, or other uses. The property has direct frontage and signage, including an LED message board. Co-tenants include Hand & Stone, Great Clips, Pizza Hut, Tropical Smoothie Cafe, and Thai Kitchen by Saowanee. Outparcel to Target and Lowe’s and adjacent to Chick-fil-A, First Watch, Chipotle, Starbucks, and others, driving strong daily traffic and brand exposure. Front and rear parking available. Estimated CAM, Real Estate Taxes, and Insurance $13.35 per SF. LOCATION DESCRIPTION Located on Dunlawton Avenue, Port Orange’s primary eastwest corridor just east of I-95, with immediate access via the Dunlawton interchange.
- Ligne d'autobus
- Voie de virage obligatoire
- Visibilité de l'autoroute
- Enseigne sur pylône
- Affichage
Principaux détaillants à proximité
Présenté par
Former Panera Bread | 4,849 SF End-Cap | 1781 Dunlawton Ave
Hmm, il semble y avoir eu une erreur lors de l’envoi de votre message. Veuillez réessayer.
Merci! Votre message a été envoyé.


