Se Connecter/S’inscrire
Votre courriel a été envoyé.
180 Magnolia Square Ct 2 000 pi² 100% Loué Bureau Immeuble Aberdeen, NC 28315 753 500 $ CAD (376,75 $ CAD/pi²)



Certaines informations ont été traduites automatiquement.
Faits saillants de l'investissement
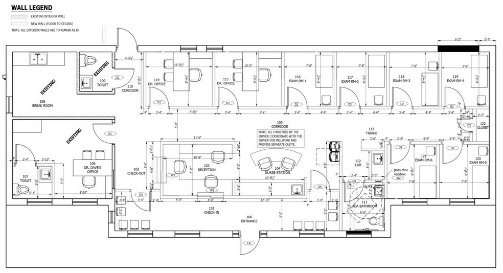
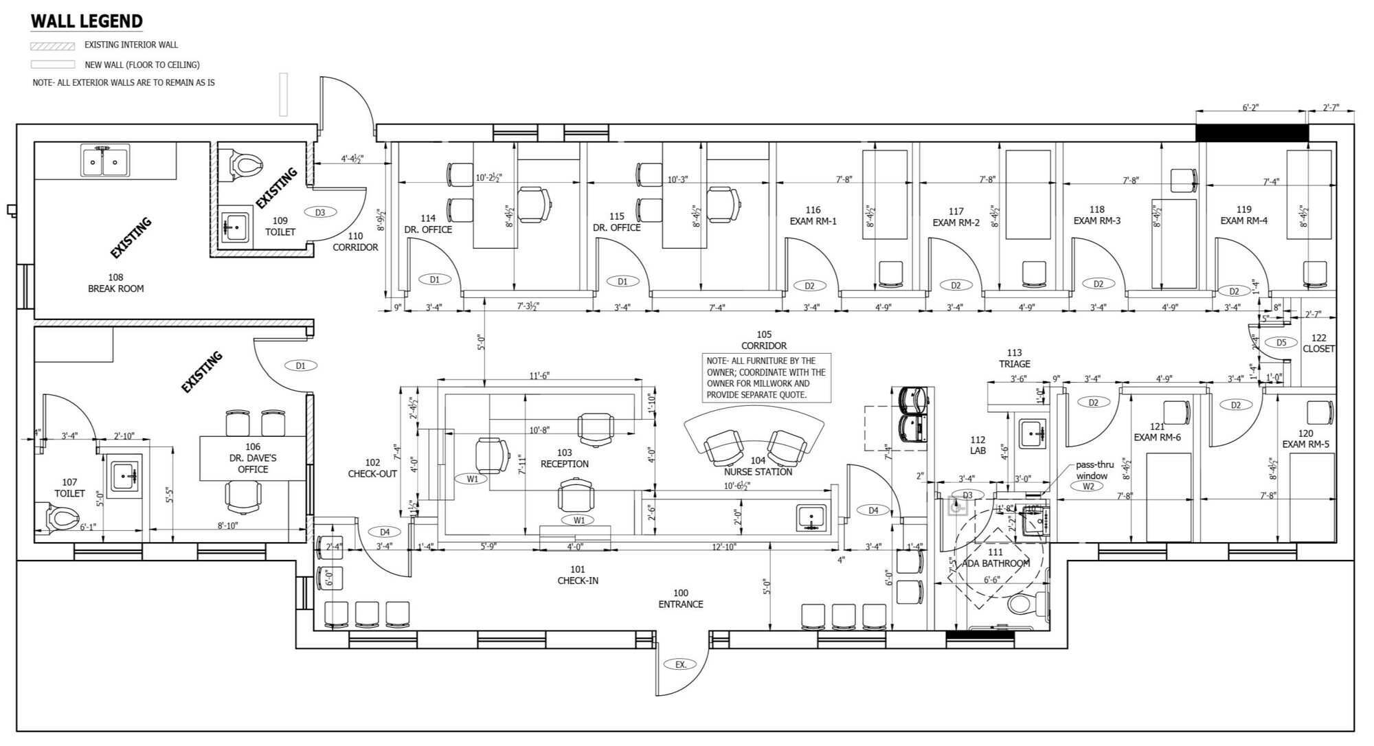
- +- 2015 SF turnkey medical office suite (Renovated 2021)
- Three restrooms and a Kitchenette
- Near US Hwy 1 and 15/501 junction
- Six exam rooms plus nurses' station and lobby
- Plenty of level parking, and level entry
- Minutes from Pinehurst and Southern Pines
Résumé de l'annonce
This professional +- 2,015 SF single-story cottage-style office building is now available for sale or lease with Magnolia Square Business Park, an established
commercial hub known for its clean design and consistent maintenance. Purpose-built for medical use , the space offers a thoughtful layout that supports efficient
patient flow and staff functionality. The interior includes a welcoming lobby with a centrally located nurse station and dual-window reception area for check in and
check out, along with six well proportioned exam rooms. Three restrooms and a kitchenette provide convenience for both staff and visitors, while high-quality
finishes throughout reflect a standard of care aligned with clinical and wellness tenants. This turnkey suite is ideal for medical, dental, or allied health practices
seeking a professional setting with minimal buildout requirements.
commercial hub known for its clean design and consistent maintenance. Purpose-built for medical use , the space offers a thoughtful layout that supports efficient
patient flow and staff functionality. The interior includes a welcoming lobby with a centrally located nurse station and dual-window reception area for check in and
check out, along with six well proportioned exam rooms. Three restrooms and a kitchenette provide convenience for both staff and visitors, while high-quality
finishes throughout reflect a standard of care aligned with clinical and wellness tenants. This turnkey suite is ideal for medical, dental, or allied health practices
seeking a professional setting with minimal buildout requirements.
Faits sur la propriété
Type de vente
Investissement ou propriétaire utilisateur
Type de propriété
Bureau
Sous-type de propriété
Médical
Taille du bâtiment
2 000 pi²
Classe d’immeuble
B
Année de construction/rénovation
2004/2016
Prix
753 500 $ CAD
Prix par pi²
376,75 $ CAD
Pourcentage loué
100%
Hauteur du bâtiment
1 étage
Superficie de plancher typique
2 000 pi²
Coefficient d’occupation des sols de l’immeuble
0,92
Taille du lot
0,05 AC
Zonage
CI - Commercial Industriel
Stationnement
6 places (3 places par 1 000 pi² loué)
Commodités
- Climatisation
Disponibilité des espaces
- Espace
- Taille
- Utilisation de l’espace
- Aménagement
- Disponible
±2,015 SF turnkey medical office suite Six exam rooms plus nurse station and lobby Three restrooms and a kitchenette Centrally located reception with dual windows for check-in/check-out Recently renovated in 2021 with modern finishes
| Espace | Taille | Utilisation de l’espace | Aménagement | Disponible |
| 1er étage | 2 000 pi² | Bureau | construction complète | 30 jours |
1er étage
| Taille |
| 2 000 pi² |
| Utilisation de l’espace |
| Bureau |
| Aménagement |
| construction complète |
| Disponible |
| 30 jours |
1 de 1
Vidéos
Visite extérieure 3D Matterport
Visite 3D Matterport
Photos
Vue depuis la rue
Rue
Carte
1er étage
| Taille | 2 000 pi² |
| Utilisation de l’espace | Bureau |
| Aménagement | construction complète |
| Disponible | 30 jours |
±2,015 SF turnkey medical office suite Six exam rooms plus nurse station and lobby Three restrooms and a kitchenette Centrally located reception with dual windows for check-in/check-out Recently renovated in 2021 with modern finishes
1 1
Assez praticable à pied
50/100
Exceptionnellement facile d’accès en voiture
100/100
Assez praticable en vélo
20/100
Impôts fonciers
| Numéro de lot | 8571-18-40-8731 | Évaluation des bâtiments | 400 341 $ CAD |
| Évaluation du terrain | 75 706 $ CAD | Évaluation totale | 476 048 $ CAD |
Impôts fonciers
Numéro de lot
8571-18-40-8731
Évaluation du terrain
75 706 $ CAD
Évaluation des bâtiments
400 341 $ CAD
Évaluation totale
476 048 $ CAD
1 de 9
Vidéos
Visite extérieure 3D Matterport
Visite 3D Matterport
Photos
Vue depuis la rue
Rue
Carte
1 de 1
Présenté par
180 Magnolia Square Ct
Vous êtes déjà membre? Connectez-vous
Hmm, il semble y avoir eu une erreur lors de l’envoi de votre message. Veuillez réessayer.
Merci! Votre message a été envoyé.


