Votre courriel a été envoyé.
Airport Corporate Center 1801 Penn St 3 292–13 372 pi² d'espace disponible • Industriel • Melbourne, FL 32901



Certaines informations ont été traduites automatiquement.
Faits saillants
- Shell Space - Prêt pour la construction des locataires !
- Dimensions intérieures : environ 50 pi de largeur x 65 pi de profondeur +/-
- 108 Common Parking Spaces. Potential for Additional Parking (Call for Details)
- Convient aux utilisations de haute technologie, de bureau, d'ingénierie et de R-D
- Le locateur envisagerait de verser une allocation de TI assujettie aux conditions du bail et au crédit des locataires
- Est. $5.15 PSF OPEX
Caractéristiques
Tous les espaces disponibles(2)
Afficher les taux de location en
- Espace
- Taille
- Terme
- Taux de location
- Utilisation de l’espace
- Aménagement
- Disponible
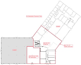
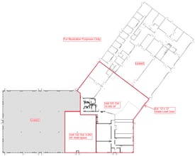
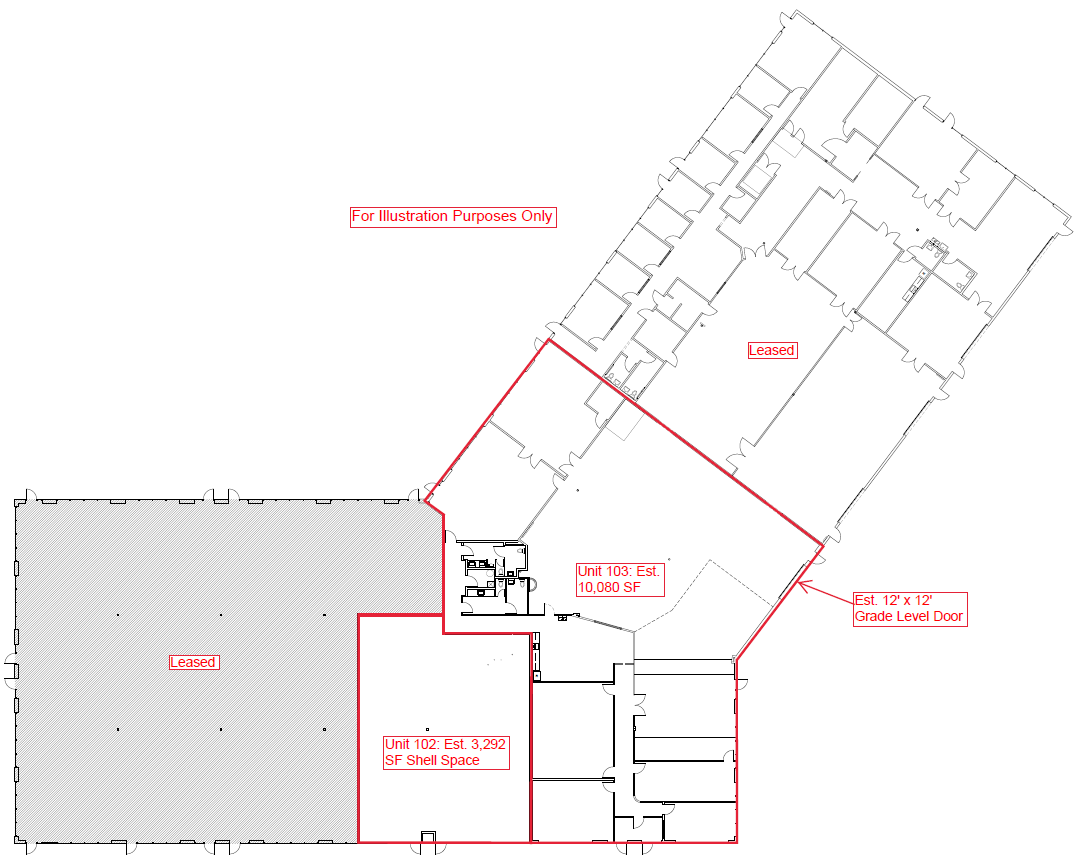
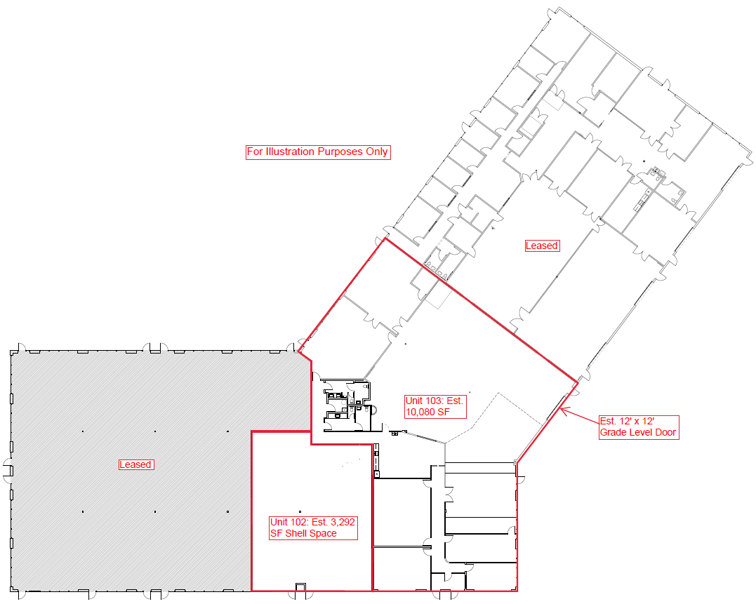
• Shell Space - Ready for Tenant Buildout! • Suitable for High-Tech / Office / Engineering / R&D Uses • Interior Dimensions Roughly 50' Wide x 66' Deep +/- • Concrete Floor and Exposed Ceiling Throughout • Lots of Windows/Sunlight along Northern Wall • Ceiling Height 16' +/- (Measured Floor to Bottom of Steel Truss) • Potential TI Allowance Subject to Lease Terms & Tenant Credit • Utilities: City of Melbourne Water/Sewer, FPL Electric • Estimated $5.15 PSF OPEX
- Le taux de location ne comprend pas les services publics, les services de bâtiment ou les dépenses immobilières.
- Espace Shell - Prêt pour la construction des locataires !
- Plancher de béton et plafond exposé partout
- Peut être associé à un ou plusieurs espaces supplémentaires pour obtenir jusqu’à 13 372 pi² d’espace adjacent.
- Convient pour la haute technologie, le bureau, l'ingénierie et la R-D
- Allocation TI potentielle assujettie au crédit locataire
• Unit 103 is est. 5,580 SF Office/Storage/Training Rooms + 4,500 SF Warehouse = 10,080 SF Total. • 100% HVAC & Fire Sprinklered. Compressed Air Lines. • Warehouse Concrete Flooring and est. 14' Drop Ceiling Throughout. • One 12' x 12' +/- Grade Level Door. • City of Melbourne Water/Sewer, FPL Electric. • 108 Common Parking Spaces. Potential for Additional Parking (Call for Details). • Est. $5.15 PSF OPEX.
- Le taux de location ne comprend pas les services publics, les services de bâtiment ou les dépenses immobilières.
- 1 accès plain-pied
- Est. 5,580 SF Office/Training + 4,500 SF Warehouse
- Est. 14' to Drop Ceiling in Warehouse.
- 108 Common Parking Spaces. Potential for More
- Comprend 5 580 pi² d’espace de bureau dédié
- Peut être associé à un ou plusieurs espaces supplémentaires pour obtenir jusqu’à 13 372 pi² d’espace adjacent.
- 100% HVAC & Fire Sprinklered. Compressed Air Lines
- One 12' x 12' +/- Grade Level Door
- Est. $5.15 PSF OPEX
| Espace | Taille | Terme | Taux de location | Utilisation de l’espace | Aménagement | Disponible |
| 1er étage - 102 | 3 292 pi² | Négociable | 18,02 $ CAD/pi²/an 1,50 $ CAD/pi²/mois 59 330 $ CAD/an 4 944 $ CAD/mois | Industriel | - | Maintenant |
| 1er étage - 103 | 10 080 pi² | Négociable | 18,02 $ CAD/pi²/an 1,50 $ CAD/pi²/mois 181 667 $ CAD/an 15 139 $ CAD/mois | Industriel | - | 30 jours |
1er étage - 102
| Taille |
| 3 292 pi² |
| Terme |
| Négociable |
| Taux de location |
| 18,02 $ CAD/pi²/an 1,50 $ CAD/pi²/mois 59 330 $ CAD/an 4 944 $ CAD/mois |
| Utilisation de l’espace |
| Industriel |
| Aménagement |
| - |
| Disponible |
| Maintenant |
1er étage - 103
| Taille |
| 10 080 pi² |
| Terme |
| Négociable |
| Taux de location |
| 18,02 $ CAD/pi²/an 1,50 $ CAD/pi²/mois 181 667 $ CAD/an 15 139 $ CAD/mois |
| Utilisation de l’espace |
| Industriel |
| Aménagement |
| - |
| Disponible |
| 30 jours |
1er étage - 102
| Taille | 3 292 pi² |
| Terme | Négociable |
| Taux de location | 18,02 $ CAD/pi²/an |
| Utilisation de l’espace | Industriel |
| Aménagement | - |
| Disponible | Maintenant |
• Shell Space - Ready for Tenant Buildout! • Suitable for High-Tech / Office / Engineering / R&D Uses • Interior Dimensions Roughly 50' Wide x 66' Deep +/- • Concrete Floor and Exposed Ceiling Throughout • Lots of Windows/Sunlight along Northern Wall • Ceiling Height 16' +/- (Measured Floor to Bottom of Steel Truss) • Potential TI Allowance Subject to Lease Terms & Tenant Credit • Utilities: City of Melbourne Water/Sewer, FPL Electric • Estimated $5.15 PSF OPEX
- Le taux de location ne comprend pas les services publics, les services de bâtiment ou les dépenses immobilières.
- Peut être associé à un ou plusieurs espaces supplémentaires pour obtenir jusqu’à 13 372 pi² d’espace adjacent.
- Espace Shell - Prêt pour la construction des locataires !
- Convient pour la haute technologie, le bureau, l'ingénierie et la R-D
- Plancher de béton et plafond exposé partout
- Allocation TI potentielle assujettie au crédit locataire
1er étage - 103
| Taille | 10 080 pi² |
| Terme | Négociable |
| Taux de location | 18,02 $ CAD/pi²/an |
| Utilisation de l’espace | Industriel |
| Aménagement | - |
| Disponible | 30 jours |
• Unit 103 is est. 5,580 SF Office/Storage/Training Rooms + 4,500 SF Warehouse = 10,080 SF Total. • 100% HVAC & Fire Sprinklered. Compressed Air Lines. • Warehouse Concrete Flooring and est. 14' Drop Ceiling Throughout. • One 12' x 12' +/- Grade Level Door. • City of Melbourne Water/Sewer, FPL Electric. • 108 Common Parking Spaces. Potential for Additional Parking (Call for Details). • Est. $5.15 PSF OPEX.
- Le taux de location ne comprend pas les services publics, les services de bâtiment ou les dépenses immobilières.
- Comprend 5 580 pi² d’espace de bureau dédié
- 1 accès plain-pied
- Peut être associé à un ou plusieurs espaces supplémentaires pour obtenir jusqu’à 13 372 pi² d’espace adjacent.
- Est. 5,580 SF Office/Training + 4,500 SF Warehouse
- 100% HVAC & Fire Sprinklered. Compressed Air Lines
- Est. 14' to Drop Ceiling in Warehouse.
- One 12' x 12' +/- Grade Level Door
- 108 Common Parking Spaces. Potential for More
- Est. $5.15 PSF OPEX
Aperçu de la propriété
Situé au cœur de Melbourne, environ à mi-chemin entre le boulevard Nasa et le boulevard Hibiscus. Facilement accessible par l'intermédiaire de l'Interstate 95, de la route 1 des États-Unis et de l'US 192. À proximité de l'aéroport international de Melbourne, L3Harris, Northrop Grumman et de tous les autres employeurs de haute technologie, d'ingénierie et de R-D de la région. Faites de cette maison le futur de votre entreprise dès aujourd'hui !
Faits sur la propriété
Présenté par
Airport Corporate Center | 1801 Penn St
Hmm, il semble y avoir eu une erreur lors de l’envoi de votre message. Veuillez réessayer.
Merci! Votre message a été envoyé.






