Se Connecter/S’inscrire
Votre courriel a été envoyé.
1805 NW 22nd Ct
Miami, FL 33125
1805 NW 22nd Ct, Miami, FL 33125-1305 · Immeuble residentiel Propriété À vendre
·
2 Unités


Certaines informations ont été traduites automatiquement.
Faits saillants de l'investissement
- Brand-New Luxury Construction. Fully permitted contemporary quadplex featuring high end finishes. Impact windows. EV-ready. Superior build quality.
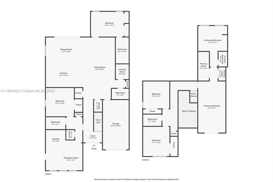
- 7,000+ SF of premium space. Nearly 3,000 SF per residence, each offering 5 beds / 4.5 baths for versatile occupancy.
- Premier Miami River District Location Minutes from Brickell, Downtown Miami, Wynwood, Midtown, Health District, Civic Center, and MIA Airport.
- Four legal income-producing units: Two duplexes each with a private 1/1 suite, offering strong rental flexibility.
- Strong Investment Efficiency All units separate meters, secure gate, garages, and multiple parking options.
- Exceptional Appreciation & Demand Zone Surrounded by major medical, commercial, and residential expansion, driving strong rental absorption.
Résumé de l'annonce
Exceptional Contemporary Quadplex in the Heart of Miami’s Urban Core | Prime Miami River Location – Center of Transformative Growth
Discover a rare, architecturally impressive multifamily asset located just steps from the Miami River—an area experiencing some of the most dynamic redevelopment in the entire city. This brand-new, fully permitted contemporary quadplex offers more than 7,000 SF of high-end construction, designed with both elegance and investment performance in mind.
The property is composed of two modern duplex-style townhomes, each thoughtfully enhanced with a private, fully independent mother-in-law suite, creating four legal units with exceptional income versatility. Each main residence features nearly 3,000 SF of sophisticated living space with soaring ceiling heights, expansive impact windows that flood the interiors with natural light, and open-concept layouts ideal for today’s renters. The chef-inspired kitchens showcase large waterfall islands, granite countertops, custom cabinetry, and stainless-steel appliances, complemented by 4 bedrooms and 3.5 baths finished with premium materials.
Every townhouse also includes a spacious 1/1 first-floor studio with its own entrance and living area, making each side a complete 5 bed / 4.5 bath offering—perfect for long-term tenants, short-term rentals, or multigenerational living. Designed for effortless management, all units come with separate water and electrical meters, and the property includes high-ceiling garages, private and street parking options, an electric security gate, and EV-ready infrastructure, ensuring long-term operational efficiency and future-proof appeal.
Positioned just west of the Miami River, the property sits within one of Miami’s highest-demand growth corridors, surrounded by large-scale redevelopment and infrastructure investment. Its central location offers unmatched access to key urban hubs, including the Miami Health District and Civic Center, Downtown Miami and Brickell, the cultural centers of Wynwood, Midtown, and the Design District, and immediate connectivity to major highways such as 836, I-95, and SR-112. Miami International Airport is only minutes away, making the location ideal for local and international tenants alike.
This rapidly evolving district has become a magnet for medical professionals, business travelers, high-demand renters, and investors seeking stable income with strong appreciation potential. With its exceptional design, multi-unit flexibility, separated utilities, and strategic position in one of Miami’s most promising urban corridors, stands out as a premier, income-producing asset with significant long-term upside.
A rare opportunity to own a contemporary, high-performing multifamily property in the center of Miami’s future.
Discover a rare, architecturally impressive multifamily asset located just steps from the Miami River—an area experiencing some of the most dynamic redevelopment in the entire city. This brand-new, fully permitted contemporary quadplex offers more than 7,000 SF of high-end construction, designed with both elegance and investment performance in mind.
The property is composed of two modern duplex-style townhomes, each thoughtfully enhanced with a private, fully independent mother-in-law suite, creating four legal units with exceptional income versatility. Each main residence features nearly 3,000 SF of sophisticated living space with soaring ceiling heights, expansive impact windows that flood the interiors with natural light, and open-concept layouts ideal for today’s renters. The chef-inspired kitchens showcase large waterfall islands, granite countertops, custom cabinetry, and stainless-steel appliances, complemented by 4 bedrooms and 3.5 baths finished with premium materials.
Every townhouse also includes a spacious 1/1 first-floor studio with its own entrance and living area, making each side a complete 5 bed / 4.5 bath offering—perfect for long-term tenants, short-term rentals, or multigenerational living. Designed for effortless management, all units come with separate water and electrical meters, and the property includes high-ceiling garages, private and street parking options, an electric security gate, and EV-ready infrastructure, ensuring long-term operational efficiency and future-proof appeal.
Positioned just west of the Miami River, the property sits within one of Miami’s highest-demand growth corridors, surrounded by large-scale redevelopment and infrastructure investment. Its central location offers unmatched access to key urban hubs, including the Miami Health District and Civic Center, Downtown Miami and Brickell, the cultural centers of Wynwood, Midtown, and the Design District, and immediate connectivity to major highways such as 836, I-95, and SR-112. Miami International Airport is only minutes away, making the location ideal for local and international tenants alike.
This rapidly evolving district has become a magnet for medical professionals, business travelers, high-demand renters, and investors seeking stable income with strong appreciation potential. With its exceptional design, multi-unit flexibility, separated utilities, and strategic position in one of Miami’s most promising urban corridors, stands out as a premier, income-producing asset with significant long-term upside.
A rare opportunity to own a contemporary, high-performing multifamily property in the center of Miami’s future.
Faits sur la propriété
| Prix par unité | 2 214 777 $ CAD | Taille du lot | 0,20 AC |
| Type de vente | Investissement | Taille du bâtiment | 7 138 pi² |
| Nombre d’unités | 2 | Nombre d’étages | 2 |
| Type de propriété | Immeuble residentiel | Année de construction | 2025 |
| Sous-type de propriété | Appartement | Ratio de stationnement | 0,28/1 000 pi² |
| Classe d’immeuble | C | ||
| Zonage | 5700/DUPLEXES - GENERAL | ||
| Prix par unité | 2 214 777 $ CAD |
| Type de vente | Investissement |
| Nombre d’unités | 2 |
| Type de propriété | Immeuble residentiel |
| Sous-type de propriété | Appartement |
| Classe d’immeuble | C |
| Taille du lot | 0,20 AC |
| Taille du bâtiment | 7 138 pi² |
| Nombre d’étages | 2 |
| Année de construction | 2025 |
| Ratio de stationnement | 0,28/1 000 pi² |
| Zonage | 5700/DUPLEXES - GENERAL |
Commodités
Commodités du site
- Terrain clôturé
- Appartement d'invités
Unité renseignements sur le mélange
| Description | Nombre d’unités | Loyer moyen/mois | pi² |
|---|---|---|---|
| 4+3.5 | 2 | - | 3 000 |
| Studios | 2 | - | - |
Impôts fonciers
| Numéro de lot | 01-3134-027-0540 | Évaluation des bâtiments | 0 $ CAD |
| Évaluation du terrain | 0 $ CAD | Évaluation totale | 341 596 $ CAD |
Impôts fonciers
Numéro de lot
01-3134-027-0540
Évaluation du terrain
0 $ CAD
Évaluation des bâtiments
0 $ CAD
Évaluation totale
341 596 $ CAD
1 de 47
Vidéos
Visite extérieure 3D Matterport
Visite 3D Matterport
Photos
Vue depuis la rue
Rue
Carte
