Votre courriel a été envoyé.
Stadium Healthcare Center 1810 Stadium Dr 2 874–13 383 pi² d'espace disponible • Phenix City, AL 36867



Certaines informations ont été traduites automatiquement.
Faits saillants
- Tournée VR disponible
Tous les espaces disponibles(3)
Afficher les taux de location en
- Espace
- Taille
- Terme
- Taux de location
- Utilisation de l’espace
- Aménagement
- Disponible
Former clinical space previously occupied by a General Surgery Specialist.
- Le taux comprend les services publics, les services de bâtiment et les dépenses immobilières.
- Disposition du plan d’étage ouverte en général
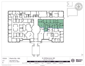
Suite 140 offers 2,874 square feet of well-configured medical clinic space within the Stadium Drive Medical Office Building. The suite is currently occupied by Dr. Berryman with Phenix City Pain Management and is expected to be available for occupancy in June 2026. The space is designed for efficient patient flow and includes a welcoming waiting room and check-in area, 4–5 exam rooms, lab, x-ray room, private restroom, and staff break area, making it well-suited for a variety of medical or healthcare-related practices. The Stadium Drive Medical Office Building provides large, welcoming common areas along with shared conference rooms, break areas, and public restrooms on each floor, creating a professional and convenient environment for both tenants and patients. The building is elevator-served and professionally managed, with ample parking and easy accessibility. This location offers an excellent opportunity for a medical provider seeking a move-in ready clinic layout in an established medical office setting.
- Le taux inscrit peut ne pas comprendre certains services publics, les services de bâtiment et les dépenses immobilières.
+/- 6,531 SF medical office space. Able to be combined with Suite 210B for a total of +/- 9,903 SF. Available 10/1/25.
- Le taux comprend les services publics, les services de bâtiment et les dépenses immobilières.
| Espace | Taille | Terme | Taux de location | Utilisation de l’espace | Aménagement | Disponible |
| 1er étage, ste 130 | 3 978 pi² | Négociable | Sur demande Sur demande Sur demande Sur demande | Bureau/Médical | construction complète | Maintenant |
| 1er étage, ste 140 | 2 874 pi² | Négociable | Sur demande Sur demande Sur demande Sur demande | Bureau/Médical | - | 2026-06-01 |
| 2e étage, ste 210 | 6 531 pi² | Négociable | Sur demande Sur demande Sur demande Sur demande | Médical | - | Maintenant |
1er étage, ste 130
| Taille |
| 3 978 pi² |
| Terme |
| Négociable |
| Taux de location |
| Sur demande Sur demande Sur demande Sur demande |
| Utilisation de l’espace |
| Bureau/Médical |
| Aménagement |
| construction complète |
| Disponible |
| Maintenant |
1er étage, ste 140
| Taille |
| 2 874 pi² |
| Terme |
| Négociable |
| Taux de location |
| Sur demande Sur demande Sur demande Sur demande |
| Utilisation de l’espace |
| Bureau/Médical |
| Aménagement |
| - |
| Disponible |
| 2026-06-01 |
2e étage, ste 210
| Taille |
| 6 531 pi² |
| Terme |
| Négociable |
| Taux de location |
| Sur demande Sur demande Sur demande Sur demande |
| Utilisation de l’espace |
| Médical |
| Aménagement |
| - |
| Disponible |
| Maintenant |
1er étage, ste 130
| Taille | 3 978 pi² |
| Terme | Négociable |
| Taux de location | Sur demande |
| Utilisation de l’espace | Bureau/Médical |
| Aménagement | construction complète |
| Disponible | Maintenant |
Former clinical space previously occupied by a General Surgery Specialist.
- Le taux comprend les services publics, les services de bâtiment et les dépenses immobilières.
- Disposition du plan d’étage ouverte en général
1er étage, ste 140
| Taille | 2 874 pi² |
| Terme | Négociable |
| Taux de location | Sur demande |
| Utilisation de l’espace | Bureau/Médical |
| Aménagement | - |
| Disponible | 2026-06-01 |
Suite 140 offers 2,874 square feet of well-configured medical clinic space within the Stadium Drive Medical Office Building. The suite is currently occupied by Dr. Berryman with Phenix City Pain Management and is expected to be available for occupancy in June 2026. The space is designed for efficient patient flow and includes a welcoming waiting room and check-in area, 4–5 exam rooms, lab, x-ray room, private restroom, and staff break area, making it well-suited for a variety of medical or healthcare-related practices. The Stadium Drive Medical Office Building provides large, welcoming common areas along with shared conference rooms, break areas, and public restrooms on each floor, creating a professional and convenient environment for both tenants and patients. The building is elevator-served and professionally managed, with ample parking and easy accessibility. This location offers an excellent opportunity for a medical provider seeking a move-in ready clinic layout in an established medical office setting.
- Le taux inscrit peut ne pas comprendre certains services publics, les services de bâtiment et les dépenses immobilières.
2e étage, ste 210
| Taille | 6 531 pi² |
| Terme | Négociable |
| Taux de location | Sur demande |
| Utilisation de l’espace | Médical |
| Aménagement | - |
| Disponible | Maintenant |
+/- 6,531 SF medical office space. Able to be combined with Suite 210B for a total of +/- 9,903 SF. Available 10/1/25.
- Le taux comprend les services publics, les services de bâtiment et les dépenses immobilières.
Aperçu de la propriété
2 étages, ascenseur desservi, immeuble de bureau médical de classe « A ». Location de services complets (comprend l'électricité, l'eau et le CAM) avec du personnel de gestion immobilière sur place et réceptif. Salle de conférence privée et salle de pause disponibles pour tous les locataires. Le Stadium Healthcare Center est situé dans le quadrant sud-ouest de l'échangeur US-80 et Summerville Road, sur Stadium Drive, en face du centre commercial Parkview.
- Atrium
- Affichage
- Climatisation
Faits sur la propriété
Sélectionner des locataires
- Étage
- Nom du locataire
- Secteur
- 2ᵉ
- JPL Family And Pediatric Medicine
- Services administratifs et de soutien
- 1ᵉʳ
- Phenix City Pain Management
- Services administratifs et de soutien
- 2ᵉ
- Piedmont Physicians at Stadium Drive
- Services administratifs et de soutien
Présenté par
Stadium Healthcare Center | 1810 Stadium Dr
Hmm, il semble y avoir eu une erreur lors de l’envoi de votre message. Veuillez réessayer.
Merci! Votre message a été envoyé.







