Se Connecter/S’inscrire
Votre courriel a été envoyé.
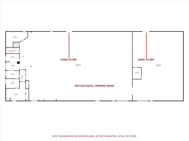
1811-1813 Old Estill Springs Rd 22 884 pi² Industriel Immeuble Tullahoma, TN 37388 3 432 450 $ CAD (149,99 $ CAD/pi²)



Certaines informations ont été traduites automatiquement.
Faits saillants de l'investissement
- Heated and cooled warehouse
- City with good work force
- Built-out office space
Résumé de l'annonce
Two connected warehouses (1811 is 15136 sq.ft. and (1813 is 11576 sq.ft.) with built-out office space on both sides. Each side has multiple drive-in docks, and 1811 has one truck dock. Located on 2.65 acres that could be divided. Customer parking in the front and employee parking in the back. One maintenance shed located at 1813. Warehouse space is heated and cooled with 12 foot ceilings at the eave. Two gate entries off Old Estill Springs Road. New siding, new windows and doors. Owner is willing to finance with 25% down. Call for terms.
Taxes et dépenses d’exploitation (Réel - 2025) Cliquez ici pour accéder à |
Annuel (CAD) | Annuel par pi² (CAD) |
|---|---|---|
| Taxes |
-
|
-
|
| Dépenses d’exploitation |
-
|
-
|
| Total des dépenses |
$99,999
|
$9.99
|
Taxes et dépenses d’exploitation (Réel - 2025) Cliquez ici pour accéder à
| Taxes (CAD) | |
|---|---|
| Annuel | - |
| Annuel par pi² | - |
| Dépenses d’exploitation (CAD) | |
|---|---|
| Annuel | - |
| Annuel par pi² | - |
| Total des dépenses (CAD) | |
|---|---|
| Annuel | $99,999 |
| Annuel par pi² | $9.99 |
Faits sur la propriété
| Prix | 3 432 450 $ CAD | Taille du lot | 2,65 AC |
| Prix par pi² | 149,99 $ CAD | Aire du bâtiment louable | 22 884 pi² |
| Type de vente | Propriétaire utilisateur | Nombre d’étages | 1 |
| Type de propriété | Industriel | Année de construction | 1982 |
| Sous-type de propriété | Entrepôt | Effacer hauteur du plafond | 12’ |
| Classe d’immeuble | C | Nbre de quais à portes élevées/de chargement | 1 |
| Zonage | Industrial - Tout, allant de l'entreposage à la fabrication lourde. | ||
| Prix | 3 432 450 $ CAD |
| Prix par pi² | 149,99 $ CAD |
| Type de vente | Propriétaire utilisateur |
| Type de propriété | Industriel |
| Sous-type de propriété | Entrepôt |
| Classe d’immeuble | C |
| Taille du lot | 2,65 AC |
| Aire du bâtiment louable | 22 884 pi² |
| Nombre d’étages | 1 |
| Année de construction | 1982 |
| Effacer hauteur du plafond | 12’ |
| Nbre de quais à portes élevées/de chargement | 1 |
| Zonage | Industrial - Tout, allant de l'entreposage à la fabrication lourde. |
Services publics
- Éclairage
- Gaz
- Eau
- Égout
- Chauffage
Disponibilité des espaces
- Espace
- Taille
- Utilisation de l’espace
- État
- Disponible
- 1er étage
- 22 884 pi²
- Industriel
- -
- Maintenant
| Espace | Taille | Utilisation de l’espace | État | Disponible |
| 1er étage | 22 884 pi² | Industriel | - | Maintenant |
1er étage
| Taille |
| 22 884 pi² |
| Utilisation de l’espace |
| Industriel |
| État |
| - |
| Disponible |
| Maintenant |
1 1
Plutôt praticable à pied
20/100
Exceptionnellement facile d’accès en voiture
90/100
Assez praticable en vélo
30/100
Impôts fonciers
| Numéros de lot | Évaluation des bâtiments | 238 544 $ CAD | |
| Évaluation du terrain | 38 890 $ CAD | Évaluation totale | 277 434 $ CAD |
Impôts fonciers
Numéros de lot
Évaluation du terrain
38 890 $ CAD
Évaluation des bâtiments
238 544 $ CAD
Évaluation totale
277 434 $ CAD
1 de 62
Vidéos
Visite extérieure 3D Matterport
Visite 3D Matterport
Photos
Vue depuis la rue
Rue
Carte
1 de 1
Présenté par
1811-1813 Old Estill Springs Rd
Vous êtes déjà membre? Connectez-vous
Hmm, il semble y avoir eu une erreur lors de l’envoi de votre message. Veuillez réessayer.
Merci! Votre message a été envoyé.
