Se Connecter/S’inscrire
Votre courriel a été envoyé.
1821 Harding St - Harding Development Opportunity Lots • Résidentiel • 0,17-0,18 Acre • 3 686 918 $ CAD • Hollywood, FL 33020



Certaines informations ont été traduites automatiquement.
Faits saillants de l'investissement
- Well-Located Development Site in a High-Growth Submarket
- Ability to optimize parking strategy for cost efficiency or maximum density
- Development potential for approximately 70 market-rate units or up to 110 units under the Live Local program
- Carry income reduces upfront development holding costs
Résumé de l'annonce
Prime Hollywood Development Site | 4-Parcel Assemblage | Multifamily / Mixed-Use Opportunity
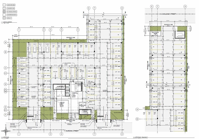
Rare development opportunity in the rapidly transforming Hollywood, Florida market. This 31,196 SF four-parcel assemblage along the Federal Highway corridor (Royal Poinciana area) offers exceptional visibility, strong redevelopment momentum, and flexible zoning ideal for multifamily, mixed-use, or workforce housing projects.
The site is positioned within one of Hollywood’s most active growth corridors, surrounded by recently completed, under-construction, and planned residential developments. Zoning allows significant density potential, with approximately ±80,000 buildable square feet and conceptual planning indicating potential for up to ~105 residential units.
Located just minutes from Downtown Hollywood, Young Circle, major retail, and US-1, the property also benefits from close proximity to Hollywood Beach, Fort Lauderdale-Hollywood International Airport, and key employment hubs—making it highly attractive for rental housing demand.
This assemblage presents a compelling opportunity for developers seeking scale, location, and long-term appreciation in one of South Florida’s strongest emerging urban submarkets.
Key Highlights:
±31,000 SF total land assemblage
Approx. ±80,000 buildable SF potential
Zoning: FH-2 (3 parcels) + ND-1 (1 parcel)
Potential density ~110 residential units (conceptual)
Walkable to Downtown Hollywood
Minutes to the beach, airport, and major corridors
Strong surrounding development pipeline
Rare development opportunity in the rapidly transforming Hollywood, Florida market. This 31,196 SF four-parcel assemblage along the Federal Highway corridor (Royal Poinciana area) offers exceptional visibility, strong redevelopment momentum, and flexible zoning ideal for multifamily, mixed-use, or workforce housing projects.
The site is positioned within one of Hollywood’s most active growth corridors, surrounded by recently completed, under-construction, and planned residential developments. Zoning allows significant density potential, with approximately ±80,000 buildable square feet and conceptual planning indicating potential for up to ~105 residential units.
Located just minutes from Downtown Hollywood, Young Circle, major retail, and US-1, the property also benefits from close proximity to Hollywood Beach, Fort Lauderdale-Hollywood International Airport, and key employment hubs—making it highly attractive for rental housing demand.
This assemblage presents a compelling opportunity for developers seeking scale, location, and long-term appreciation in one of South Florida’s strongest emerging urban submarkets.
Key Highlights:
±31,000 SF total land assemblage
Approx. ±80,000 buildable SF potential
Zoning: FH-2 (3 parcels) + ND-1 (1 parcel)
Potential density ~110 residential units (conceptual)
Walkable to Downtown Hollywood
Minutes to the beach, airport, and major corridors
Strong surrounding development pipeline
Salle de données Cliquez ici pour accéder à
- Offering Memorandum
Faits sur la propriété
| Prix | 3 686 918 $ CAD | Type de propriété | Terrain |
| Type de vente | Investissement | Sous-type de propriété | Résidentiel |
| Condition de vente | Projet de redéveloppement | Utilisation proposée | Multi-résidentiel |
| Nombre de lots | 4 | Taille totale du lot | 0,54 AC |
| Zonage | FH2 - Réglementation du développement foncier | ||
| Prix | 3 686 918 $ CAD |
| Type de vente | Investissement |
| Condition de vente | Projet de redéveloppement |
| Nombre de lots | 4 |
| Type de propriété | Terrain |
| Sous-type de propriété | Résidentiel |
| Utilisation proposée | Multi-résidentiel |
| Taille totale du lot | 0,54 AC |
| Zonage | FH2 - Réglementation du développement foncier |
4 Lots disponibles
Lot 1
| Prix | 3 686 918 $ CAD | Taille du lot | 0,18 AC |
| Prix par AC | 20 592 707,58 $ CAD |
| Prix | 3 686 918 $ CAD |
| Prix par AC | 20 592 707,58 $ CAD |
| Taille du lot | 0,18 AC |
Lot 2
| Taille du lot | 0,18 AC |
| Taille du lot | 0,18 AC |
Lot 3
| Taille du lot | 0,18 AC |
| Taille du lot | 0,18 AC |
Lot 4
| Taille du lot | 0,17 AC |
| Taille du lot | 0,17 AC |
1 1
Moyennement praticable à pied
60/100
Moyennement facile d’accès en voiture
70/100
Transports en commun relativement accessibles
40/100
Moyennement praticable en vélo
60/100
Impôts fonciers
| Numéros de lot | Évaluation des bâtiments | 1 808 343 $ CAD | |
| Évaluation du terrain | 292 964 $ CAD | Évaluation totale | 2 101 307 $ CAD |
Impôts fonciers
Numéros de lot
Évaluation du terrain
292 964 $ CAD
Évaluation des bâtiments
1 808 343 $ CAD
Évaluation totale
2 101 307 $ CAD
1 de 5
Vidéos
Visite extérieure 3D Matterport
Visite 3D Matterport
Photos
Vue depuis la rue
Rue
Carte
1 de 1
Présenté par
1821 Harding St - Harding Development Opportunity
Vous êtes déjà membre? Connectez-vous
Hmm, il semble y avoir eu une erreur lors de l’envoi de votre message. Veuillez réessayer.
Merci! Votre message a été envoyé.
