Votre courriel a été envoyé.
Aliana Grand Plaza 18303 W. Airport Blvd. 2 307–5 788 pi² d'espace disponible • Commerce de détail • Richmond, TX 77407



Certaines informations ont été traduites automatiquement.
FAITS SAILLANTS
- Nouvelle construction
- Excellente visibilité et emplacement privilégié à Aliana Richmond, au Texas
- Livraison 2026
DISPONIBILITÉ DES ESPACES (2)
Afficher les taux de location en
- ESPACE
- TAILLE
- TERME
- TAUX DE LOCATION
- TYPE DE LOYER
| Espace | Taille | Terme | Taux de location | Type de loyer | ||
| 1er étage | 2 307 pi² | 5 ans | Sur demande Sur demande Sur demande Sur demande | Loyer hypernet | ||
| 1er étage | 3 481 pi² | 5 ans | Sur demande Sur demande Sur demande Sur demande | Loyer hypernet |
1er étage
Aliana Grand Plaza – New Retail Center in Richmond, TX Aliana Grand Plaza is a premier multi-tenant retail center coming to Richmond, Fort Bend County, Texas, with an expected delivery in 2026. Strategically positioned on W. Airport Blvd., between W. Aliana Trace Dr. and Westmoor Dr., this new development presents an excellent opportunity to establish a presence in the rapidly growing Aliana market. Aliana, a thriving master-planned community, has experienced a 45% increase in housing since 2020, driving strong demand for retail and commercial services. The area features a diverse selection of new-home styles from top Houston builders, earning national recognition for its sustained growth and desirability. The average home value in Aliana Richmond is $589,236. As a well-established retail hub, Aliana is home to major national and regional brands such as Costco, Burlington, Ross, Petco, and Ulta Beauty, with continued expansion in the area. Its prime location along the Grand Parkway provides seamless access to the greater Houston area, making it a key destination for residents and businesses alike. With affordable rents, excellent visibility, and a prime location, Aliana Grand Plaza offers a unique opportunity to enter this growing retail and medical market. Secure your space today and be part of Richmond’s next major retail destination!
- Le taux de location ne comprend pas les services publics, les services de bâtiment ou les dépenses immobilières.
- Nouvelle construction
- Livraison 2026
- La valeur moyenne d'une maison à Aliana Richmond est de 589 236$
1er étage
Aliana Grand Plaza – New Retail Center in Richmond, TX Aliana Grand Plaza is a premier multi-tenant retail center coming to Richmond, Fort Bend County, Texas, with an expected delivery in 2026. Strategically positioned on W. Airport Blvd., between W. Aliana Trace Dr. and Westmoor Dr., this new development presents an excellent opportunity to establish a presence in the rapidly growing Aliana market. Aliana, a thriving master-planned community, has experienced a 45% increase in housing since 2020, driving strong demand for retail and commercial services. The area features a diverse selection of new-home styles from top Houston builders, earning national recognition for its sustained growth and desirability. The average home value in Aliana Richmond is $589,236. As a well-established retail hub, Aliana is home to major national and regional brands such as Costco, Burlington, Ross, Petco, and Ulta Beauty, with continued expansion in the area. Its prime location along the Grand Parkway provides seamless access to the greater Houston area, making it a key destination for residents and businesses alike. With affordable rents, excellent visibility, and a prime location, Aliana Grand Plaza offers a unique opportunity to enter this growing retail and medical market. Secure your space today and be part of Richmond’s next major retail destination!
- Le taux de location ne comprend pas les services publics, les services de bâtiment ou les dépenses immobilières.
Types de loyers
Le type et le montant du loyer que le locataire (preneur) est tenu de payer au propriétaire (bailleur) sur la durée du bail sont négociés avant la signature du bail par les deux parties. Le type de loyer varie selon les services fournis. Par exemple, le prix d’un loyer hypernet est habituellement inférieur à celui d’un bail à service complet puisque le locataire est tenu d’assumer des dépenses additionnelles par rapport au loyer de base. Contactez le courtier inscripteur pour tout connaître sur les frais connexes et additionnels associés à chaque type de loyer.
1. Service complet: Un taux de location qui comprend des services standards liés à l’immeuble fournis par le propriétaire dans le cadre d’une location annuelle de base.
2. Loyer supernet: Le locataire paie seulement deux des frais de l’immeuble. Le propriétaire et le locataire déterminent ces frais spécifiques avant la signature du bail.
3. Loyer hypernet: Un bail en vertu duquel le locataire est responsable de tous les frais liés à sa part proportionnelle d’occupation de l’immeuble.
4. Brut modifié: Le loyer brut modifié désigne un type général de taux de location dans lequel le locataire est habituellement responsable de sa part proportionnelle d’un ou de plusieurs frais. C’est le propriétaire qui paie les frais restants. Considérez les structures tarifaires courantes suivantes applicables aux loyers bruts modifiés: 4. Plus les services: Un type de bail brut modifié suivant lequel le locataire est responsable de sa part proportionnelle des coûts des services publics, en plus du loyer. 4. Plus le nettoyage: Un type de bail brut modifié suivant lequel le locataire est responsable de sa part proportionnelle des coûts de nettoyage, en plus du loyer. 4. Plus l'électricité: Un type de bail brut modifié suivant lequel le locataire est responsable de sa part proportionnelle des coûts d’électricité, en plus du loyer. 4. Plus l’électricité et le nettoyage: Un type de bail brut modifié dans lequel le locataire est responsable de sa part proportionnelle des coûts d’électricité et de nettoyage, en plus du loyer. 4. Plus les services publics et le nettoyage: Un type de bail brut modifié dans lequel le locataire est responsable de sa part proportionnelle des coûts des services publics et de nettoyage, en plus du loyer. 4. Bail industriel brut: Un type de bail brut modifié dans lequel le locataire paie un ou plusieurs des frais, en plus du loyer. Le propriétaire et le locataire déterminent ces frais spécifiques avant la signature du bail.
5. L’électricité est à la charge du locataire: Le propriétaire paie pour tous les services et le locataire est responsable de sa propre utilisation de l’éclairage et des prises électriques dans l’espace qu’il occupe.
6. Négociable ou sur demande: Cette option est utilisée lorsque le contact de location ne précise pas le type de loyer ou de service.
7. À déterminer: À déterminer ; utilisé pour les immeubles dont le type de services ou de loyer n’est pas connu, souvent quand l’immeuble n’est pas encore construit.
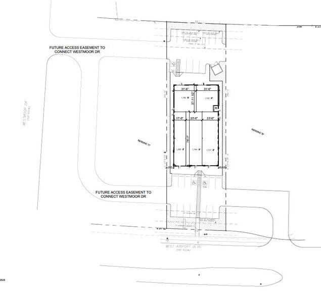
FAITS SUR LA PROPRIÉTÉ
| Superficie totale disponible | 5 788 pi² | Superficie commerciale brute | 7 003 pi² |
| Type de propriété | Commerce de détail | État de la construction | Proposé |
| Sous-type de propriété | Bien à usage mixte | Rues transversales | Westmoor Rd. |
| Superficie totale disponible | 5 788 pi² |
| Type de propriété | Commerce de détail |
| Sous-type de propriété | Bien à usage mixte |
| Superficie commerciale brute | 7 003 pi² |
| État de la construction | Proposé |
| Rues transversales | Westmoor Rd. |
À PROPOS DE LA PROPRIÉTÉ
Aliana Grand Plaza — Nouveau centre commercial à Richmond, TX Aliana Grand Plaza est un centre commercial à locataires multiples de premier plan qui se trouve à Richmond, dans le comté de Fort Bend, au Texas, avec une livraison prévue en 2026. Stratégiquement situé sur W. Airport Blvd., entre la promenade W. Aliana Trace et la promenade Westmoor, ce nouveau projet offre une excellente occasion d'établir une présence sur le marché Aliana en pleine croissance. Aliana, une communauté prospère à planification maîtresse, a connu une augmentation de 45 % du nombre de logements depuis 2020, ce qui a entraîné une forte demande de services commerciaux et de vente au détail. La région présente une sélection diversifiée de styles de maisons neuves provenant des meilleurs constructeurs de Houston, ce qui lui vaut une reconnaissance nationale pour sa croissance soutenue et son attrait. La valeur moyenne d'une maison à Aliana Richmond est de 589 236$. En tant que centre commercial bien établi, Aliana abrite de grandes marques nationales et régionales telles que Costco, Burlington, Ross, Petco et Ulta Beauty, avec une expansion continue dans la région. Son emplacement privilégié le long de la Grand Parkway offre un accès facile à la grande région de Houston, ce qui en fait une destination clé pour les résidents et les entreprises. Avec des loyers abordables, une excellente visibilité et un emplacement privilégié, Aliana Grand Plaza offre une occasion unique d'entrer dans ce marché en pleine croissance de la vente au détail et de la médecine. Réservez votre espace dès aujourd'hui et faites partie de la prochaine grande destination commerciale de Richmond !
PRINCIPAUX DÉTAILLANTS À PROXIMITÉ
Présenté par
Aliana Grand Plaza | 18303 W. Airport Blvd.
Hmm, il semble y avoir eu une erreur lors de l’envoi de votre message. Veuillez réessayer.
Merci! Votre message a été envoyé.
