Votre courriel a été envoyé.
Certaines informations ont été traduites automatiquement.
Faits saillants du parc
- New ownership!!
- Visible from Rt. 53
- Professional business park
- First full interchange north of I-90
- Convenient access to Woodfield Mall and surrounding restaurants
Faits sur le parc
Tous les espaces disponibles(10)
Afficher les taux de location en
- Espace
- Taille
- Terme
- Taux de location
- Utilisation de l’espace
- Aménagement
- Disponible
Easy to find, good visibility
- Le taux inscrit peut ne pas comprendre certains services publics, les services de bâtiment et les dépenses immobilières.
- Disposition intensive du bureau
- Peut être associé à un ou plusieurs espaces supplémentaires pour obtenir jusqu’à 6 228 pi² d’espace adjacent.
- Facile à trouver, bonne visibilité
- 6 Offices
- Open Bullpen
- Entièrement construit comme Bureau standard
- Plafonds finis: 8’6”
- Climatisation centrale
- Separate Entrance
- Breakroom
- In Suite Restrooms
Large training room
- Le taux inscrit peut ne pas comprendre certains services publics, les services de bâtiment et les dépenses immobilières.
- 4 bureaux privés
- Plafonds finis: 8’6”
- Climatisation centrale
- Cuisine
- Entièrement construit comme Bureau standard
- 1 salle de conférence
- Peut être associé à un ou plusieurs espaces supplémentaires pour obtenir jusqu’à 6 228 pi² d’espace adjacent.
- Grande salle de formation
- Deux toilettes à un seul trou
| Espace | Taille | Terme | Taux de location | Utilisation de l’espace | Aménagement | Disponible |
| 1er étage, ste A | 3 114 pi² | 3-5 ans | 21,89 $ CAD/pi²/an 1,82 $ CAD/pi²/mois 68 159 $ CAD/an 5 680 $ CAD/mois | Bureau | construction complète | Maintenant |
| 1er étage, ste G | 3 114 pi² | 3-5 ans | 21,89 $ CAD/pi²/an 1,82 $ CAD/pi²/mois 68 159 $ CAD/an 5 680 $ CAD/mois | Bureau | construction complète | Maintenant |
1921 Rohlwing Rd - 1er étage - ste A
1921 Rohlwing Rd - 1er étage - ste G
- Espace
- Taille
- Terme
- Taux de location
- Utilisation de l’espace
- Aménagement
- Disponible
- Le taux inscrit peut ne pas comprendre certains services publics, les services de bâtiment et les dépenses immobilières.
- Disposition du plan d’étage ouverte en général
- Entièrement construit comme Bureau standard
- Plafonds finis: 8’6” - 14’
Perimeter offices with large central open area. Large tiled room. Men's & women's restrooms.
- Le taux inscrit peut ne pas comprendre certains services publics, les services de bâtiment et les dépenses immobilières.
- Disposition du plan d’étage ouverte en général
- 1 salle de conférence
- Air central et chauffage
- Complètement tapissé
- Plafond suspendu
- Éclairage d’urgence
- Entièrement construit comme Bureau standard
- 7 bureaux privés
- Plafonds finis: 8’6” - 14’
- Salle de bains privée
- Espace en coin
- Lumière naturelle
- Plan ouvert
| Espace | Taille | Terme | Taux de location | Utilisation de l’espace | Aménagement | Disponible |
| 1er étage, ste A | 4 659 pi² | 5 ans | 21,89 $ CAD/pi²/an 1,82 $ CAD/pi²/mois 101 976 $ CAD/an 8 498 $ CAD/mois | Bureau | construction complète | Maintenant |
| 1er étage, ste C | 1 553 pi² | 5 ans | 21,89 $ CAD/pi²/an 1,82 $ CAD/pi²/mois 33 992 $ CAD/an 2 833 $ CAD/mois | Bureau | construction complète | Maintenant |
1875 Rohlwing Rd - 1er étage - ste A
1875 Rohlwing Rd - 1er étage - ste C
- Espace
- Taille
- Terme
- Taux de location
- Utilisation de l’espace
- Aménagement
- Disponible
- Le taux inscrit peut ne pas comprendre certains services publics, les services de bâtiment et les dépenses immobilières.
- Plafonds finis: 8’6”
- Disposition du plan d’étage ouverte
| Espace | Taille | Terme | Taux de location | Utilisation de l’espace | Aménagement | Disponible |
| 1er étage, ste B | 1 782 pi² | 3-5 ans | 21,89 $ CAD/pi²/an 1,82 $ CAD/pi²/mois 39 004 $ CAD/an 3 250 $ CAD/mois | Bureau | espace cloisonné | Maintenant |
1941 Rohlwing Rd - 1er étage - ste B
- Espace
- Taille
- Terme
- Taux de location
- Utilisation de l’espace
- Aménagement
- Disponible
Suite fronts on Rohlwing Road. End unit with lots of natural light and mature trees.
- Le taux inscrit peut ne pas comprendre certains services publics, les services de bâtiment et les dépenses immobilières.
- Disposition intensive du bureau
- Peut être associé à un ou plusieurs espaces supplémentaires pour obtenir jusqu’à 6 272 pi² d’espace adjacent.
- Espace en coin
- Plafond exposé
- Unité terminale
- Entièrement construit comme Bureau standard
- Plafonds finis: 8’6” - 14’
- Climatisation centrale
- Hauts plafonds
- Lumière naturelle
- Bonne visibilité depuis le chemin Rohlwing
Suite fronts on Rohlwing Road. End unit with lots of natural light and mature trees.
- Le taux inscrit peut ne pas comprendre certains services publics, les services de bâtiment et les dépenses immobilières.
- 2 bureaux privés
- Plafonds finis: 8’6” - 14’
- Climatisation centrale
- Hauts plafonds
- Lumière naturelle
- Bonne visibilité depuis le chemin Rohlwing
- Entièrement construit comme Bureau standard
- 1 salle de conférence
- Peut être associé à un ou plusieurs espaces supplémentaires pour obtenir jusqu’à 6 272 pi² d’espace adjacent.
- Espace en coin
- Plafond exposé
- Unité terminale
- Le taux inscrit peut ne pas comprendre certains services publics, les services de bâtiment et les dépenses immobilières.
- 9 bureaux privés
- Plafonds finis: 8’6”
- Peut être associé à un ou plusieurs espaces supplémentaires pour obtenir jusqu’à 6 272 pi² d’espace adjacent.
- Entièrement construit comme Bureau standard
- 2 salles de conférence
- Espace nécessitant des rénovations
- Climatisation centrale
| Espace | Taille | Terme | Taux de location | Utilisation de l’espace | Aménagement | Disponible |
| 1er étage, ste B | 1 597 pi² | 3-5 ans | 21,89 $ CAD/pi²/an 1,82 $ CAD/pi²/mois 34 955 $ CAD/an 2 913 $ CAD/mois | Bureau | construction complète | Maintenant |
| 1er étage, ste E | 1 761 pi² | 3-5 ans | 21,89 $ CAD/pi²/an 1,82 $ CAD/pi²/mois 38 545 $ CAD/an 3 212 $ CAD/mois | Bureau | construction complète | Maintenant |
| 1er étage, ste F | 2 914 pi² | 3-5 ans | 21,89 $ CAD/pi²/an 1,82 $ CAD/pi²/mois 63 782 $ CAD/an 5 315 $ CAD/mois | Bureau | construction complète | Maintenant |
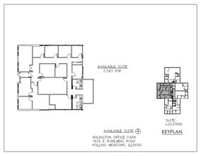
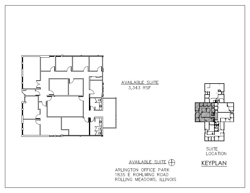
1835 Rohlwing Rd - 1er étage - ste B
1835 Rohlwing Rd - 1er étage - ste E
1835 Rohlwing Rd - 1er étage - ste F
- Espace
- Taille
- Terme
- Taux de location
- Utilisation de l’espace
- Aménagement
- Disponible
Perimeter offices with two large open area suitable for workstations. South side of the building provides lots of natural light.
- Le taux inscrit peut ne pas comprendre certains services publics, les services de bâtiment et les dépenses immobilières.
- 5 bureaux privés
- Plafonds finis: 8’6”
- Air central et chauffage
- Salle de bains privée
- Espace en coin
- Lumière naturelle
- Espace d'angle
- Entièrement construit comme Bureau standard
- 2 salles de conférence
- Espace nécessitant des rénovations
- Cuisine
- Complètement tapissé
- Plafond suspendu
- Beaucoup de lumière naturelle
- Facile à trouver, bonne visibilité
| Espace | Taille | Terme | Taux de location | Utilisation de l’espace | Aménagement | Disponible |
| 1er étage, ste E | 3 106 pi² | 3-5 ans | 21,89 $ CAD/pi²/an 1,82 $ CAD/pi²/mois 67 984 $ CAD/an 5 665 $ CAD/mois | Bureau | construction complète | Maintenant |
1911 Rohlwing Rd - 1er étage - ste E
- Espace
- Taille
- Terme
- Taux de location
- Utilisation de l’espace
- Aménagement
- Disponible
- Le taux inscrit peut ne pas comprendre certains services publics, les services de bâtiment et les dépenses immobilières.
- 4 bureaux privés
- Plafonds finis: 8’6” - 14’
- Salle de bains privée
- Espace en coin
- Lumière naturelle
- Separate Entrance
- Kitchenette
- Bullpen
- Entièrement construit comme Bureau standard
- 1 salle de conférence
- Air central et chauffage
- Complètement tapissé
- Plafond suspendu
- Éclairage d’urgence
- 1 Conference Room
- 4 Offices
- In Suite Restroom
| Espace | Taille | Terme | Taux de location | Utilisation de l’espace | Aménagement | Disponible |
| 1er étage, ste E | 1 569 pi² | 3-5 ans | 21,89 $ CAD/pi²/an 1,82 $ CAD/pi²/mois 34 342 $ CAD/an 2 862 $ CAD/mois | Bureau | construction complète | Maintenant |
1855 Rohlwing Rd - 1er étage - ste E
1921 Rohlwing Rd - 1er étage - ste A
| Taille | 3 114 pi² |
| Terme | 3-5 ans |
| Taux de location | 21,89 $ CAD/pi²/an |
| Utilisation de l’espace | Bureau |
| Aménagement | construction complète |
| Disponible | Maintenant |
Easy to find, good visibility
- Le taux inscrit peut ne pas comprendre certains services publics, les services de bâtiment et les dépenses immobilières.
- Entièrement construit comme Bureau standard
- Disposition intensive du bureau
- Plafonds finis: 8’6”
- Peut être associé à un ou plusieurs espaces supplémentaires pour obtenir jusqu’à 6 228 pi² d’espace adjacent.
- Climatisation centrale
- Facile à trouver, bonne visibilité
- Separate Entrance
- 6 Offices
- Breakroom
- Open Bullpen
- In Suite Restrooms
1921 Rohlwing Rd - 1er étage - ste G
| Taille | 3 114 pi² |
| Terme | 3-5 ans |
| Taux de location | 21,89 $ CAD/pi²/an |
| Utilisation de l’espace | Bureau |
| Aménagement | construction complète |
| Disponible | Maintenant |
Large training room
- Le taux inscrit peut ne pas comprendre certains services publics, les services de bâtiment et les dépenses immobilières.
- Entièrement construit comme Bureau standard
- 4 bureaux privés
- 1 salle de conférence
- Plafonds finis: 8’6”
- Peut être associé à un ou plusieurs espaces supplémentaires pour obtenir jusqu’à 6 228 pi² d’espace adjacent.
- Climatisation centrale
- Grande salle de formation
- Cuisine
- Deux toilettes à un seul trou
1875 Rohlwing Rd - 1er étage - ste A
| Taille | 4 659 pi² |
| Terme | 5 ans |
| Taux de location | 21,89 $ CAD/pi²/an |
| Utilisation de l’espace | Bureau |
| Aménagement | construction complète |
| Disponible | Maintenant |
- Le taux inscrit peut ne pas comprendre certains services publics, les services de bâtiment et les dépenses immobilières.
- Entièrement construit comme Bureau standard
- Disposition du plan d’étage ouverte en général
- Plafonds finis: 8’6” - 14’
1875 Rohlwing Rd - 1er étage - ste C
| Taille | 1 553 pi² |
| Terme | 5 ans |
| Taux de location | 21,89 $ CAD/pi²/an |
| Utilisation de l’espace | Bureau |
| Aménagement | construction complète |
| Disponible | Maintenant |
Perimeter offices with large central open area. Large tiled room. Men's & women's restrooms.
- Le taux inscrit peut ne pas comprendre certains services publics, les services de bâtiment et les dépenses immobilières.
- Entièrement construit comme Bureau standard
- Disposition du plan d’étage ouverte en général
- 7 bureaux privés
- 1 salle de conférence
- Plafonds finis: 8’6” - 14’
- Air central et chauffage
- Salle de bains privée
- Complètement tapissé
- Espace en coin
- Plafond suspendu
- Lumière naturelle
- Éclairage d’urgence
- Plan ouvert
1941 Rohlwing Rd - 1er étage - ste B
| Taille | 1 782 pi² |
| Terme | 3-5 ans |
| Taux de location | 21,89 $ CAD/pi²/an |
| Utilisation de l’espace | Bureau |
| Aménagement | espace cloisonné |
| Disponible | Maintenant |
- Le taux inscrit peut ne pas comprendre certains services publics, les services de bâtiment et les dépenses immobilières.
- Disposition du plan d’étage ouverte
- Plafonds finis: 8’6”
1835 Rohlwing Rd - 1er étage - ste B
| Taille | 1 597 pi² |
| Terme | 3-5 ans |
| Taux de location | 21,89 $ CAD/pi²/an |
| Utilisation de l’espace | Bureau |
| Aménagement | construction complète |
| Disponible | Maintenant |
Suite fronts on Rohlwing Road. End unit with lots of natural light and mature trees.
- Le taux inscrit peut ne pas comprendre certains services publics, les services de bâtiment et les dépenses immobilières.
- Entièrement construit comme Bureau standard
- Disposition intensive du bureau
- Plafonds finis: 8’6” - 14’
- Peut être associé à un ou plusieurs espaces supplémentaires pour obtenir jusqu’à 6 272 pi² d’espace adjacent.
- Climatisation centrale
- Espace en coin
- Hauts plafonds
- Plafond exposé
- Lumière naturelle
- Unité terminale
- Bonne visibilité depuis le chemin Rohlwing
1835 Rohlwing Rd - 1er étage - ste E
| Taille | 1 761 pi² |
| Terme | 3-5 ans |
| Taux de location | 21,89 $ CAD/pi²/an |
| Utilisation de l’espace | Bureau |
| Aménagement | construction complète |
| Disponible | Maintenant |
Suite fronts on Rohlwing Road. End unit with lots of natural light and mature trees.
- Le taux inscrit peut ne pas comprendre certains services publics, les services de bâtiment et les dépenses immobilières.
- Entièrement construit comme Bureau standard
- 2 bureaux privés
- 1 salle de conférence
- Plafonds finis: 8’6” - 14’
- Peut être associé à un ou plusieurs espaces supplémentaires pour obtenir jusqu’à 6 272 pi² d’espace adjacent.
- Climatisation centrale
- Espace en coin
- Hauts plafonds
- Plafond exposé
- Lumière naturelle
- Unité terminale
- Bonne visibilité depuis le chemin Rohlwing
1835 Rohlwing Rd - 1er étage - ste F
| Taille | 2 914 pi² |
| Terme | 3-5 ans |
| Taux de location | 21,89 $ CAD/pi²/an |
| Utilisation de l’espace | Bureau |
| Aménagement | construction complète |
| Disponible | Maintenant |
- Le taux inscrit peut ne pas comprendre certains services publics, les services de bâtiment et les dépenses immobilières.
- Entièrement construit comme Bureau standard
- 9 bureaux privés
- 2 salles de conférence
- Plafonds finis: 8’6”
- Espace nécessitant des rénovations
- Peut être associé à un ou plusieurs espaces supplémentaires pour obtenir jusqu’à 6 272 pi² d’espace adjacent.
- Climatisation centrale
1911 Rohlwing Rd - 1er étage - ste E
| Taille | 3 106 pi² |
| Terme | 3-5 ans |
| Taux de location | 21,89 $ CAD/pi²/an |
| Utilisation de l’espace | Bureau |
| Aménagement | construction complète |
| Disponible | Maintenant |
Perimeter offices with two large open area suitable for workstations. South side of the building provides lots of natural light.
- Le taux inscrit peut ne pas comprendre certains services publics, les services de bâtiment et les dépenses immobilières.
- Entièrement construit comme Bureau standard
- 5 bureaux privés
- 2 salles de conférence
- Plafonds finis: 8’6”
- Espace nécessitant des rénovations
- Air central et chauffage
- Cuisine
- Salle de bains privée
- Complètement tapissé
- Espace en coin
- Plafond suspendu
- Lumière naturelle
- Beaucoup de lumière naturelle
- Espace d'angle
- Facile à trouver, bonne visibilité
1855 Rohlwing Rd - 1er étage - ste E
| Taille | 1 569 pi² |
| Terme | 3-5 ans |
| Taux de location | 21,89 $ CAD/pi²/an |
| Utilisation de l’espace | Bureau |
| Aménagement | construction complète |
| Disponible | Maintenant |
- Le taux inscrit peut ne pas comprendre certains services publics, les services de bâtiment et les dépenses immobilières.
- Entièrement construit comme Bureau standard
- 4 bureaux privés
- 1 salle de conférence
- Plafonds finis: 8’6” - 14’
- Air central et chauffage
- Salle de bains privée
- Complètement tapissé
- Espace en coin
- Plafond suspendu
- Lumière naturelle
- Éclairage d’urgence
- Separate Entrance
- 1 Conference Room
- Kitchenette
- 4 Offices
- Bullpen
- In Suite Restroom
Sélectionner des locataires à cette propriété
- Étage
- Nom du locataire
- Secteur
- 1ᵉʳ
- Evolve Massage and Bodyworks
- Services
- 1ᵉʳ
- NCH Medical Group
- Soins de santé et assistance sociale
Aperçu du parc
Versa Real Estate Services has been retained as the exclusive leasing agent for 1835–1921 Rohlwing Rd, located in Rolling Meadows, IL 60008. This well-maintained single-story office park consists of nine buildings designed for convenience and accessibility. Each suite features a private entrance with 24-hour access, offering flexibility for your business operations. Tenants benefit from in-suite restrooms for added comfort and privacy. The property offers an impressive average parking ratio of 8.91 spaces per 1,000 square feet, ensuring ample parking for employees and visitors. Monument signage is available, providing excellent visibility and strong branding opportunities.
- Accès 24 heures
- Train de banlieue
- Lot de coin
- Voie de virage obligatoire
- Visibilité de l'autoroute
- Gestionnaire d'immeuble sur place
- Affichage
- CVCA contrôlé par le locataire
- Affichage sur monument
Présenté par
Arlington Office Park | Rolling Meadows, IL 60008
Hmm, il semble y avoir eu une erreur lors de l’envoi de votre message. Veuillez réessayer.
Merci! Votre message a été envoyé.












