Votre courriel a été envoyé.
Certaines informations ont été traduites automatiquement.
Faits saillants
- La propriété locale, solide et à long terme offre des services et de la valeur aux locataires.
- Accès facile à Fort Meade, à l'aéroport de BWI, à Washington DC et à Baltimore.
- Excellent centre de conditionnement physique avec douches et café libre-service à l'usage exclusif des locataires.
Tous les espaces disponibles(6)
Afficher les taux de location en
- Espace
- Taille
- Terme
- Taux de location
- Utilisation de l’espace
- Aménagement
- Disponible
2,982 square foot office suite with private offices.
- Le taux comprend les services publics, les services de bâtiment et les dépenses immobilières.
- Disposition du plan d’étage ouverte en général
- 16 postes de travail
- Espace en excellent état
- Grandes fenêtres pour la lumière naturelle
- Entièrement construit comme Bureau de services financiers
- 4 bureaux privés
- Plafonds finis: 14’
- Hauteur de plafond de 14 pi
- Centre de conditionnement physique
Exceptional visibility off the main lobby. Corner Suite with glass on two sides.
- Le taux comprend les services publics, les services de bâtiment et les dépenses immobilières.
- Disposition du plan d’étage ouverte
- Espace en excellent état
- Excellente exposition et visibilité
- Grandes fenêtres pour la lumière naturelle
- Entièrement construit comme Bureau standard
- 10 bureaux privés
- Douches
- Hauteur de plafond de 14 pi
Convenient 2nd-floor suite located directly off the elevator lobby
- Le taux comprend les services publics, les services de bâtiment et les dépenses immobilières.
- Le taux comprend les services publics, les services de bâtiment et les dépenses immobilières.
- Entièrement construit comme Bureau de services professionnels
7,017 square foot second floor office suite.
- Le taux comprend les services publics, les services de bâtiment et les dépenses immobilières.
- Disposition du plan d’étage ouverte en général
- 1 salle de conférence
- Grandes fenêtres pour la lumière naturelle
- Centre de conditionnement physique
- Entièrement construit comme Bureau de services professionnels
- 11 bureaux privés
- Espace en excellent état
- Hauteur de plafond de 14 pi
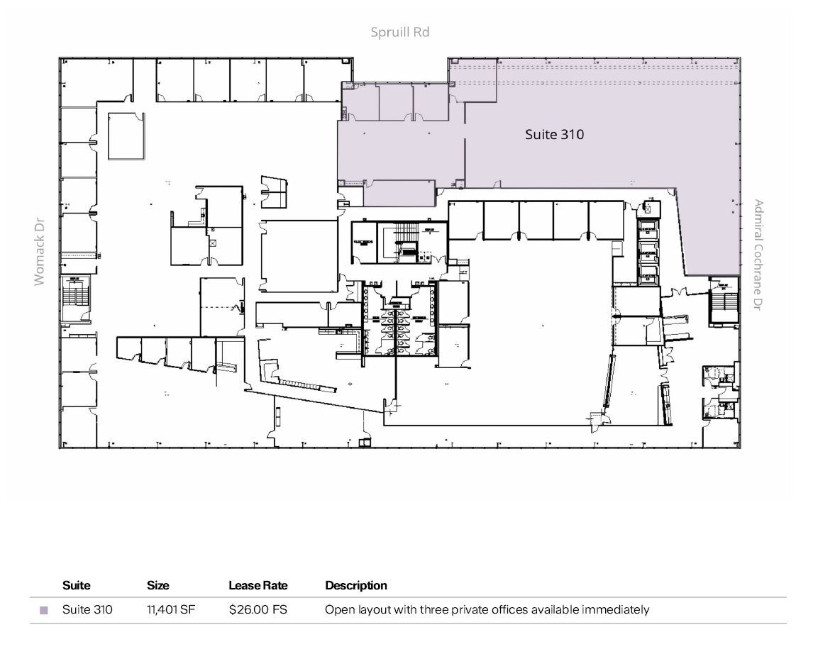
11,401 square foot third floor office suite with open floor plan and 3 private offices.
- Le taux comprend les services publics, les services de bâtiment et les dépenses immobilières.
- Disposition du plan d’étage ouverte en général
- Centre de conditionnement physique
- Grandes fenêtres pour la lumière naturelle
- Partiellement construit comme Bureau standard
- 3 bureaux privés
- Hauteur du plafond de 14 pieds
| Espace | Taille | Terme | Taux de location | Utilisation de l’espace | Aménagement | Disponible |
| 1er étage, ste 110 | 2 982 pi² | Négociable | 35,62 $ CAD/pi²/an 2,97 $ CAD/pi²/mois 106 219 $ CAD/an 8 852 $ CAD/mois | Bureau | construction complète | Maintenant |
| 1er étage, ste 150 | 9 797 pi² | Négociable | 35,62 $ CAD/pi²/an 2,97 $ CAD/pi²/mois 348 969 $ CAD/an 29 081 $ CAD/mois | Bureau | construction complète | Maintenant |
| 2e étage | 10 962 pi² | Négociable | 35,62 $ CAD/pi²/an 2,97 $ CAD/pi²/mois 390 466 $ CAD/an 32 539 $ CAD/mois | Bureau | - | 2027-04-01 |
| 2e étage, ste 201 | 3 172 pi² | Négociable | 35,62 $ CAD/pi²/an 2,97 $ CAD/pi²/mois 112 987 $ CAD/an 9 416 $ CAD/mois | Bureau | construction complète | Maintenant |
| 2e étage, ste 215 | 7 017 pi² | Négociable | 35,62 $ CAD/pi²/an 2,97 $ CAD/pi²/mois 249 946 $ CAD/an 20 829 $ CAD/mois | Bureau | construction complète | Maintenant |
| 3e étage, ste 310 | 11 401 pi² | Négociable | 35,62 $ CAD/pi²/an 2,97 $ CAD/pi²/mois 406 104 $ CAD/an 33 842 $ CAD/mois | Bureau/Médical | construction partielle | 30 jours |
1er étage, ste 110
| Taille |
| 2 982 pi² |
| Terme |
| Négociable |
| Taux de location |
| 35,62 $ CAD/pi²/an 2,97 $ CAD/pi²/mois 106 219 $ CAD/an 8 852 $ CAD/mois |
| Utilisation de l’espace |
| Bureau |
| Aménagement |
| construction complète |
| Disponible |
| Maintenant |
1er étage, ste 150
| Taille |
| 9 797 pi² |
| Terme |
| Négociable |
| Taux de location |
| 35,62 $ CAD/pi²/an 2,97 $ CAD/pi²/mois 348 969 $ CAD/an 29 081 $ CAD/mois |
| Utilisation de l’espace |
| Bureau |
| Aménagement |
| construction complète |
| Disponible |
| Maintenant |
2e étage
| Taille |
| 10 962 pi² |
| Terme |
| Négociable |
| Taux de location |
| 35,62 $ CAD/pi²/an 2,97 $ CAD/pi²/mois 390 466 $ CAD/an 32 539 $ CAD/mois |
| Utilisation de l’espace |
| Bureau |
| Aménagement |
| - |
| Disponible |
| 2027-04-01 |
2e étage, ste 201
| Taille |
| 3 172 pi² |
| Terme |
| Négociable |
| Taux de location |
| 35,62 $ CAD/pi²/an 2,97 $ CAD/pi²/mois 112 987 $ CAD/an 9 416 $ CAD/mois |
| Utilisation de l’espace |
| Bureau |
| Aménagement |
| construction complète |
| Disponible |
| Maintenant |
2e étage, ste 215
| Taille |
| 7 017 pi² |
| Terme |
| Négociable |
| Taux de location |
| 35,62 $ CAD/pi²/an 2,97 $ CAD/pi²/mois 249 946 $ CAD/an 20 829 $ CAD/mois |
| Utilisation de l’espace |
| Bureau |
| Aménagement |
| construction complète |
| Disponible |
| Maintenant |
3e étage, ste 310
| Taille |
| 11 401 pi² |
| Terme |
| Négociable |
| Taux de location |
| 35,62 $ CAD/pi²/an 2,97 $ CAD/pi²/mois 406 104 $ CAD/an 33 842 $ CAD/mois |
| Utilisation de l’espace |
| Bureau/Médical |
| Aménagement |
| construction partielle |
| Disponible |
| 30 jours |
1er étage, ste 110
| Taille | 2 982 pi² |
| Terme | Négociable |
| Taux de location | 35,62 $ CAD/pi²/an |
| Utilisation de l’espace | Bureau |
| Aménagement | construction complète |
| Disponible | Maintenant |
2,982 square foot office suite with private offices.
- Le taux comprend les services publics, les services de bâtiment et les dépenses immobilières.
- Entièrement construit comme Bureau de services financiers
- Disposition du plan d’étage ouverte en général
- 4 bureaux privés
- 16 postes de travail
- Plafonds finis: 14’
- Espace en excellent état
- Hauteur de plafond de 14 pi
- Grandes fenêtres pour la lumière naturelle
- Centre de conditionnement physique
1er étage, ste 150
| Taille | 9 797 pi² |
| Terme | Négociable |
| Taux de location | 35,62 $ CAD/pi²/an |
| Utilisation de l’espace | Bureau |
| Aménagement | construction complète |
| Disponible | Maintenant |
Exceptional visibility off the main lobby. Corner Suite with glass on two sides.
- Le taux comprend les services publics, les services de bâtiment et les dépenses immobilières.
- Entièrement construit comme Bureau standard
- Disposition du plan d’étage ouverte
- 10 bureaux privés
- Espace en excellent état
- Douches
- Excellente exposition et visibilité
- Hauteur de plafond de 14 pi
- Grandes fenêtres pour la lumière naturelle
2e étage
| Taille | 10 962 pi² |
| Terme | Négociable |
| Taux de location | 35,62 $ CAD/pi²/an |
| Utilisation de l’espace | Bureau |
| Aménagement | - |
| Disponible | 2027-04-01 |
Convenient 2nd-floor suite located directly off the elevator lobby
- Le taux comprend les services publics, les services de bâtiment et les dépenses immobilières.
2e étage, ste 201
| Taille | 3 172 pi² |
| Terme | Négociable |
| Taux de location | 35,62 $ CAD/pi²/an |
| Utilisation de l’espace | Bureau |
| Aménagement | construction complète |
| Disponible | Maintenant |
- Le taux comprend les services publics, les services de bâtiment et les dépenses immobilières.
- Entièrement construit comme Bureau de services professionnels
2e étage, ste 215
| Taille | 7 017 pi² |
| Terme | Négociable |
| Taux de location | 35,62 $ CAD/pi²/an |
| Utilisation de l’espace | Bureau |
| Aménagement | construction complète |
| Disponible | Maintenant |
7,017 square foot second floor office suite.
- Le taux comprend les services publics, les services de bâtiment et les dépenses immobilières.
- Entièrement construit comme Bureau de services professionnels
- Disposition du plan d’étage ouverte en général
- 11 bureaux privés
- 1 salle de conférence
- Espace en excellent état
- Grandes fenêtres pour la lumière naturelle
- Hauteur de plafond de 14 pi
- Centre de conditionnement physique
3e étage, ste 310
| Taille | 11 401 pi² |
| Terme | Négociable |
| Taux de location | 35,62 $ CAD/pi²/an |
| Utilisation de l’espace | Bureau/Médical |
| Aménagement | construction partielle |
| Disponible | 30 jours |
11,401 square foot third floor office suite with open floor plan and 3 private offices.
- Le taux comprend les services publics, les services de bâtiment et les dépenses immobilières.
- Partiellement construit comme Bureau standard
- Disposition du plan d’étage ouverte en général
- 3 bureaux privés
- Centre de conditionnement physique
- Hauteur du plafond de 14 pieds
- Grandes fenêtres pour la lumière naturelle
Aperçu de la propriété
Profitez d'une vie de bureau moderne dans un emplacement privilégié d'Annapolis, au MD, au 185 Admiral Cochrane Drive. L'édifice offre des aires communes de qualité améliorée avec un plafond de 14 pi et de grandes fenêtres pour un éclairage naturel formidable, ainsi qu'un centre de conditionnement physique avec douches et un café libre-service à l'usage exclusif des locataires. Plusieurs hôtels et boutiques se trouvent à quelques minutes, ce qui rend l'équilibre entre le travail et la vie personnelle harmonieux. Les navetteurs sont également facilité grâce à l'accès facile de l'édifice aux Rt 50, I-97 et Fort Meade. Grâce à la prise en charge institutionnelle locale, les locataires peuvent s'attendre à un service et à une valeur exceptionnels.
- Gestionnaire d'immeuble sur place
Faits sur la propriété
Présenté par
185 Admiral Cochrane Dr
Hmm, il semble y avoir eu une erreur lors de l’envoi de votre message. Veuillez réessayer.
Merci! Votre message a été envoyé.













