Votre courriel a été envoyé.
Tierra Vista 18525 Sutter Blvd 2 697–5 501 pi² d'espace disponible • Morgan Hill, CA 95037



Certaines informations ont été traduites automatiquement.
Faits saillants
- Zoné pour les bureaux généraux, les commerces de détail, les services médicaux et les services personnels.
- Ascenseur desservi depuis le hall.
- Finitions haut de gamme dans l'espace commun et la suite disponible.
- Signalisation des monuments, panneaux d'annuaire et signalisation de porte.
- Des toilettes haut de gamme pour hommes et femmes à chaque étage avec du granit et de la maçonnerie.
- 5 jours par semaine, services de conciergerie à l'intérieur de la suite et grand parking sur place.
Tous les espaces disponibles(2)
Afficher les taux de location en
- Espace
- Taille
- Terme
- Taux de location
- Utilisation de l’espace
- Aménagement
- Disponible
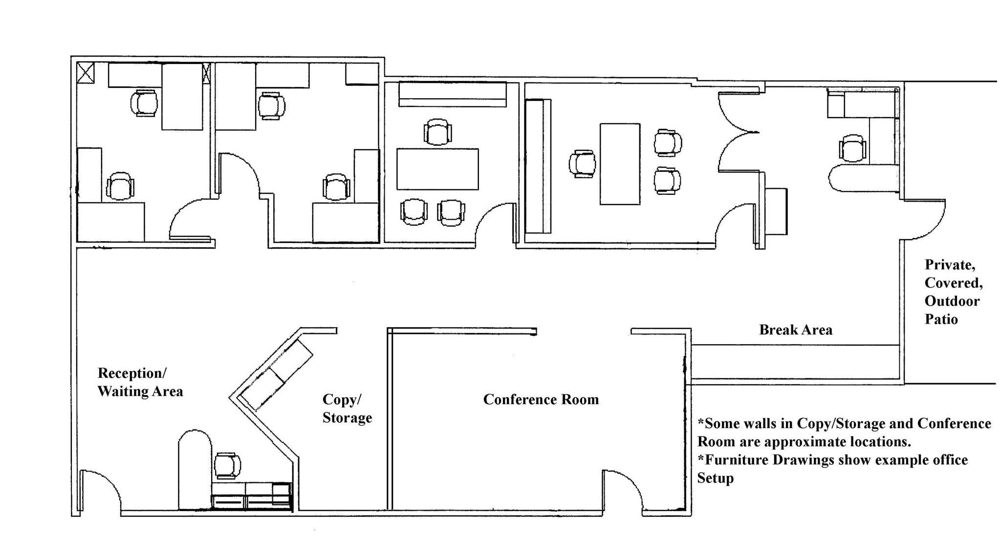
This impressive, second floor executive suite has an upscale lobby and reception area with granite counters, 5 offices, a spacious conference room, a large open area, and a break room. The two larger rooms in the back offer creative space for multiple work stations, conference rooms, private offices, training, or other innovative uses.
- Le taux de location ne comprend pas les services publics, les services de bâtiment ou les dépenses immobilières.
- 5 bureaux privés
- Plafonds finis: 9’
- Aire de réception
- Plafond suspendu
- Bureau de réception et hall d'accueil
- 2 grandes chambres avec des plafonds hauts
- Entièrement construit comme Bureau de services professionnels
- 1 salle de conférence
- Air central et chauffage
- Hauts plafonds
- CVCA disponible après les heures de travail
- 5 bureaux spacieux
- Vues de la ville
This spacious, professional suite has 5 large private offices, 1 conference room, spaces for several workstations and reception, and an additional space that could be converted to a break area. The thoughtful office design supports collaboration in many ways by utilizing interior windows, light, large open spaces, and private offices that are large enough for one to three people.
- Le taux de location ne comprend pas les services publics, les services de bâtiment ou les dépenses immobilières.
- 1 salle de conférence
- Air central et chauffage
- Plafond suspendu
- CVCA disponible après les heures de travail
- 5 Large Private Offices
- Large Conference Room
- 5 bureaux privés
- Plafonds finis: 9’
- Complètement tapissé
- Lumière naturelle
- Accessible aux fauteuils roulants
- Spaces for Several Workspaces and Reception
| Espace | Taille | Terme | Taux de location | Utilisation de l’espace | Aménagement | Disponible |
| 2e étage, ste 240 | 2 697 pi² | Négociable | 31,38 $ CAD/pi²/an 2,62 $ CAD/pi²/mois 84 645 $ CAD/an 7 054 $ CAD/mois | Bureau | construction complète | Maintenant |
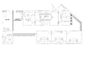
| 2e étage, ste 280 | 2 804 pi² | Négociable | 33,04 $ CAD/pi²/an 2,75 $ CAD/pi²/mois 92 635 $ CAD/an 7 720 $ CAD/mois | Bureau/Médical | construction complète | Maintenant |
2e étage, ste 240
| Taille |
| 2 697 pi² |
| Terme |
| Négociable |
| Taux de location |
| 31,38 $ CAD/pi²/an 2,62 $ CAD/pi²/mois 84 645 $ CAD/an 7 054 $ CAD/mois |
| Utilisation de l’espace |
| Bureau |
| Aménagement |
| construction complète |
| Disponible |
| Maintenant |
2e étage, ste 280
| Taille |
| 2 804 pi² |
| Terme |
| Négociable |
| Taux de location |
| 33,04 $ CAD/pi²/an 2,75 $ CAD/pi²/mois 92 635 $ CAD/an 7 720 $ CAD/mois |
| Utilisation de l’espace |
| Bureau/Médical |
| Aménagement |
| construction complète |
| Disponible |
| Maintenant |
2e étage, ste 240
| Taille | 2 697 pi² |
| Terme | Négociable |
| Taux de location | 31,38 $ CAD/pi²/an |
| Utilisation de l’espace | Bureau |
| Aménagement | construction complète |
| Disponible | Maintenant |
This impressive, second floor executive suite has an upscale lobby and reception area with granite counters, 5 offices, a spacious conference room, a large open area, and a break room. The two larger rooms in the back offer creative space for multiple work stations, conference rooms, private offices, training, or other innovative uses.
- Le taux de location ne comprend pas les services publics, les services de bâtiment ou les dépenses immobilières.
- Entièrement construit comme Bureau de services professionnels
- 5 bureaux privés
- 1 salle de conférence
- Plafonds finis: 9’
- Air central et chauffage
- Aire de réception
- Hauts plafonds
- Plafond suspendu
- CVCA disponible après les heures de travail
- Bureau de réception et hall d'accueil
- 5 bureaux spacieux
- 2 grandes chambres avec des plafonds hauts
- Vues de la ville
2e étage, ste 280
| Taille | 2 804 pi² |
| Terme | Négociable |
| Taux de location | 33,04 $ CAD/pi²/an |
| Utilisation de l’espace | Bureau/Médical |
| Aménagement | construction complète |
| Disponible | Maintenant |
This spacious, professional suite has 5 large private offices, 1 conference room, spaces for several workstations and reception, and an additional space that could be converted to a break area. The thoughtful office design supports collaboration in many ways by utilizing interior windows, light, large open spaces, and private offices that are large enough for one to three people.
- Le taux de location ne comprend pas les services publics, les services de bâtiment ou les dépenses immobilières.
- 5 bureaux privés
- 1 salle de conférence
- Plafonds finis: 9’
- Air central et chauffage
- Complètement tapissé
- Plafond suspendu
- Lumière naturelle
- CVCA disponible après les heures de travail
- Accessible aux fauteuils roulants
- 5 Large Private Offices
- Spaces for Several Workspaces and Reception
- Large Conference Room
Aperçu de la propriété
Le Tierra Vista Professional/Medical Building est un impressionnant bâtiment haut de gamme dans un emplacement privilégié à seulement 10 minutes de San Jose, à la sortie de l'autoroute 101 et de la sortie Cochrane Road (première sortie) dans le parc d'affaires Morgan Hill Ranch, et adjacent à Cochrane Plaza, un centre commercial animé. La propriété compte un grand nombre de locataires, y compris la Chicago Title Company, une maison de courtage hypothécaire, un chiropraticien, un acupuncteur, un mammographe, un chirurgien vasculaire, des orthopédistes, des assurances, des cabinets d'avocats, des dentisteries et des ateliers Stitched Up Needleworks. Spectrum offre un accès Internet par fibre optique et par câble, et les commodités du quartier comprennent une variété de restaurants et de boutiques.
- Accès 24 heures
- Affichage
- Climatisation
Faits sur la propriété
Présenté par
Tierra Vista | 18525 Sutter Blvd
Hmm, il semble y avoir eu une erreur lors de l’envoi de votre message. Veuillez réessayer.
Merci! Votre message a été envoyé.







