Se Connecter/S’inscrire
Votre courriel a été envoyé.
Certaines informations ont été traduites automatiquement.
Faits saillants de l'investissement
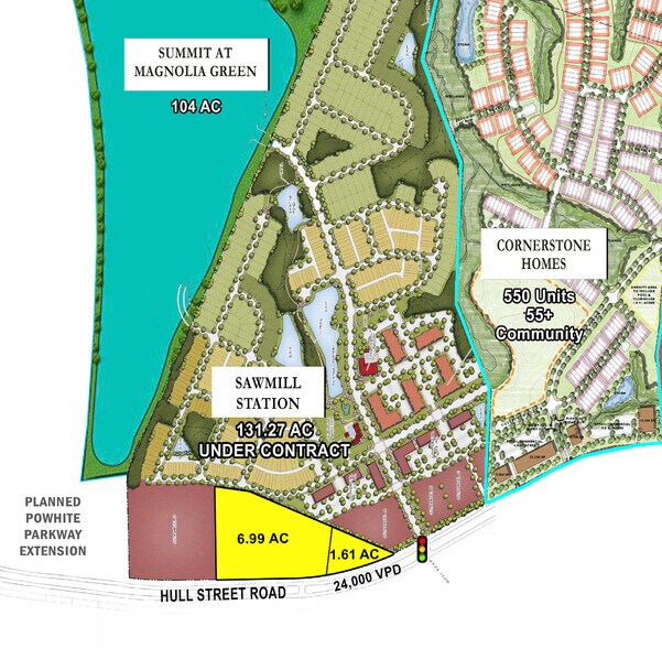
- En face du chemin Hull St, niché entre plusieurs nouveaux développements.
- Revenu moyen des ménages de plus de 137 000$ dans un rayon de 3 milles.
- Situé juste avant le nouveau prolongement prévu du Pkwy Powhite.
- Accès facile à partir du chemin de la rue Hull et de la future promenade Powhite.
Résumé de l'annonce
Excellente occasion de développement commercial. Près de Magnolia Green (4 088 unités).
Faits sur la propriété
| Type de vente | Investissement | Sous-type de propriété | Terrain commercial |
| Nombre de lots | 1 | Utilisation proposée | Commercial |
| Type de propriété | Terrain | Taille totale du lot | 8,60 AC |
| Type de vente | Investissement |
| Nombre de lots | 1 |
| Type de propriété | Terrain |
| Sous-type de propriété | Terrain commercial |
| Utilisation proposée | Commercial |
| Taille totale du lot | 8,60 AC |
1 Lot disponible
Lot
| Taille du lot | 8,60 AC |
| Taille du lot | 8,60 AC |
6,99 et 1,61 acres de terrain de premier choix à vendre (peuvent être combinés ou séparés).
Description
Fronting Hull Street Rd, nestled in between multiple new developments.
1 1
1 de 3
Vidéos
Visite extérieure 3D Matterport
Visite 3D Matterport
Photos
Vue depuis la rue
Rue
Carte
1 de 1
Présenté par
18610-18700 Hull Street Rd
Vous êtes déjà membre? Connectez-vous
Hmm, il semble y avoir eu une erreur lors de l’envoi de votre message. Veuillez réessayer.
Merci! Votre message a été envoyé.


