Se Connecter/S’inscrire
Votre courriel a été envoyé.
19 Belmont Rd 3 367 pi² Commerce de détail Immeuble Erith DA8 1JY 1 183 003 $ CAD (351,35 $ CAD/pi²)



Certaines informations ont été traduites automatiquement.
Faits saillants de l'investissement
- Attractive situation
- Close to local amenties
- Transport links
Résumé de l'annonce
The site currently consists of a building, with a footprint measuring approx. 3,367 SqFt that has been used as a Nursery. Situated in the heart of local amenties such as restaurants, health centres, shops. There is also Barnehurst trainline close for transport links
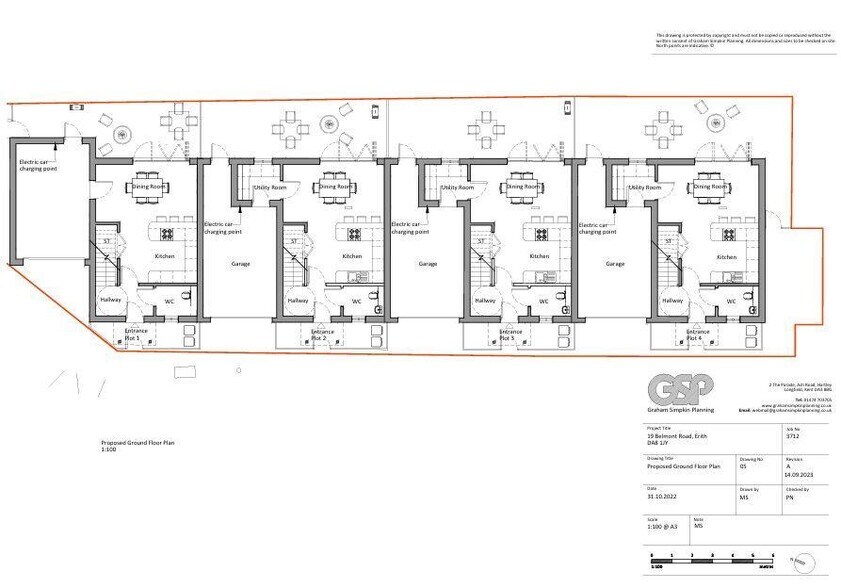
A development site with planning permission for 4 x 3 bedroom dwellings with integrated garages. Planning permission approved by London Borough of Bexley. Full details can be found under the reference - 22/02978/FUL Planning expires in October 2026
A development site with planning permission for 4 x 3 bedroom dwellings with integrated garages. Planning permission approved by London Borough of Bexley. Full details can be found under the reference - 22/02978/FUL Planning expires in October 2026
Faits sur la propriété
Type de vente
Propriétaire utilisateur
Condition de vente
Vente à l’encan
Type de propriété
Commerce de détail
Ancienneté
Pleine propriété
Sous-type de propriété
Garderie
Taille du bâtiment
3 367 pi²
Classe d’immeuble
B
Année de construction
1971
Prix
1 183 003 $ CAD
Prix par pi²
351,35 $ CAD
Location
Unique
Hauteur du bâtiment
1 étage
Stationnement
5 places (1,72 places par 1 000 pi² loué)
Façade
Commodités
- Ligne d'autobus
- Affichage
1 1
Principaux détaillants à proximité
1 de 12
Vidéos
Visite extérieure 3D Matterport
Visite 3D Matterport
Photos
Vue depuis la rue
Rue
Carte
1 de 1
Présenté par
19 Belmont Rd
Vous êtes déjà membre? Connectez-vous
Hmm, il semble y avoir eu une erreur lors de l’envoi de votre message. Veuillez réessayer.
Merci! Votre message a été envoyé.
