Votre courriel a été envoyé.
The Gateway at Station North 1900 N Howard St 1 411–21 500 pi² d'espace disponible • Bureau • Baltimore, MD 21218



Certaines informations ont été traduites automatiquement.
Faits saillants
- Propriété orientée vers le transport en commun avec un accès pratique à partir de l'I-83, près de l'arrêt du train léger et de plusieurs lignes d'autobus
- Proximité d'une variété de produits alimentaires et de boissons, de bars à cocktails et de restaurants boutiques
- Proximité de nombreux lieux culturels et artistiques, y compris le Parkway Theatre, Motorhouse, The Charles Theater, The Lyric et The Myerhoff
- Situé au cœur du Station North Arts & Entertainment District, juste en face de la célèbre attraction « Graffiti Alley »
- Situé au centre de la ville de Baltimore, à proximité d'établissements d'ancrage tels que l'Université Johns Hopkins, le MICA et l'Université de Baltimore
- Stationnement sur place, accès par porte-clés, système d'interphone vidéo
Tous les espaces disponibles(3)
Afficher les taux de location en
- Espace
- Taille
- Terme
- Taux de location
- Utilisation de l’espace
- Aménagement
- Disponible
- Le taux inscrit peut ne pas comprendre certains services publics, les services de bâtiment et les dépenses immobilières.
- Disposition du plan d’étage ouverte en général
- 8 bureaux privés
- 32 postes de travail
- Espace en excellent état
- Vidéosurveillance
- Hauts plafonds
- CVCA disponible après les heures de travail
- Off-Lobby Access
- In-Suite Restroom
- Private offices, training room, eat-in break room
- Entièrement construit comme Centre d’appels
- Convient pour 11 à 72 personnes
- 2 salles de conférence
- Plafonds finis: 10’ - 14’
- Système de sécurité
- Espace en coin
- Lumière naturelle
- Plan ouvert
- Direct-Entry Access from Parking Lot
- Large Reception Area
- Opportunity for large conference room
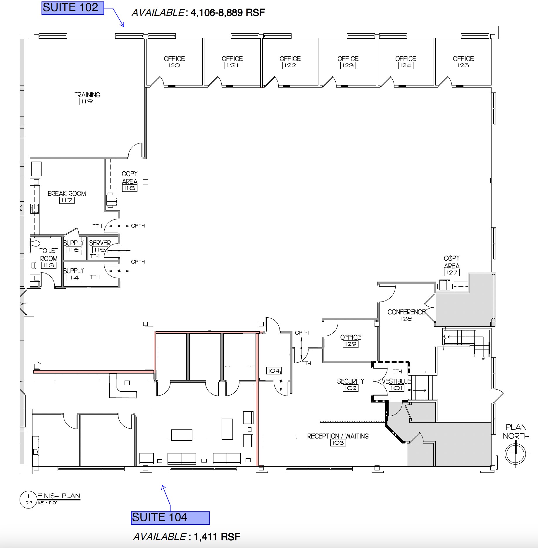
Efficient office space ideal for professional services or a small business enterprise. Suite is well positioned to meet the needs of a non-profit organization or a small outpatient medical office. Prominent location directly off the main 2-story lobby of the building. Potential to expand and re-demise this suite to connect through to the northern lobby of the building, providing direct-entry access from the main parking lot.
- Entièrement construit comme Bureau de services professionnels
- Convient pour 3 à 8 personnes
- 4 postes de travail
- Espace en excellent état
- Aire de réception
- Lumière naturelle
- Efficient layout with mix of open & private office
- Reception/Waiting Area & private treatment rooms
- Recently built-out
- Disposition du plan d’étage ouverte en général
- 4 bureaux privés
- Plafonds finis: 10’ - 14’
- Clé en main
- Plafond suspendu
- High Visibility, Off-Lobby Access
- Break Room
- Can be re-combined with adjacent suite
Prime 2nd floor corner space with views over the Jones Falls, North Ave Bridge, I-83, Howard Street Bridge. Close proximity to MICA, UB, and other Station North cultural amenities. Suite features great historic glass line, authentic "mill" finishes, exposed wooden columns/beams/timber decking, and exterior brick walls. Suite includes dedicated double-height reception area which could also be modified as a feature conference room. Can be combined with Suite 101 (directly below) via interior stair, for total of 14,752 contiguous sqft.
- Entièrement construit comme Bureau standard
- Convient pour 45 à 80 personnes
- 4 salles de conférence
- Plafonds finis: 12’
- Clé en main
- Aire de réception
- Salle d’impression/Photocopie
- Hauts plafonds
- Entreposage sécurisé
- Atrium
- Creative Office Space with exposed brick & beam
- Private reception area w/ atrium above main lobby
- Multiple breakout/conf. rooms for collaboration
- Disposition du plan d’étage ouverte en général
- 20 bureaux privés
- 60 postes de travail
- Espace en excellent état
- Climatisation centrale
- Accès aux ascenseurs
- Espace en coin
- Plafond exposé
- CVCA disponible après les heures de travail
- Plan ouvert
- Glass-wall perimeter offices, high-bay LED lights
- Flexible workstation pods accommodate hybrid work
- Historic aesthetic and premium/modern finishes
| Espace | Taille | Terme | Taux de location | Utilisation de l’espace | Aménagement | Disponible |
| 1er étage, ste 102 | 4 106 à 8 889 pi² | Négociable | Sur demande Sur demande Sur demande Sur demande | Bureau | construction complète | Maintenant |
| 1er étage, ste 104 | 1 411 pi² | 3-10 ans | Sur demande Sur demande Sur demande Sur demande | Bureau | construction complète | Maintenant |
| 2e étage, ste 200 | 11 200 pi² | Négociable | Sur demande Sur demande Sur demande Sur demande | Bureau | construction complète | Maintenant |
1er étage, ste 102
| Taille |
| 4 106 à 8 889 pi² |
| Terme |
| Négociable |
| Taux de location |
| Sur demande Sur demande Sur demande Sur demande |
| Utilisation de l’espace |
| Bureau |
| Aménagement |
| construction complète |
| Disponible |
| Maintenant |
1er étage, ste 104
| Taille |
| 1 411 pi² |
| Terme |
| 3-10 ans |
| Taux de location |
| Sur demande Sur demande Sur demande Sur demande |
| Utilisation de l’espace |
| Bureau |
| Aménagement |
| construction complète |
| Disponible |
| Maintenant |
2e étage, ste 200
| Taille |
| 11 200 pi² |
| Terme |
| Négociable |
| Taux de location |
| Sur demande Sur demande Sur demande Sur demande |
| Utilisation de l’espace |
| Bureau |
| Aménagement |
| construction complète |
| Disponible |
| Maintenant |
1er étage, ste 102
| Taille | 4 106 à 8 889 pi² |
| Terme | Négociable |
| Taux de location | Sur demande |
| Utilisation de l’espace | Bureau |
| Aménagement | construction complète |
| Disponible | Maintenant |
- Le taux inscrit peut ne pas comprendre certains services publics, les services de bâtiment et les dépenses immobilières.
- Entièrement construit comme Centre d’appels
- Disposition du plan d’étage ouverte en général
- Convient pour 11 à 72 personnes
- 8 bureaux privés
- 2 salles de conférence
- 32 postes de travail
- Plafonds finis: 10’ - 14’
- Espace en excellent état
- Système de sécurité
- Vidéosurveillance
- Espace en coin
- Hauts plafonds
- Lumière naturelle
- CVCA disponible après les heures de travail
- Plan ouvert
- Off-Lobby Access
- Direct-Entry Access from Parking Lot
- In-Suite Restroom
- Large Reception Area
- Private offices, training room, eat-in break room
- Opportunity for large conference room
1er étage, ste 104
| Taille | 1 411 pi² |
| Terme | 3-10 ans |
| Taux de location | Sur demande |
| Utilisation de l’espace | Bureau |
| Aménagement | construction complète |
| Disponible | Maintenant |
Efficient office space ideal for professional services or a small business enterprise. Suite is well positioned to meet the needs of a non-profit organization or a small outpatient medical office. Prominent location directly off the main 2-story lobby of the building. Potential to expand and re-demise this suite to connect through to the northern lobby of the building, providing direct-entry access from the main parking lot.
- Entièrement construit comme Bureau de services professionnels
- Disposition du plan d’étage ouverte en général
- Convient pour 3 à 8 personnes
- 4 bureaux privés
- 4 postes de travail
- Plafonds finis: 10’ - 14’
- Espace en excellent état
- Clé en main
- Aire de réception
- Plafond suspendu
- Lumière naturelle
- High Visibility, Off-Lobby Access
- Efficient layout with mix of open & private office
- Break Room
- Reception/Waiting Area & private treatment rooms
- Can be re-combined with adjacent suite
- Recently built-out
2e étage, ste 200
| Taille | 11 200 pi² |
| Terme | Négociable |
| Taux de location | Sur demande |
| Utilisation de l’espace | Bureau |
| Aménagement | construction complète |
| Disponible | Maintenant |
Prime 2nd floor corner space with views over the Jones Falls, North Ave Bridge, I-83, Howard Street Bridge. Close proximity to MICA, UB, and other Station North cultural amenities. Suite features great historic glass line, authentic "mill" finishes, exposed wooden columns/beams/timber decking, and exterior brick walls. Suite includes dedicated double-height reception area which could also be modified as a feature conference room. Can be combined with Suite 101 (directly below) via interior stair, for total of 14,752 contiguous sqft.
- Entièrement construit comme Bureau standard
- Disposition du plan d’étage ouverte en général
- Convient pour 45 à 80 personnes
- 20 bureaux privés
- 4 salles de conférence
- 60 postes de travail
- Plafonds finis: 12’
- Espace en excellent état
- Clé en main
- Climatisation centrale
- Aire de réception
- Accès aux ascenseurs
- Salle d’impression/Photocopie
- Espace en coin
- Hauts plafonds
- Plafond exposé
- Entreposage sécurisé
- CVCA disponible après les heures de travail
- Atrium
- Plan ouvert
- Creative Office Space with exposed brick & beam
- Glass-wall perimeter offices, high-bay LED lights
- Private reception area w/ atrium above main lobby
- Flexible workstation pods accommodate hybrid work
- Multiple breakout/conf. rooms for collaboration
- Historic aesthetic and premium/modern finishes
Aperçu de la propriété
Espace de bureau créatif de premier plan à Baltimore, avec des aménagements clé en main, disponibles immédiatement. Les suites présentent des murs de briques apparentes, de hauts plafonds, des poutres en bois massif et un mélange de colonnes en bois et en acier, offrant une esthétique moderne "industriel-chic". Profitez de connexions rapides vers le centre-ville de Baltimore ainsi que le comté de Baltimore, et d'une abondance de commodités de quartier. Attrayant pour une variété d'organisations à but non lucratif, de prestataires de services professionnels et d'autres utilisateurs axés sur les arts. Stationnement sur place et espace de rangement au sous-sol disponibles. Les espaces offrent des aménagements ouverts fonctionnels avec des bureaux en périphérie et des salles de pause, permettant aux entreprises de disposer leurs postes de travail de manière flexible et de prospérer à l'ère du travail hybride. Un atrium spectaculaire dans le hall d'entrée et une zone de réception au 2e étage confèrent un emplacement de calibre "siège social" pour une entreprise souhaitant accueillir clients et visiteurs dans ses locaux. Des toilettes individuelles haut de gamme offrent un maximum d'intimité et de confort.
- Accessible aux fauteuils roulants
- Station de recharge de voiture
Faits sur la propriété
Présenté par
The Gateway at Station North | 1900 N Howard St
Hmm, il semble y avoir eu une erreur lors de l’envoi de votre message. Veuillez réessayer.
Merci! Votre message a été envoyé.








