Votre courriel a été envoyé.
Diamond Hill Distribution Center Chesapeake, VA 23324 75 980–515 178 pi² d'espace disponible • Industriel



Certaines informations ont été traduites automatiquement.
Faits saillants du parc
- Multiple loading options, including dock-high, grade-level, and rail doors.
- Foreign Trade Zone designation and institutional ownership by Lovett Industrial.
- Immediate access to I-464, I-64, and major Port of Virginia terminals.
Faits sur le parc
| Superficie totale disponible | 515 178 pi² | Type de parc | Parc industriel |
| Max. contigu | 224 620 pi² |
| Superficie totale disponible | 515 178 pi² |
| Max. contigu | 224 620 pi² |
| Type de parc | Parc industriel |
Tous les espaces disponibles(5)
Afficher les taux de location en
- Espace
- Taille
- Terme
- Taux de location
- Utilisation de l’espace
- Aménagement
- Disponible
Diamond Hill I offers a prime industrial leasing opportunity in Chesapeake, Virginia, strategically located near the Port of Virginia. This ±90,475 SF high-bay warehouse provides exceptional functionality for distribution and logistics users, featuring clear heights ranging from 28’ to 30’7” and a reinforced concrete structure for heavy-duty operations. The property includes 24 dock-high doors (10’ x 10’) with dock seals and canopies, 10 equipped with in-ground pit levelers and 14 with edge-of-dock levelers, ensuring efficient loading and unloading capabilities.
- Comprend 1 634 pi² d’espace de bureau dédié
- 24 quais de chargement
- 10 of the 24 Docks with In-Ground Pit Levelers
- Espace en excellent état
- 24 - 10' x 10' Dock Level Loading Doors
- 14 of the 24 Docks with Edge-of-Dock Levelers
| Espace | Taille | Terme | Taux de location | Utilisation de l’espace | Aménagement | Disponible |
| 1er étage - 102 | 90 475 pi² | Négociable | Sur demande Sur demande Sur demande Sur demande | Industriel | construction complète | 30 jours |
1910 Campostella Rd - 1er étage - 102
- Espace
- Taille
- Terme
- Taux de location
- Utilisation de l’espace
- Aménagement
- Disponible
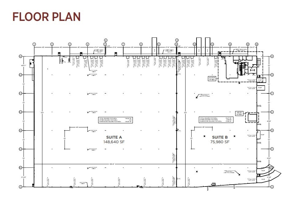
Diamond Hill II offers a premier industrial leasing opportunity in Chesapeake, Virginia, featuring a fully conditioned warehouse environment ideal for high-value storage and distribution operations. This ±224,620 SF facility is subdividable into two suites and provides a 27-foot clear height, reinforced concrete construction, and advanced building systems for operational efficiency. The property includes 19 dock-high doors (9’ x 10’) with in-ground pit levelers, dock seals, and canopies, eight grade-level doors (12’ x 14’) with motorized openers, and seven rail doors (9’ x 10’), offering exceptional flexibility for multi-modal logistics.
- Le taux de location ne comprend pas les services publics, les services de bâtiment ou les dépenses immobilières.
- Peut être associé à un ou plusieurs espaces supplémentaires pour obtenir jusqu’à 224 620 pi² d’espace adjacent.
- Ability to reactivate Norfolk Southern rail spur
- 1 accès plain-pied
- 15 quais de chargement
Diamond Hill II offers a premier industrial leasing opportunity in Chesapeake, Virginia, featuring a fully conditioned warehouse environment ideal for high-value storage and distribution operations. This ±224,620 SF facility is subdividable into two suites and provides a 27-foot clear height, reinforced concrete construction, and advanced building systems for operational efficiency. The property includes 19 dock-high doors (9’ x 10’) with in-ground pit levelers, dock seals, and canopies, eight grade-level doors (12’ x 14’) with motorized openers, and seven rail doors (9’ x 10’), offering exceptional flexibility for multi-modal logistics.
- Le taux de location ne comprend pas les services publics, les services de bâtiment ou les dépenses immobilières.
- 2 accès plain-pied
- Peut être associé à un ou plusieurs espaces supplémentaires pour obtenir jusqu’à 224 620 pi² d’espace adjacent.
- Ability to reactivate Norfolk Southern rail spur
- Comprend 4 000 pi² d’espace de bureau dédié
- Espace en excellent état
- 4 quais de chargement
| Espace | Taille | Terme | Taux de location | Utilisation de l’espace | Aménagement | Disponible |
| 1er étage - A | 148 640 pi² | Négociable | Sur demande Sur demande Sur demande Sur demande | Industriel | - | 30 jours |
| 1er étage - B | 75 980 pi² | Négociable | Sur demande Sur demande Sur demande Sur demande | Industriel | construction complète | 30 jours |
1920 Campostella Rd - 1er étage - A
1920 Campostella Rd - 1er étage - B
- Espace
- Taille
- Terme
- Taux de location
- Utilisation de l’espace
- Aménagement
- Disponible
- Le taux de location ne comprend pas les services publics, les services de bâtiment ou les dépenses immobilières.
- 2 quais de chargement
- Peut être associé à un ou plusieurs espaces supplémentaires pour obtenir jusqu’à 200 083 pi² d’espace adjacent.
- Docks with Leveler
- Le taux de location ne comprend pas les services publics, les services de bâtiment ou les dépenses immobilières.
- 2 accès plain-pied
- 1 quai de chargement
- Small Built-Out Office
- Comprend 1 317 pi² d’espace de bureau dédié
- Peut être associé à un ou plusieurs espaces supplémentaires pour obtenir jusqu’à 200 083 pi² d’espace adjacent.
- Docks with Leveler
| Espace | Taille | Terme | Taux de location | Utilisation de l’espace | Aménagement | Disponible |
| 1er étage - B & C | 100 002 pi² | Négociable | Sur demande Sur demande Sur demande Sur demande | Industriel | - | 30 jours |
| 1er étage - D & E | 100 081 pi² | Négociable | Sur demande Sur demande Sur demande Sur demande | Industriel | construction complète | 30 jours |
1960 Diamond Hill Rd - 1er étage - B & C
1960 Diamond Hill Rd - 1er étage - D & E
1910 Campostella Rd - 1er étage - 102
| Taille | 90 475 pi² |
| Terme | Négociable |
| Taux de location | Sur demande |
| Utilisation de l’espace | Industriel |
| Aménagement | construction complète |
| Disponible | 30 jours |
Diamond Hill I offers a prime industrial leasing opportunity in Chesapeake, Virginia, strategically located near the Port of Virginia. This ±90,475 SF high-bay warehouse provides exceptional functionality for distribution and logistics users, featuring clear heights ranging from 28’ to 30’7” and a reinforced concrete structure for heavy-duty operations. The property includes 24 dock-high doors (10’ x 10’) with dock seals and canopies, 10 equipped with in-ground pit levelers and 14 with edge-of-dock levelers, ensuring efficient loading and unloading capabilities.
- Comprend 1 634 pi² d’espace de bureau dédié
- Espace en excellent état
- 24 quais de chargement
- 24 - 10' x 10' Dock Level Loading Doors
- 10 of the 24 Docks with In-Ground Pit Levelers
- 14 of the 24 Docks with Edge-of-Dock Levelers
1920 Campostella Rd - 1er étage - A
| Taille | 148 640 pi² |
| Terme | Négociable |
| Taux de location | Sur demande |
| Utilisation de l’espace | Industriel |
| Aménagement | - |
| Disponible | 30 jours |
Diamond Hill II offers a premier industrial leasing opportunity in Chesapeake, Virginia, featuring a fully conditioned warehouse environment ideal for high-value storage and distribution operations. This ±224,620 SF facility is subdividable into two suites and provides a 27-foot clear height, reinforced concrete construction, and advanced building systems for operational efficiency. The property includes 19 dock-high doors (9’ x 10’) with in-ground pit levelers, dock seals, and canopies, eight grade-level doors (12’ x 14’) with motorized openers, and seven rail doors (9’ x 10’), offering exceptional flexibility for multi-modal logistics.
- Le taux de location ne comprend pas les services publics, les services de bâtiment ou les dépenses immobilières.
- 1 accès plain-pied
- Peut être associé à un ou plusieurs espaces supplémentaires pour obtenir jusqu’à 224 620 pi² d’espace adjacent.
- 15 quais de chargement
- Ability to reactivate Norfolk Southern rail spur
1920 Campostella Rd - 1er étage - B
| Taille | 75 980 pi² |
| Terme | Négociable |
| Taux de location | Sur demande |
| Utilisation de l’espace | Industriel |
| Aménagement | construction complète |
| Disponible | 30 jours |
Diamond Hill II offers a premier industrial leasing opportunity in Chesapeake, Virginia, featuring a fully conditioned warehouse environment ideal for high-value storage and distribution operations. This ±224,620 SF facility is subdividable into two suites and provides a 27-foot clear height, reinforced concrete construction, and advanced building systems for operational efficiency. The property includes 19 dock-high doors (9’ x 10’) with in-ground pit levelers, dock seals, and canopies, eight grade-level doors (12’ x 14’) with motorized openers, and seven rail doors (9’ x 10’), offering exceptional flexibility for multi-modal logistics.
- Le taux de location ne comprend pas les services publics, les services de bâtiment ou les dépenses immobilières.
- Comprend 4 000 pi² d’espace de bureau dédié
- 2 accès plain-pied
- Espace en excellent état
- Peut être associé à un ou plusieurs espaces supplémentaires pour obtenir jusqu’à 224 620 pi² d’espace adjacent.
- 4 quais de chargement
- Ability to reactivate Norfolk Southern rail spur
1960 Diamond Hill Rd - 1er étage - B & C
| Taille | 100 002 pi² |
| Terme | Négociable |
| Taux de location | Sur demande |
| Utilisation de l’espace | Industriel |
| Aménagement | - |
| Disponible | 30 jours |
- Le taux de location ne comprend pas les services publics, les services de bâtiment ou les dépenses immobilières.
- Peut être associé à un ou plusieurs espaces supplémentaires pour obtenir jusqu’à 200 083 pi² d’espace adjacent.
- 2 quais de chargement
- Docks with Leveler
1960 Diamond Hill Rd - 1er étage - D & E
| Taille | 100 081 pi² |
| Terme | Négociable |
| Taux de location | Sur demande |
| Utilisation de l’espace | Industriel |
| Aménagement | construction complète |
| Disponible | 30 jours |
- Le taux de location ne comprend pas les services publics, les services de bâtiment ou les dépenses immobilières.
- Comprend 1 317 pi² d’espace de bureau dédié
- 2 accès plain-pied
- Peut être associé à un ou plusieurs espaces supplémentaires pour obtenir jusqu’à 200 083 pi² d’espace adjacent.
- 1 quai de chargement
- Docks with Leveler
- Small Built-Out Office
Sélectionner des locataires à cette propriété
- Étage
- Nom du locataire
- Secteur
- 1ᵉʳ
- Amazon
- Détaillant
- 1ᵉʳ
- Busch Manufacturing LLC
- Fabrication
- 1ᵉʳ
- National Tire Wholesale
- Grossiste
Aperçu du parc
Strategically located just 1.3 miles from I-464 and 1.9 miles from I-64, Diamond Hill III provides superior access to major transportation corridors and is within 11–12 miles of the Virginia International Gateway and Norfolk International Terminal. The property’s Foreign Trade Zone designation and proximity to the Port of Virginia make it an ideal choice for companies seeking a competitive edge in import/export operations. With institutional ownership and flexible leasing options, this facility is well-positioned to meet the demands of modern supply chain users.
Présenté par
Diamond Hill Distribution Center | Chesapeake, VA 23324
Hmm, il semble y avoir eu une erreur lors de l’envoi de votre message. Veuillez réessayer.
Merci! Votre message a été envoyé.










