Votre courriel a été envoyé.
1915 MacArthur Rd 3 400–20 050 pi² d'espace disponible • Industriel • Waukesha, WI 53188



Certaines informations ont été traduites automatiquement.
Faits saillants
- Quite cul de sac industrial park location.
- New paint, LED lighting, carpet, front door, windows, and mechanicals.
- Large parking area / parking lot.
Caractéristiques
Tous les espaces disponibles(3)
Afficher les taux de location en
- Espace
- Taille
- Terme
- Taux de location
- Utilisation de l’espace
- Aménagement
- Disponible
- Le taux de location ne comprend pas les services publics, les services de bâtiment ou les dépenses immobilières.
- 2 accès plain-pied
- Comprend 1 200 pi² d’espace de bureau dédié
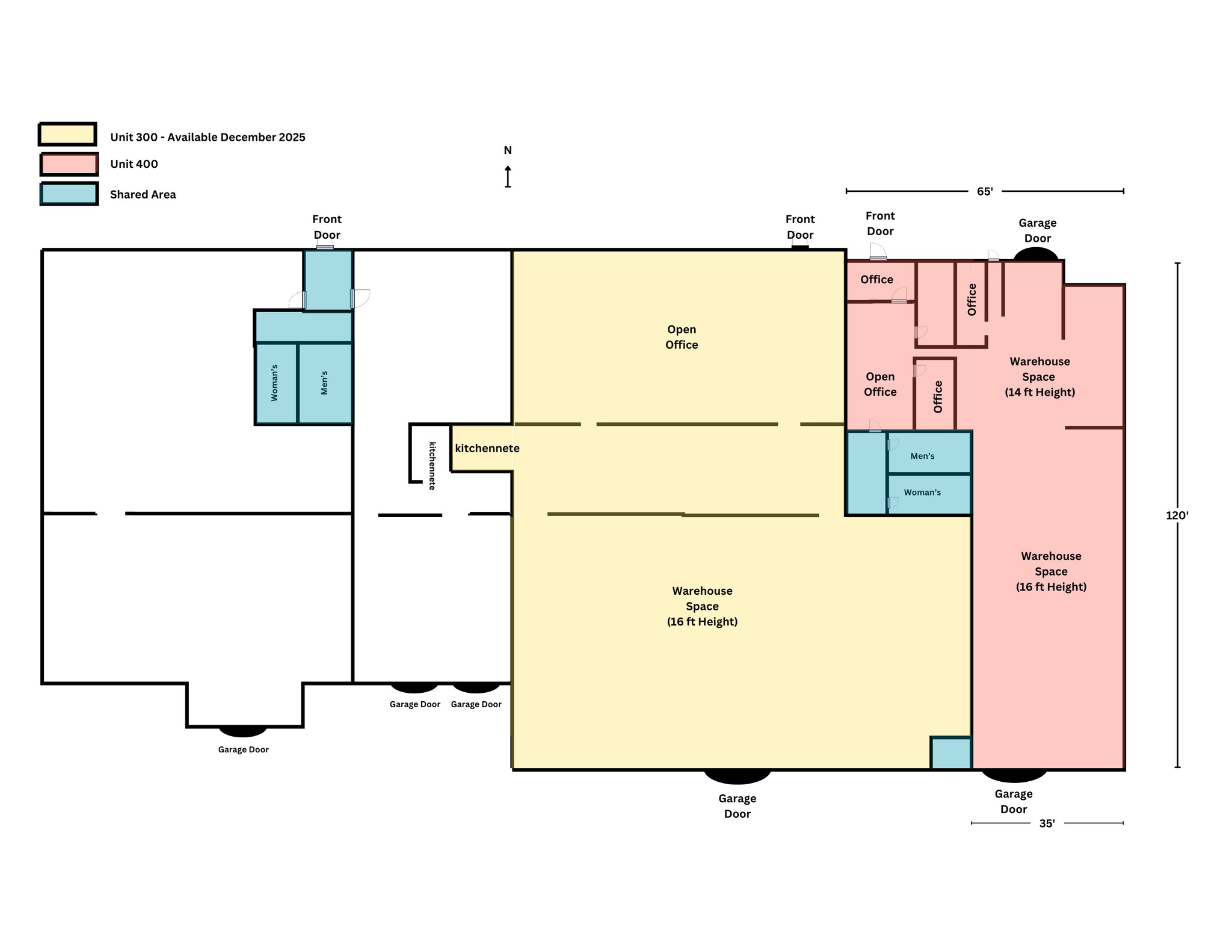
Manufacturing/Industrial/Flex Space with Showroon/Office component Unit 400: 5,750 sq ft industrial flex unit offers a versatile mix of 4,200 sq ft of open warehouse space with 14–16 ft clear heights and 1,550 sq ft of finished office area, ideal for light manufacturing, distribution, or service operations. The space includes two drive-in doors (12×14 ft and 8×10 ft), a wet sprinkler system, single and 3-phase power, and restrooms. Recent building upgrades include new paint, LED lighting, carpet, windows, and mechanicals, creating a clean, move-in-ready environment. Located just minutes from I-94 and downtown Waukesha. Zoned M-2 General Manufacturing, Unit 400 includes 15 dedicated parking spaces and is offered at $3,800 per month NNN ($7.93 NNN) plus estimated expenses of $1315 per month ($2.75 psf) -- expenses including water, utilities, electrical.
- Le taux de location ne comprend pas les services publics, les services de bâtiment ou les dépenses immobilières.
- Air central et chauffage
- Cour
- Comprend 3 000 pi² d’espace de bureau dédié
- Bureaux partitionnés
Manufacturing/Industrial/Flex Space with Showroon/Office component Unit 400: 5,750 sq ft industrial flex unit offers a versatile mix of 4,200 sq ft of open warehouse space with 14–16 ft clear heights and 1,550 sq ft of finished office area, ideal for light manufacturing, distribution, or service operations. The space includes two drive-in doors (12×14 ft and 8×10 ft), a wet sprinkler system, single and 3-phase power, and restrooms. Recent building upgrades include new paint, LED lighting, carpet, windows, and mechanicals, creating a clean, move-in-ready environment. Located just minutes from I-94 and downtown Waukesha. Zoned M-2 General Manufacturing, Unit 400 includes 15 dedicated parking spaces and is offered at $3,800 per month NNN ($7.93 NNN) plus estimated expenses of $1315 per month ($2.75 psf) -- expenses including water, utilities, electrical.
- Le taux comprend les services publics, les services de bâtiment et les dépenses immobilières.
- Sprinkler throughout
- Comprend 1 515 pi² d’espace de bureau dédié
- General Manufacturing Zoning
| Espace | Taille | Terme | Taux de location | Utilisation de l’espace | Aménagement | Disponible |
| 1er étage - 200 | 3 400 pi² | 1-5 ans | 10,82 $ CAD/pi²/an 0,90 $ CAD/pi²/mois 36 798 $ CAD/an 3 067 $ CAD/mois | Industriel | - | 2026-08-01 |
| 1er étage - 300 | 10 900 pi² | 1-5 ans | 10,41 $ CAD/pi²/an 0,87 $ CAD/pi²/mois 113 491 $ CAD/an 9 458 $ CAD/mois | Industriel | - | Bail en cours |
| 1er étage - 400 | 5 750 pi² | 1-5 ans | 10,85 $ CAD/pi²/an 0,90 $ CAD/pi²/mois 62 390 $ CAD/an 5 199 $ CAD/mois | Industriel | - | Bail en cours |
1er étage - 200
| Taille |
| 3 400 pi² |
| Terme |
| 1-5 ans |
| Taux de location |
| 10,82 $ CAD/pi²/an 0,90 $ CAD/pi²/mois 36 798 $ CAD/an 3 067 $ CAD/mois |
| Utilisation de l’espace |
| Industriel |
| Aménagement |
| - |
| Disponible |
| 2026-08-01 |
1er étage - 300
| Taille |
| 10 900 pi² |
| Terme |
| 1-5 ans |
| Taux de location |
| 10,41 $ CAD/pi²/an 0,87 $ CAD/pi²/mois 113 491 $ CAD/an 9 458 $ CAD/mois |
| Utilisation de l’espace |
| Industriel |
| Aménagement |
| - |
| Disponible |
| Bail en cours |
1er étage - 400
| Taille |
| 5 750 pi² |
| Terme |
| 1-5 ans |
| Taux de location |
| 10,85 $ CAD/pi²/an 0,90 $ CAD/pi²/mois 62 390 $ CAD/an 5 199 $ CAD/mois |
| Utilisation de l’espace |
| Industriel |
| Aménagement |
| - |
| Disponible |
| Bail en cours |
1er étage - 200
| Taille | 3 400 pi² |
| Terme | 1-5 ans |
| Taux de location | 10,82 $ CAD/pi²/an |
| Utilisation de l’espace | Industriel |
| Aménagement | - |
| Disponible | 2026-08-01 |
- Le taux de location ne comprend pas les services publics, les services de bâtiment ou les dépenses immobilières.
- Comprend 1 200 pi² d’espace de bureau dédié
- 2 accès plain-pied
1er étage - 300
| Taille | 10 900 pi² |
| Terme | 1-5 ans |
| Taux de location | 10,41 $ CAD/pi²/an |
| Utilisation de l’espace | Industriel |
| Aménagement | - |
| Disponible | Bail en cours |
Manufacturing/Industrial/Flex Space with Showroon/Office component Unit 400: 5,750 sq ft industrial flex unit offers a versatile mix of 4,200 sq ft of open warehouse space with 14–16 ft clear heights and 1,550 sq ft of finished office area, ideal for light manufacturing, distribution, or service operations. The space includes two drive-in doors (12×14 ft and 8×10 ft), a wet sprinkler system, single and 3-phase power, and restrooms. Recent building upgrades include new paint, LED lighting, carpet, windows, and mechanicals, creating a clean, move-in-ready environment. Located just minutes from I-94 and downtown Waukesha. Zoned M-2 General Manufacturing, Unit 400 includes 15 dedicated parking spaces and is offered at $3,800 per month NNN ($7.93 NNN) plus estimated expenses of $1315 per month ($2.75 psf) -- expenses including water, utilities, electrical.
- Le taux de location ne comprend pas les services publics, les services de bâtiment ou les dépenses immobilières.
- Comprend 3 000 pi² d’espace de bureau dédié
- Air central et chauffage
- Bureaux partitionnés
- Cour
1er étage - 400
| Taille | 5 750 pi² |
| Terme | 1-5 ans |
| Taux de location | 10,85 $ CAD/pi²/an |
| Utilisation de l’espace | Industriel |
| Aménagement | - |
| Disponible | Bail en cours |
Manufacturing/Industrial/Flex Space with Showroon/Office component Unit 400: 5,750 sq ft industrial flex unit offers a versatile mix of 4,200 sq ft of open warehouse space with 14–16 ft clear heights and 1,550 sq ft of finished office area, ideal for light manufacturing, distribution, or service operations. The space includes two drive-in doors (12×14 ft and 8×10 ft), a wet sprinkler system, single and 3-phase power, and restrooms. Recent building upgrades include new paint, LED lighting, carpet, windows, and mechanicals, creating a clean, move-in-ready environment. Located just minutes from I-94 and downtown Waukesha. Zoned M-2 General Manufacturing, Unit 400 includes 15 dedicated parking spaces and is offered at $3,800 per month NNN ($7.93 NNN) plus estimated expenses of $1315 per month ($2.75 psf) -- expenses including water, utilities, electrical.
- Le taux comprend les services publics, les services de bâtiment et les dépenses immobilières.
- Comprend 1 515 pi² d’espace de bureau dédié
- Sprinkler throughout
- General Manufacturing Zoning
Aperçu de la propriété
Unit 400: 5,750 sq ft industrial flex unit offers a versatile mix of 4,200 sq ft of open warehouse space with 14–16 ft clear heights and 1,550 sq ft of finished office area, ideal for light manufacturing, distribution, or service operations. The space includes two drive-in doors (12×14 ft and 10×10 ft), a wet sprinkler system, single and 3-phase power, and shared restrooms. Recent building upgrades include new paint, LED lighting, carpet, windows, and mechanicals, creating a clean, move-in-ready environment. Unit 300: 10,900 sq ft industrial flex unit about 65% warehouse space and 35% office/showeroom space. 14x14 ft drive-in door, a wet sprinkler system, single and 3-phase power, and shared restrooms. Recent building upgrades include new paint, LED lighting, carpet, windows, and mechanicals, creating a clean, move-in-ready environment. Located just minutes from I-94 and downtown Waukesha. Zoned M-2 General Manufacturing, Unit 400 includes 15 dedicated parking spaces and is offered at $3,800 per month NNN ($7.93 NNN) plus estimated expenses of $1315 per month ($2.75 psf) -- includes utilities, water and electric.
Faits sur l’installation fabrication
Présenté par
BTR Flex
1915 MacArthur Rd
Hmm, il semble y avoir eu une erreur lors de l’envoi de votre message. Veuillez réessayer.
Merci! Votre message a été envoyé.






