Se Connecter/S’inscrire
Votre courriel a été envoyé.
192-206 Broad Street Rd - Manakin Crossing Lot • Terrain commercial • 10 Acres • Manakin Sabot, VA 23103



Certaines informations ont été traduites automatiquement.
Faits saillants de l'investissement
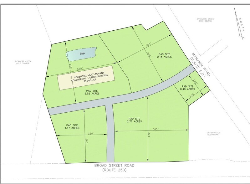
- Zoné B-1 - 10 acres
- Prêt pour le développement
- Épuration et eau sur la rue West Broad et le chemin Manakin (route 250/621)
- Propositions de coentreprise examinées
Résumé de l'annonce
Boutons d'eau et d'égout. Égouts pluviaux et drainage.
Faits sur la propriété
1 Lot disponible
Lot
| Taille du lot | 10,00 AC |
| Taille du lot | 10,00 AC |
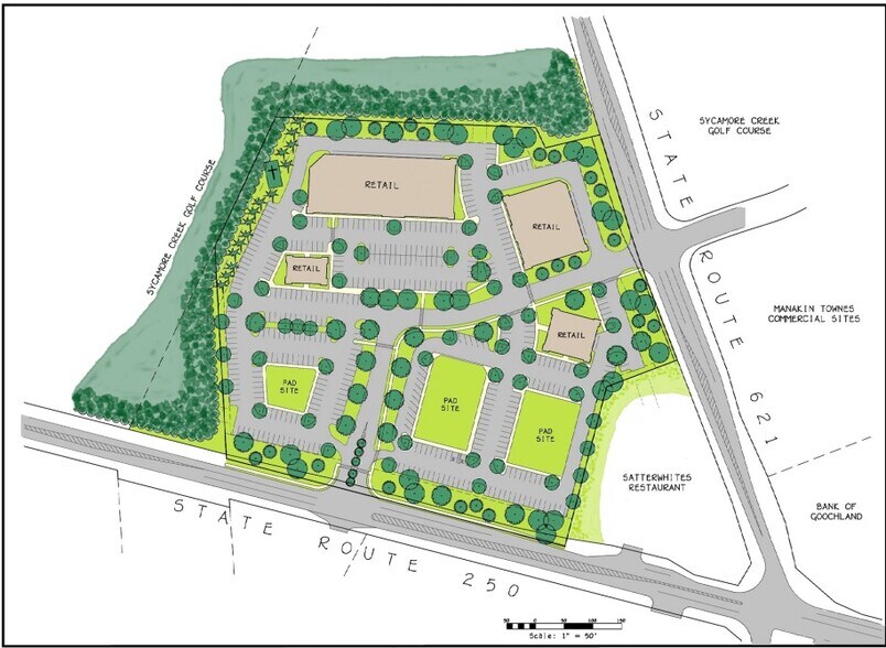
10 acres de terrain zoné B1. Vendu tel qu'il est. Le zonage permet l'exploitation des résidences-services et des maisons de soins infirmiers.
Description
Située au large de la rue Broad (Rt 250) et de la route Manakin, cette propriété a des talons disponibles pour se connecter aux services d'eau et d'égout. Les égouts pluviaux et le drainage sont déjà sur place. Les 10 acres sont zonées pour B-1.
1 1
1 de 4
Vidéos
Visite extérieure 3D Matterport
Visite 3D Matterport
Photos
Vue depuis la rue
Rue
Carte
1 de 1
Présenté par
192-206 Broad Street Rd - Manakin Crossing
Vous êtes déjà membre? Connectez-vous
Hmm, il semble y avoir eu une erreur lors de l’envoi de votre message. Veuillez réessayer.
Merci! Votre message a été envoyé.
