Se Connecter/S’inscrire
Votre courriel a été envoyé.
The Atlantic 1921 Atlantic Ave 12 500 pi² d'espace disponible • Commerce de détail • 4 étoiles • Brooklyn, NY 11233



Certaines informations ont été traduites automatiquement.
Faits saillants
- L'espace est divisible
- Situé à la base d'un nouveau développement résidentiel de 236 logements avec la réduction ICAP en place
- Façades enveloppantes impressionnantes
Tous les espaces disponibles(1)
Afficher les taux de location en
- Espace
- Taille
- Terme
- Taux de location
- Utilisation de l’espace
- État
- Disponible
Situated at the base of 236-unit residential new development with ICAP Abatement in place. Space is divisible.
- Espace nécessitant des rénovations
- Façades enveloppantes impressionnantes (163 pi)
- Plafonds finis: 18’
| Espace | Taille | Terme | Taux de location | Utilisation de l’espace | État | Disponible |
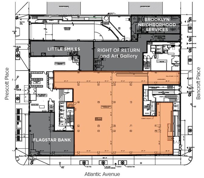
| RDC | 12 500 pi² | Négociable | Sur demande Sur demande Sur demande Sur demande | Commerce de détail | espace cloisonné | Maintenant |
RDC
| Taille |
| 12 500 pi² |
| Terme |
| Négociable |
| Taux de location |
| Sur demande Sur demande Sur demande Sur demande |
| Utilisation de l’espace |
| Commerce de détail |
| État |
| espace cloisonné |
| Disponible |
| Maintenant |
1 de 3
Vidéos
Visite extérieure 3D Matterport
Visite 3D Matterport
Photos
Vue depuis la rue
Rue
Carte
RDC
| Taille | 12 500 pi² |
| Terme | Négociable |
| Taux de location | Sur demande |
| Utilisation de l’espace | Commerce de détail |
| État | espace cloisonné |
| Disponible | Maintenant |
Situated at the base of 236-unit residential new development with ICAP Abatement in place. Space is divisible.
- Espace nécessitant des rénovations
- Plafonds finis: 18’
- Façades enveloppantes impressionnantes (163 pi)
Faits sur la propriété
| Superficie totale disponible | 12 500 pi² | Style d’appartement | De hauteur moyenne |
| Nombre d’unités | 236 | Taille du bâtiment | 264 520 pi² |
| Type de propriété | Immeuble residentiel | Année de construction | 2022 |
| Sous-type de propriété | Appartement |
| Superficie totale disponible | 12 500 pi² |
| Nombre d’unités | 236 |
| Type de propriété | Immeuble residentiel |
| Sous-type de propriété | Appartement |
| Style d’appartement | De hauteur moyenne |
| Taille du bâtiment | 264 520 pi² |
| Année de construction | 2022 |
À propos de la propriété
ENTRE PRESCOTT ET BANCROFT PLACE | BEDFORD-STUYVESANT
Walk Score®
Très pratique à pied (87)
Transit Score®
Un paradis pour conducteur (100)
Principaux détaillants à proximité
1 de 29
Vidéos
Visite extérieure 3D Matterport
Visite 3D Matterport
Photos
Vue depuis la rue
Rue
Carte
Présenté par
The Atlantic | 1921 Atlantic Ave
Vous êtes déjà membre? Connectez-vous
Hmm, il semble y avoir eu une erreur lors de l’envoi de votre message. Veuillez réessayer.
Merci! Votre message a été envoyé.
Votre message a été envoyé !
Activez votre compte LoopNet dès maintenant pour suivre les propriétés, recevoir des alertes en temps réel, gagner du temps sur vos demandes futures et bien plus encore.



