Se Connecter/S’inscrire
Votre courriel a été envoyé.
1938 Phillips Way - 1938 & 1942 Phillips Way Lot • Terrain commercial • 0,13 Acres • 805 407 $ CAD • Los Angeles, CA 90042



Certaines informations ont été traduites automatiquement.
Faits saillants de l'investissement
- Two Side-by-Side Hillside Lots – Ideal for building two custom homes or a private compound
- Strong Development Potential – Perfect for builders, investors, or end-users
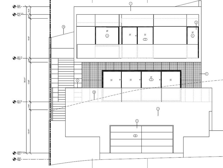
- Conceptual Plans Included (Not yet submitted):
Résumé de l'annonce
Scenic Hillside Development Opportunity – 1938 & 1942 Phillips Way, Highland Park
Seller may carry financing for up to 50% of the purchase price, subject to Buyer’s creditworthiness and Seller’s approval.
A prime opportunity for a developer or owner-user to build two custom homes in one of Northeast LA’s most picturesque hillside communities. Located in the desirable Highland Park area near Eagle Rock, 1938 and 1942 Phillips Way offer panoramic views stretching from Downtown Los Angeles to Palos Verdes—delivering a rare blend of serenity, privacy, and proximity to the city.
The seller has conceptual drawings available for each parcel. 1938 Phillips Way is designed as a 3-bedroom, 3.5-bathroom home with a study room, attached 2-car garage, and approximately 1,800 square feet of living space. 1942 Phillips Way is envisioned as a 2-bedroom, 2.5-bathroom residence with an attached 2-car garage and approximately 1,280 square feet. Please note that these plans have not been submitted to or approved by the City of Los Angeles, allowing flexibility for customization or redesign.
Whether you’re looking to build a private hillside compound or two striking single-family homes, this dual-lot offering provides an exceptional canvas with scale, views, and development potential in one of LA’s most sought-after neighborhoods.y.
Seller may carry financing for up to 50% of the purchase price, subject to Buyer’s creditworthiness and Seller’s approval.
A prime opportunity for a developer or owner-user to build two custom homes in one of Northeast LA’s most picturesque hillside communities. Located in the desirable Highland Park area near Eagle Rock, 1938 and 1942 Phillips Way offer panoramic views stretching from Downtown Los Angeles to Palos Verdes—delivering a rare blend of serenity, privacy, and proximity to the city.
The seller has conceptual drawings available for each parcel. 1938 Phillips Way is designed as a 3-bedroom, 3.5-bathroom home with a study room, attached 2-car garage, and approximately 1,800 square feet of living space. 1942 Phillips Way is envisioned as a 2-bedroom, 2.5-bathroom residence with an attached 2-car garage and approximately 1,280 square feet. Please note that these plans have not been submitted to or approved by the City of Los Angeles, allowing flexibility for customization or redesign.
Whether you’re looking to build a private hillside compound or two striking single-family homes, this dual-lot offering provides an exceptional canvas with scale, views, and development potential in one of LA’s most sought-after neighborhoods.y.
Salle de données Cliquez ici pour accéder à
Faits sur la propriété
| Prix | 805 407 $ CAD | Type de propriété | Terrain |
| Type de vente | Investissement ou propriétaire utilisateur | Sous-type de propriété | Terrain commercial |
| Nombre de lots | 1 | Taille totale du lot | 0,13 AC |
| Zonage | LARE11 - Residential Estate | ||
| Prix | 805 407 $ CAD |
| Type de vente | Investissement ou propriétaire utilisateur |
| Nombre de lots | 1 |
| Type de propriété | Terrain |
| Sous-type de propriété | Terrain commercial |
| Taille totale du lot | 0,13 AC |
| Zonage | LARE11 - Residential Estate |
1 Lot disponible
Lot 8
| Prix | 805 407 $ CAD | Taille du lot | 0,13 AC |
| Prix par AC | 6 272 738,87 $ CAD |
| Prix | 805 407 $ CAD |
| Prix par AC | 6 272 738,87 $ CAD |
| Taille du lot | 0,13 AC |
Scenic Hillside Development Opportunity – 1938 & 1942 Phillips Way, Highland Park A prime opportunity for a developer or owner-user to build two custom homes in the desirable Highland Park area near Eagle Rock Seller may carry financing for up to 50%
1 1
Assez practicable à pied
50/100
Exceptionnellement facile d'accès en voiture
90/100
Transports en commun limités
20/100
Plutôt praticable en vélo
40/100
Impôts fonciers
| Numéro de lot | 5479-006-002 | Évaluation des bâtiments | 0 $ CAD |
| Évaluation du terrain | 140 264 $ CAD | Évaluation totale | 140 264 $ CAD |
Impôts fonciers
Numéro de lot
5479-006-002
Évaluation du terrain
140 264 $ CAD
Évaluation des bâtiments
0 $ CAD
Évaluation totale
140 264 $ CAD
1 de 22
Vidéos
Visite extérieure 3D Matterport
Visite 3D Matterport
Photos
Vue depuis la rue
Rue
Carte
1 de 1
Présenté par
1938 Phillips Way - 1938 & 1942 Phillips Way
Vous êtes déjà membre? Connectez-vous
Hmm, il semble y avoir eu une erreur lors de l’envoi de votre message. Veuillez réessayer.
Merci! Votre message a été envoyé.
