Votre courriel a été envoyé.
Certaines informations ont été traduites automatiquement.
Faits saillants
- +/- 6,897 SF freestanding medical office building
- Ideal location for physicians, specialists, or healthcare providers
- Available for occupancy June 2026
Tous les espaces disponibles(1)
Afficher les taux de location en
- Espace
- Taille
- Terme
- Taux de location
- Utilisation de l’espace
- Aménagement
- Disponible
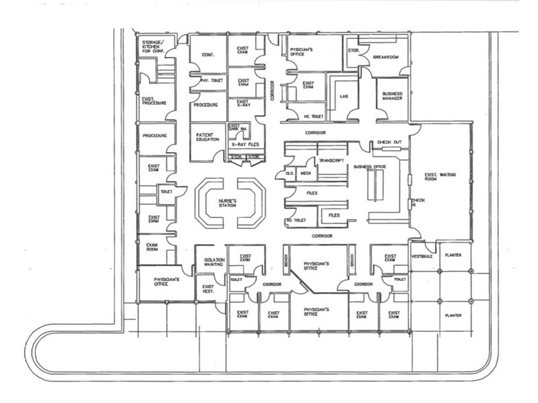
This freestanding medical office building, totaling approximately 6,897 square feet, is currently occupied, but will be available for occupancy by June 2026. The building is well configured for medical use with an efficient clinical layout centered around a large nurses’ station and multiple patient care areas. The floor plan includes numerous exam rooms, procedure rooms, physicians’ offices, a lab area, X-ray space, patient education room, transcription/work areas, file storage, and administrative offices, including a business office and manager’s office. The facility also provides multiple restrooms, a staff breakroom, and ample storage areas, allowing for efficient patient flow and staff operations. The property features a dedicated patient waiting area with reception and check-out, along with several interior corridors that separate clinical, administrative, and patient circulation areas. Strategically located in Midtown Columbus, the building sits within walking distance of Piedmont Columbus Regional Midtown Hospital and directly across from the hospital’s emergency department, making it an ideal location for physicians, specialists, or healthcare providers seeking close proximity to the hospital campus. The landlord is open to discussing tenant improvement allowances or modifications to allow a new tenant to update or reconfigure the space to meet their specific operational needs.
- Le taux inscrit peut ne pas comprendre certains services publics, les services de bâtiment et les dépenses immobilières.
- Convient pour 17 à 53 personnes
| Espace | Taille | Terme | Taux de location | Utilisation de l’espace | Aménagement | Disponible |
| 1er étage | 6 897 pi² | Négociable | Sur demande Sur demande Sur demande Sur demande | Bureau | - | 2026-06-01 |
1er étage
| Taille |
| 6 897 pi² |
| Terme |
| Négociable |
| Taux de location |
| Sur demande Sur demande Sur demande Sur demande |
| Utilisation de l’espace |
| Bureau |
| Aménagement |
| - |
| Disponible |
| 2026-06-01 |
1er étage
| Taille | 6 897 pi² |
| Terme | Négociable |
| Taux de location | Sur demande |
| Utilisation de l’espace | Bureau |
| Aménagement | - |
| Disponible | 2026-06-01 |
This freestanding medical office building, totaling approximately 6,897 square feet, is currently occupied, but will be available for occupancy by June 2026. The building is well configured for medical use with an efficient clinical layout centered around a large nurses’ station and multiple patient care areas. The floor plan includes numerous exam rooms, procedure rooms, physicians’ offices, a lab area, X-ray space, patient education room, transcription/work areas, file storage, and administrative offices, including a business office and manager’s office. The facility also provides multiple restrooms, a staff breakroom, and ample storage areas, allowing for efficient patient flow and staff operations. The property features a dedicated patient waiting area with reception and check-out, along with several interior corridors that separate clinical, administrative, and patient circulation areas. Strategically located in Midtown Columbus, the building sits within walking distance of Piedmont Columbus Regional Midtown Hospital and directly across from the hospital’s emergency department, making it an ideal location for physicians, specialists, or healthcare providers seeking close proximity to the hospital campus. The landlord is open to discussing tenant improvement allowances or modifications to allow a new tenant to update or reconfigure the space to meet their specific operational needs.
- Le taux inscrit peut ne pas comprendre certains services publics, les services de bâtiment et les dépenses immobilières.
- Convient pour 17 à 53 personnes
Aperçu de la propriété
Strategically located in Midtown Columbus, the building sits within walking distance of Piedmont Columbus Regional Midtown Hospital and directly across from the hospital’s emergency department, making it an ideal location for physicians, specialists, or healthcare providers seeking close proximity to the hospital campus.
- Banque
- Ligne d'autobus
- Dépanneur
- Restaurant
Faits sur la propriété
Sélectionner des locataires
- Étage
- Nom du locataire
- Secteur
- 1ᵉʳ
- Internal Medicine Assoc
- Soins de santé et assistance sociale
Présenté par
1942 North Ave
Hmm, il semble y avoir eu une erreur lors de l’envoi de votre message. Veuillez réessayer.
Merci! Votre message a été envoyé.



