Votre courriel a été envoyé.
Certaines informations ont été traduites automatiquement.
Faits saillants
- Idéalement situé à moins de 5 minutes en voiture de l'I-480.
Caractéristiques
Tous les espaces disponibles(1)
Afficher les taux de location en
- Espace
- Taille
- Terme
- Taux de location
- Utilisation de l’espace
- Aménagement
- Disponible
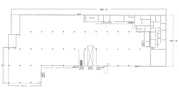
42,810 SF of warehouse; 4,440 SF office. New roof with 20-year warranty. Four docks (one internal) and one drive-in door. Three 5-ton cranes and two 2-ton cranes.18’ clear height. 25’x40’ column spacing. Power: 480V/208/3PH 800 amps. Ample parking available.
- Le taux de location ne comprend pas les services publics, les services de bâtiment ou les dépenses immobilières.
- 4 quais de chargement
- 1 accès plain-pied
| Espace | Taille | Terme | Taux de location | Utilisation de l’espace | Aménagement | Disponible |
| 1er étage | 47 250 pi² | Négociable | 8,95 $ CAD/pi²/an 0,75 $ CAD/pi²/mois 422 767 $ CAD/an 35 231 $ CAD/mois | Industriel | construction partielle | Maintenant |
1er étage
| Taille |
| 47 250 pi² |
| Terme |
| Négociable |
| Taux de location |
| 8,95 $ CAD/pi²/an 0,75 $ CAD/pi²/mois 422 767 $ CAD/an 35 231 $ CAD/mois |
| Utilisation de l’espace |
| Industriel |
| Aménagement |
| construction partielle |
| Disponible |
| Maintenant |
1er étage
| Taille | 47 250 pi² |
| Terme | Négociable |
| Taux de location | 8,95 $ CAD/pi²/an |
| Utilisation de l’espace | Industriel |
| Aménagement | construction partielle |
| Disponible | Maintenant |
42,810 SF of warehouse; 4,440 SF office. New roof with 20-year warranty. Four docks (one internal) and one drive-in door. Three 5-ton cranes and two 2-ton cranes.18’ clear height. 25’x40’ column spacing. Power: 480V/208/3PH 800 amps. Ample parking available.
- Le taux de location ne comprend pas les services publics, les services de bâtiment ou les dépenses immobilières.
- 1 accès plain-pied
- 4 quais de chargement
Aperçu de la propriété
42 810 pi2 d'entrepôt ; 4 440 pi2 de bureaux. Toiture neuve avec garantie de 20 ans. Quatre quais (un interne) et une porte d'entrée. Trois grues de 5 tonnes et deux grues de 2 tonnes. Hauteur libre de 18 pi. Espacement des colonnes de 25 pi x 40 pi. Puissance : 480V/208/3PH 800 ampères. Un grand parking est disponible.
Faits sur l’installation fabrication
Présenté par
1943 Midway Dr
Hmm, il semble y avoir eu une erreur lors de l’envoi de votre message. Veuillez réessayer.
Merci! Votre message a été envoyé.





