Se Connecter/S’inscrire
Votre courriel a été envoyé.
19575 Janacek Ct Unité de condo • Bureau • 1 670 pi² • À vendre 635 032 $ CAD • Brookfield, WI 53045


Certaines informations ont été traduites automatiquement.
Faits saillants de l'investissement
- Monument signage along Janacek Court
- Located adjacent to Von Maur, Poplar Creek, Cafe Hollander, BelAir Cantina, Sendik’s FoodMarket, and many other high-end retailers
- Just off Bluemound Road with direct access to “The Corners
- Condominium Declarations and budget available upon request
1 Unité disponible
Unité 102
| Taille de l’unité | 1 670 pi² | Utilisation du condo | Bureau |
| Prix | 635 032 $ CAD | Type de vente | Propriétaire utilisateur |
| Prix par pi² | 380,26 $ CAD |
| Taille de l’unité | 1 670 pi² |
| Prix | 635 032 $ CAD |
| Prix par pi² | 380,26 $ CAD |
| Utilisation du condo | Bureau |
| Type de vente | Propriétaire utilisateur |
Description
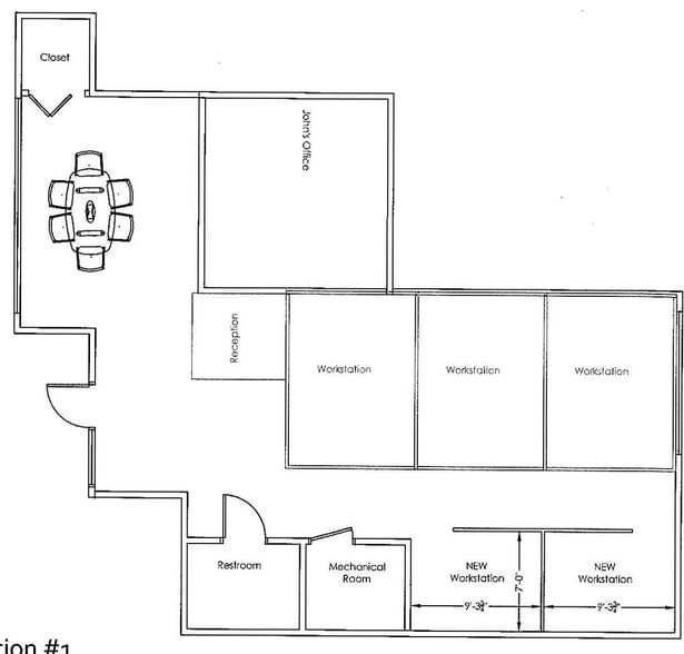
Single story with direct suite access. Condo association fees are $270 a month.
Notes sur la vente
Workstations, desks, and chairs included
Suite 102
Suite 102
Suite 102
Suite 102
1 de 4
Vidéos
Visite extérieure 3D Matterport
Visite 3D Matterport
Photos
Vue depuis la rue
Rue
Carte
Faits sur la propriété
Les caractéristiques suivantes s'appliquent à l'ensemble du bâtiment. Les détails relatifs aux unités de copropriété individuelles peuvent varier et figurent dans les informations concernant les unités ci-dessus.
| Taille totale du bâtiment | 9 764 pi² | Superficie de plancher typique | 9 764 pi² |
| Type de propriété | Bureau (Condo) | Année de construction | 2009 |
| Classe d’immeuble | C | Taille du lot | 2,20 AC |
| Planchers | 1 | Ratio de stationnement | 0,72/1 000 pi² |
| Taille totale du bâtiment | 9 764 pi² |
| Type de propriété | Bureau (Condo) |
| Classe d’immeuble | C |
| Planchers | 1 |
| Superficie de plancher typique | 9 764 pi² |
| Année de construction | 2009 |
| Taille du lot | 2,20 AC |
| Ratio de stationnement | 0,72/1 000 pi² |
1 1
Assez praticable à pied
40/100
Exceptionnellement facile d’accès en voiture
100/100
Transports en commun limités
20/100
Assez praticable en vélo
20/100
1 de 3
Vidéos
Visite extérieure 3D Matterport
Visite 3D Matterport
Photos
Vue depuis la rue
Rue
Carte
1 de 1
Présenté par
19575 Janacek Ct
Vous êtes déjà membre? Connectez-vous
Hmm, il semble y avoir eu une erreur lors de l’envoi de votre message. Veuillez réessayer.
Merci! Votre message a été envoyé.

