Se Connecter/S’inscrire
Votre courriel a été envoyé.
Belmont Plaza I 19775 Belmont Executive Plz 2 356–33 708 pi² d'espace disponible • Bureau • 4 étoiles • Ashburn, VA 20147



Certaines informations ont été traduites automatiquement.
Faits saillants
- Base d'agrément exceptionnelle à Belmont Chase, à côté du Whole Foods Market et plus encore.
- Ratio abondant de places de stationnement en surface : 3,5/1 000 pc.
- Accès continu par les routes 7 et 28, I-495 et Dulles Toll Road et l'aéroport international de Dulles.
Tous les espaces disponibles(6)
Afficher les taux de location en
- Espace
- Taille
- Terme
- Taux de location
- Utilisation de l’espace
- État
- Disponible
- Le taux comprend les services publics, les services de bâtiment et les dépenses immobilières.
- Disposition intensive du bureau
- Entièrement construit comme Bureau standard
- Convient pour 7 à 21 personnes
- Entièrement construit comme Bureau standard
- Convient pour 6 à 19 personnes
- Disposition du plan d’étage ouverte en général
- Peut être associé à un ou plusieurs espaces supplémentaires pour obtenir jusqu’à 9 187 pi² d’espace adjacent.
- Entièrement construit comme Bureau standard
- Convient pour 18 à 55 personnes
- Disposition du plan d’étage ouverte en général
- Peut être associé à un ou plusieurs espaces supplémentaires pour obtenir jusqu’à 9 187 pi² d’espace adjacent.
- Entièrement construit comme Bureau standard
- Convient pour 31 à 98 personnes
- Disposition intensive du bureau
- Entièrement construit comme Bureau standard
- Convient pour 13 à 40 personnes
- Disposition intensive du bureau
Offices along the window line with views of Ashburn.
- Le taux comprend les services publics, les services de bâtiment et les dépenses immobilières.
- Disposition intensive du bureau
- Espace en excellent état
- Entièrement construit comme Bureau standard
- Convient pour 12 à 39 personnes
| Espace | Taille | Terme | Taux de location | Utilisation de l’espace | État | Disponible |
| 3e étage, ste 310 | 2 574 pi² | Négociable | 40,32 $ CAD/pi²/an 3,36 $ CAD/pi²/mois 103 785 $ CAD/an 8 649 $ CAD/mois | Bureau | construction complète | Maintenant |
| 3e étage, ste 330 | 2 356 pi² | Négociable | Sur demande Sur demande Sur demande Sur demande | Bureau | construction complète | 2026-08-01 |
| 3e étage, ste 350 | 6 831 pi² | Négociable | Sur demande Sur demande Sur demande Sur demande | Bureau | construction complète | 2026-08-01 |
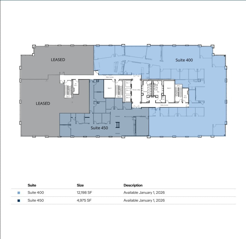
| 4e étage, ste 400 | 12 198 pi² | Négociable | Sur demande Sur demande Sur demande Sur demande | Bureau | construction complète | Maintenant |
| 4e étage, ste 450 | 4 975 pi² | Négociable | Sur demande Sur demande Sur demande Sur demande | Bureau | construction complète | Maintenant |
| 5e étage, ste 525 B | 4 774 pi² | Négociable | 40,32 $ CAD/pi²/an 3,36 $ CAD/pi²/mois 192 491 $ CAD/an 16 041 $ CAD/mois | Bureau | construction complète | Maintenant |
3e étage, ste 310
| Taille |
| 2 574 pi² |
| Terme |
| Négociable |
| Taux de location |
| 40,32 $ CAD/pi²/an 3,36 $ CAD/pi²/mois 103 785 $ CAD/an 8 649 $ CAD/mois |
| Utilisation de l’espace |
| Bureau |
| État |
| construction complète |
| Disponible |
| Maintenant |
3e étage, ste 330
| Taille |
| 2 356 pi² |
| Terme |
| Négociable |
| Taux de location |
| Sur demande Sur demande Sur demande Sur demande |
| Utilisation de l’espace |
| Bureau |
| État |
| construction complète |
| Disponible |
| 2026-08-01 |
3e étage, ste 350
| Taille |
| 6 831 pi² |
| Terme |
| Négociable |
| Taux de location |
| Sur demande Sur demande Sur demande Sur demande |
| Utilisation de l’espace |
| Bureau |
| État |
| construction complète |
| Disponible |
| 2026-08-01 |
4e étage, ste 400
| Taille |
| 12 198 pi² |
| Terme |
| Négociable |
| Taux de location |
| Sur demande Sur demande Sur demande Sur demande |
| Utilisation de l’espace |
| Bureau |
| État |
| construction complète |
| Disponible |
| Maintenant |
4e étage, ste 450
| Taille |
| 4 975 pi² |
| Terme |
| Négociable |
| Taux de location |
| Sur demande Sur demande Sur demande Sur demande |
| Utilisation de l’espace |
| Bureau |
| État |
| construction complète |
| Disponible |
| Maintenant |
5e étage, ste 525 B
| Taille |
| 4 774 pi² |
| Terme |
| Négociable |
| Taux de location |
| 40,32 $ CAD/pi²/an 3,36 $ CAD/pi²/mois 192 491 $ CAD/an 16 041 $ CAD/mois |
| Utilisation de l’espace |
| Bureau |
| État |
| construction complète |
| Disponible |
| Maintenant |
1 de 1
Vidéos
Visite extérieure 3D Matterport
Visite 3D Matterport
Photos
Vue depuis la rue
Rue
Carte
3e étage, ste 310
| Taille | 2 574 pi² |
| Terme | Négociable |
| Taux de location | 40,32 $ CAD/pi²/an |
| Utilisation de l’espace | Bureau |
| État | construction complète |
| Disponible | Maintenant |
- Le taux comprend les services publics, les services de bâtiment et les dépenses immobilières.
- Entièrement construit comme Bureau standard
- Disposition intensive du bureau
- Convient pour 7 à 21 personnes
1 de 1
Vidéos
Visite extérieure 3D Matterport
Visite 3D Matterport
Photos
Vue depuis la rue
Rue
Carte
3e étage, ste 330
| Taille | 2 356 pi² |
| Terme | Négociable |
| Taux de location | Sur demande |
| Utilisation de l’espace | Bureau |
| État | construction complète |
| Disponible | 2026-08-01 |
- Entièrement construit comme Bureau standard
- Disposition du plan d’étage ouverte en général
- Convient pour 6 à 19 personnes
- Peut être associé à un ou plusieurs espaces supplémentaires pour obtenir jusqu’à 9 187 pi² d’espace adjacent.
1 de 1
Vidéos
Visite extérieure 3D Matterport
Visite 3D Matterport
Photos
Vue depuis la rue
Rue
Carte
3e étage, ste 350
| Taille | 6 831 pi² |
| Terme | Négociable |
| Taux de location | Sur demande |
| Utilisation de l’espace | Bureau |
| État | construction complète |
| Disponible | 2026-08-01 |
- Entièrement construit comme Bureau standard
- Disposition du plan d’étage ouverte en général
- Convient pour 18 à 55 personnes
- Peut être associé à un ou plusieurs espaces supplémentaires pour obtenir jusqu’à 9 187 pi² d’espace adjacent.
1 de 1
Vidéos
Visite extérieure 3D Matterport
Visite 3D Matterport
Photos
Vue depuis la rue
Rue
Carte
4e étage, ste 400
| Taille | 12 198 pi² |
| Terme | Négociable |
| Taux de location | Sur demande |
| Utilisation de l’espace | Bureau |
| État | construction complète |
| Disponible | Maintenant |
- Entièrement construit comme Bureau standard
- Disposition intensive du bureau
- Convient pour 31 à 98 personnes
1 de 1
Vidéos
Visite extérieure 3D Matterport
Visite 3D Matterport
Photos
Vue depuis la rue
Rue
Carte
4e étage, ste 450
| Taille | 4 975 pi² |
| Terme | Négociable |
| Taux de location | Sur demande |
| Utilisation de l’espace | Bureau |
| État | construction complète |
| Disponible | Maintenant |
- Entièrement construit comme Bureau standard
- Disposition intensive du bureau
- Convient pour 13 à 40 personnes
1 de 1
Vidéos
Visite extérieure 3D Matterport
Visite 3D Matterport
Photos
Vue depuis la rue
Rue
Carte
5e étage, ste 525 B
| Taille | 4 774 pi² |
| Terme | Négociable |
| Taux de location | 40,32 $ CAD/pi²/an |
| Utilisation de l’espace | Bureau |
| État | construction complète |
| Disponible | Maintenant |
Offices along the window line with views of Ashburn.
- Le taux comprend les services publics, les services de bâtiment et les dépenses immobilières.
- Entièrement construit comme Bureau standard
- Disposition intensive du bureau
- Convient pour 12 à 39 personnes
- Espace en excellent état
Aperçu de la propriété
Édifice de classe A avec accès continu à la route Harry Byrd. Non loin de l'hôpital Inova Loudoun.
- Installations de conférences
- Affichage
- Hauts plafonds
Faits sur la propriété
Type de bâtiment
Bureau
Année de construction
2006
Tarification de LoopNet
4 Étoiles
Hauteur du bâtiment
5 étages
Taille du bâtiment
124 661 pi²
Classe d’immeuble
A
Superficie de plancher typique
23 924 pi²
Stationnement
478 places de stationnement surface
Stationnement Couvert
1 de 8
Vidéos
Visite extérieure 3D Matterport
Visite 3D Matterport
Photos
Vue depuis la rue
Rue
Carte
Présenté par
Belmont Plaza I | 19775 Belmont Executive Plz
Vous êtes déjà membre? Connectez-vous
Hmm, il semble y avoir eu une erreur lors de l’envoi de votre message. Veuillez réessayer.
Merci! Votre message a été envoyé.
Votre message a été envoyé !
Activez votre compte LoopNet dès maintenant pour suivre les propriétés, recevoir des alertes en temps réel, gagner du temps sur vos demandes futures et bien plus encore.







