Se Connecter/S’inscrire
Votre courriel a été envoyé.
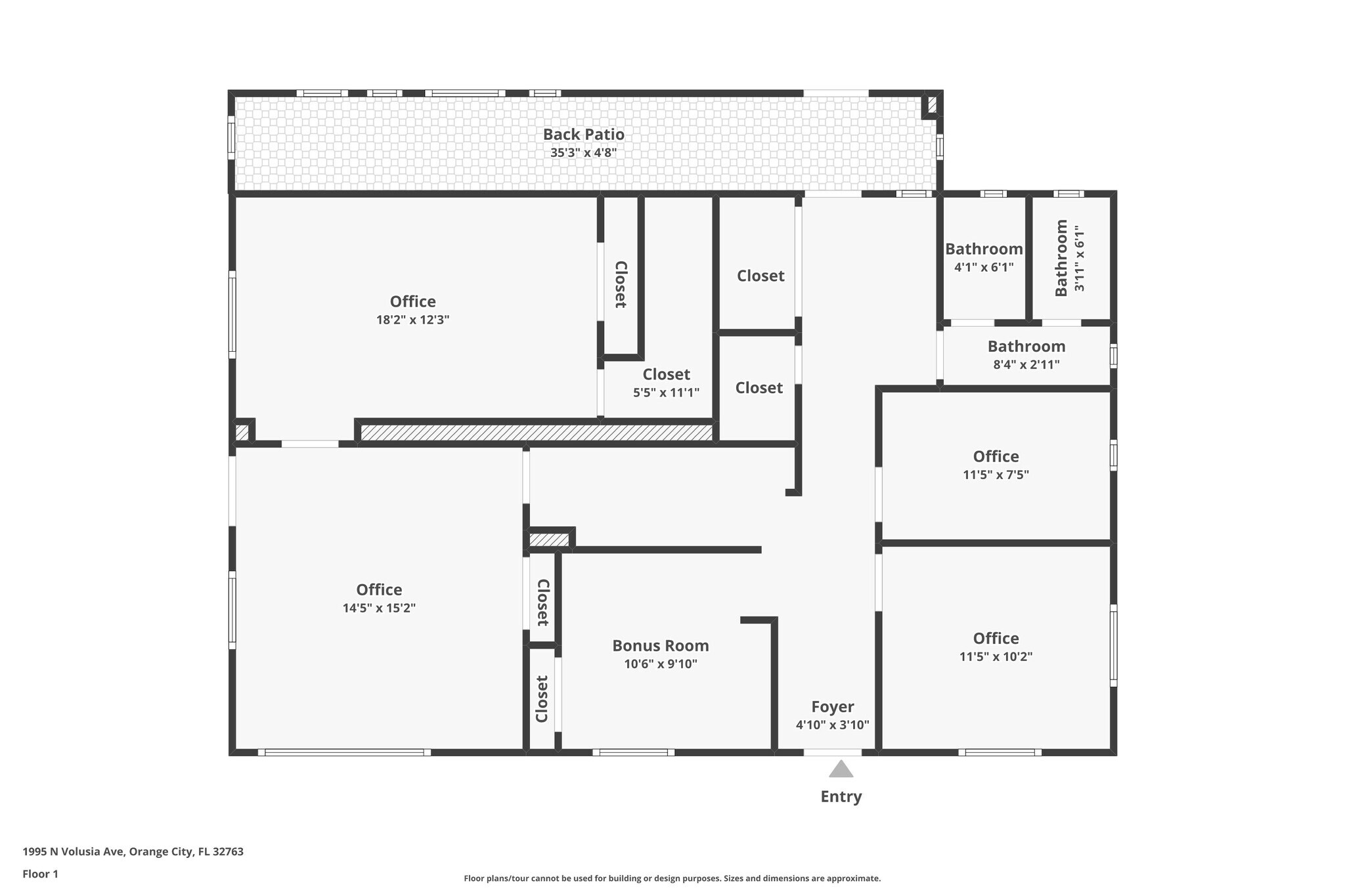
1995 N Volusia Ave 1 560 pi² Commerce de détail Immeuble Orange City, FL 32763 540 214 $ CAD (346,29 $ CAD/pi²)



Certaines informations ont été traduites automatiquement.
Faits saillants de l'investissement
- Building sits on heavily traveled Hwy 17-92- great exposure. B-4 zoning permits many uses. Growth in Orange City
Résumé de l'annonce
Commercial building on Hwy 17-92 Orange City zoned B-4 (Many permitted uses) see other documents. This block building on corner lot is ready for your business. Currently 5 parking spaces available with enough space to put additional 2 more spaces. Building is move in ready with the following rooms contained within
Reception area- 10X10 (carpet), Front office- 10X11 (carpet), 2nd Front office- 07X11 (carpet), Conference room- 15X14 (carpet and tile), Large room in rear-11X18 tile, Storage 06X11 concrete floors, additional storage on back of building - 06X35-concrete floors, and (2) 1/2 bathrooms.
Property was formerly a Real Estate office and recently used as a Chiropractic Office.
Many Permitted uses- come take a look...
Reception area- 10X10 (carpet), Front office- 10X11 (carpet), 2nd Front office- 07X11 (carpet), Conference room- 15X14 (carpet and tile), Large room in rear-11X18 tile, Storage 06X11 concrete floors, additional storage on back of building - 06X35-concrete floors, and (2) 1/2 bathrooms.
Property was formerly a Real Estate office and recently used as a Chiropractic Office.
Many Permitted uses- come take a look...
Taxes et dépenses d’exploitation (Réel - 2026) Cliquez ici pour accéder à |
Annuel (CAD) | Annuel par pi² (CAD) |
|---|---|---|
| Taxes |
-
|
-
|
| Dépenses d’exploitation |
-
|
-
|
| Total des dépenses |
$99,999
|
$9.99
|
Taxes et dépenses d’exploitation (Réel - 2026) Cliquez ici pour accéder à
| Taxes (CAD) | |
|---|---|
| Annuel | - |
| Annuel par pi² | - |
| Dépenses d’exploitation (CAD) | |
|---|---|
| Annuel | - |
| Annuel par pi² | - |
| Total des dépenses (CAD) | |
|---|---|
| Annuel | $99,999 |
| Annuel par pi² | $9.99 |
Faits sur la propriété
Type de vente
Propriétaire utilisateur
Type de propriété
Commerce de détail
Sous-type de propriété
Taille du bâtiment
1 560 pi²
Classe d’immeuble
B
Année de construction
1965
Prix
540 214 $ CAD
Prix par pi²
346,29 $ CAD
Location
Multiples
Hauteur du bâtiment
1 étage
Coefficient d’occupation des sols de l’immeuble
0,22
Taille du lot
0,16 AC
Zonage
01B4 - La classification commerciale générale B-4 vise à encourager le développement de zones commerciales intensives offrant une large gamme de biens et de services.
Stationnement
6 places (3,85 places par 1 000 pi² loué)
Façade
Commodités
- Enseigne sur pylône
Impôts fonciers
| Numéro de lot | 8003-03-04-0010 | Évaluation des bâtiments | 149 775 $ CAD |
| Évaluation du terrain | 48 746 $ CAD | Évaluation totale | 198 521 $ CAD |
Impôts fonciers
Numéro de lot
8003-03-04-0010
Évaluation du terrain
48 746 $ CAD
Évaluation des bâtiments
149 775 $ CAD
Évaluation totale
198 521 $ CAD
1 de 29
Vidéos
Visite extérieure 3D Matterport
Visite 3D Matterport
Photos
Vue depuis la rue
Rue
Carte
Présenté par
Glory International Real Estate
1995 N Volusia Ave
Vous êtes déjà membre? Connectez-vous
Hmm, il semble y avoir eu une erreur lors de l’envoi de votre message. Veuillez réessayer.
Merci! Votre message a été envoyé.
Votre message a été envoyé !
Activez votre compte LoopNet dès maintenant pour suivre les propriétés, recevoir des alertes en temps réel, gagner du temps sur vos demandes futures et bien plus encore.
