Se Connecter/S’inscrire
Votre courriel a été envoyé.
1A Rickmansworth Rd 2 875 pi² Commerce de détail Immeuble Pinner HA5 3TE 3 073 945 $ CAD (1 069,20 $ CAD/pi²)



Certaines informations ont été traduites automatiquement.
Faits saillants de l'investissement
- Prominent Roadside Location.
- Fully Fitted Bar / Restaurant.
- Residential Apartment at First Floor (3 Bed).
- Situated in Pinner Green between the affluent areas of Pinner & Northwood.
- Car Park to Rear (16 Parking Spaces).
- Suitable for a variety of potential uses subject to planning.
Résumé de l'annonce
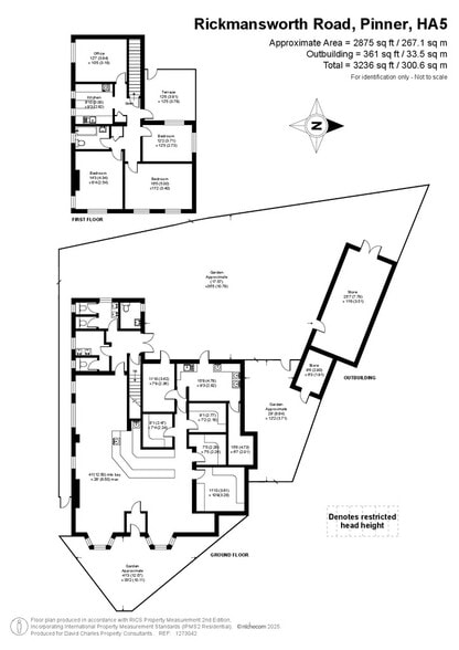
The site comprises of 7,804 sqft apex-shaped site with the existing building being situated to the front of the apex and a car park to the rear. The premises were a well-known local destination known as The Starling until 2008, after which the premises changed into a karaoke bar/restaurant that ceased trading in April 2025. Internally, the building comprises a fully fitted bar/restaurant with a kitchen and storeroom. The first floor is comprised of a 3-bedroom apartment.
The site is situated at the junction of Rickmansworth Road A404 and Cuckoo Hill B466, a main road interlinking Pinner to Northwood and Ruislip to Pinner. The property is opposite a secondary parade of shops to the north and is neighboured by residential to the east and south of the site.
Pinner Underground Station is 1.2 miles from the property, and Northwood Hills Underground Station is 0.9 miles away, providing links into central London in 38 minutes. By road, the A40 Western Avenue is 4.4 miles from the site, providing easy access to the M25 / M40.
The site presents various development / repurposing angles to suit a purchaser's needs. Subject to planning the site may be suited for intensified use as a restaurant/bar with an increased footprint to the rear of the site. The site may also suit residential use with several similar sites being developed in the vicinity in recent years. Our client's preference is for an unconditional sale and purchasers should take their independent advice in respect of the potential of the site.
Guide Price of £1,650,000.00 is sought for the freehold interest in the site.
It is envisaged that the site falls within the Sui Generis use class, although it has been trading as a restaurant since 2008. Prospective purchasers are likely to require planning consent for a change of use, subject to their proposed scheme. The site is not located within a conservation area and is neither locally nor nationally listed, potentially making it well-suited for redevelopment, subject to the necessary consents.
The site is situated at the junction of Rickmansworth Road A404 and Cuckoo Hill B466, a main road interlinking Pinner to Northwood and Ruislip to Pinner. The property is opposite a secondary parade of shops to the north and is neighboured by residential to the east and south of the site.
Pinner Underground Station is 1.2 miles from the property, and Northwood Hills Underground Station is 0.9 miles away, providing links into central London in 38 minutes. By road, the A40 Western Avenue is 4.4 miles from the site, providing easy access to the M25 / M40.
The site presents various development / repurposing angles to suit a purchaser's needs. Subject to planning the site may be suited for intensified use as a restaurant/bar with an increased footprint to the rear of the site. The site may also suit residential use with several similar sites being developed in the vicinity in recent years. Our client's preference is for an unconditional sale and purchasers should take their independent advice in respect of the potential of the site.
Guide Price of £1,650,000.00 is sought for the freehold interest in the site.
It is envisaged that the site falls within the Sui Generis use class, although it has been trading as a restaurant since 2008. Prospective purchasers are likely to require planning consent for a change of use, subject to their proposed scheme. The site is not located within a conservation area and is neither locally nor nationally listed, potentially making it well-suited for redevelopment, subject to the necessary consents.
Taxes et dépenses d’exploitation (Réel - 2026) Cliquez ici pour accéder à |
Annuel (CAD) | Annuel par pi² (CAD) |
|---|---|---|
| Taxes |
-
|
-
|
| Dépenses d’exploitation |
-
|
-
|
| Total des dépenses |
$99,999
|
$9.99
|
Taxes et dépenses d’exploitation (Réel - 2026) Cliquez ici pour accéder à
| Taxes (CAD) | |
|---|---|
| Annuel | - |
| Annuel par pi² | - |
| Dépenses d’exploitation (CAD) | |
|---|---|
| Annuel | - |
| Annuel par pi² | - |
| Total des dépenses (CAD) | |
|---|---|
| Annuel | $99,999 |
| Annuel par pi² | $9.99 |
Faits sur la propriété
Type de vente
Propriétaire utilisateur
Type de propriété
Commerce de détail
Ancienneté
Pleine propriété
Sous-type de propriété
Bar
Taille du bâtiment
2 875 pi²
Année de construction
1890
Prix
3 073 945 $ CAD
Prix par pi²
1 069,20 $ CAD
Location
Unique
Hauteur du bâtiment
1 étage
Coefficient d’occupation des sols de l’immeuble
0,32
Taille du lot
0,21 AC
Stationnement
14 places (4,87 places par 1 000 pi² loué)
Façade
33’ sur Rickmansworth Road
1 1
Principaux détaillants à proximité
1 de 10
Vidéos
Visite extérieure 3D Matterport
Visite 3D Matterport
Photos
Vue depuis la rue
Rue
Carte
1 de 1
Présenté par
1A Rickmansworth Rd
Vous êtes déjà membre? Connectez-vous
Hmm, il semble y avoir eu une erreur lors de l’envoi de votre message. Veuillez réessayer.
Merci! Votre message a été envoyé.
