Votre courriel a été envoyé.
Corner Retail w/ 360 FT Frontage – LIC 2-14 50th Ave 2 000–7 738 pi² d'espace disponible • Commerce de détail • 5 étoiles • Long Island City, NY 11101



Certaines informations ont été traduites automatiquement.
FAITS SAILLANTS
- Prime location 2 blocks away from the LIRR and a few blocks from Vernon Blvd 7 subway line.
- Strong visibility with wraparound frontage with over 360 FT on 2nd Street & 50th Avenue.
- Gas and venting capability for restaurant use
- Heavy residential density with high income; LIC is one of the fastest growing residential neighborhoods in the nation.
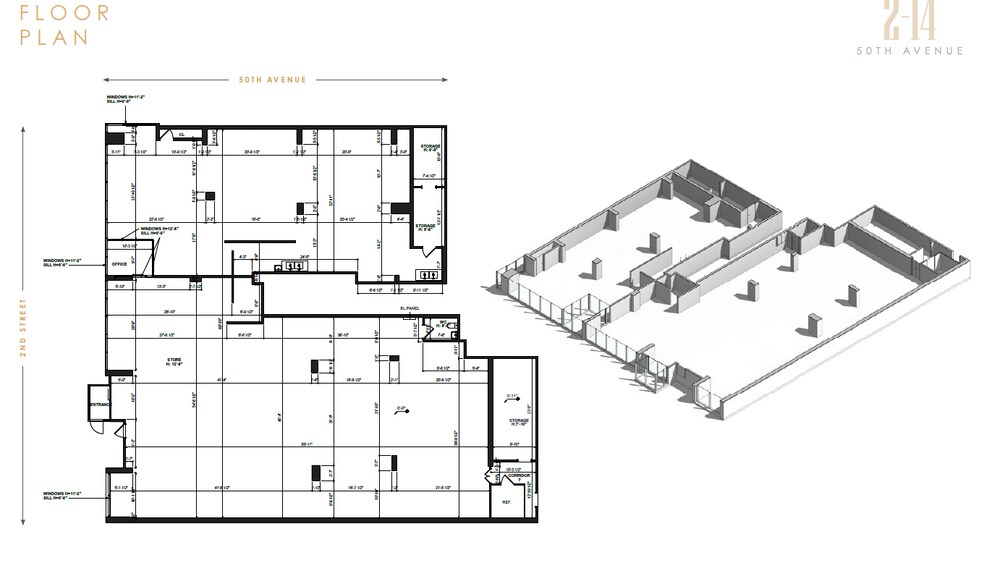
- Corner retail space up to 7,459 SF (divisible) available at the base of Gantry Park Landing, a 199-unit mixed use building
- All uses considered; ideal for any retail, fitness, restaurant, education, and medical uses
TOUS LES ESPACES DISPONIBLES(1)
Afficher les taux de location en
- ESPACE
- TAILLE
- TERME
- TAUX DE LOCATION
- UTILISATION DE L’ESPACE
- ÉTAT
- DISPONIBLE
Corner retail space up to 7,459 SF (divisible) at the base of Gantry Park Landing, a 199-unit building in Long Island City. Features 360 FT of wraparound frontage, gas and venting for restaurant use, and strong visibility. Located just two blocks from the LIRR and close to the Vernon Blvd 7 train. Surrounded by dense residential buildings and national retailers. All uses considered – ideal for retail, fitness, medical, or restaurant.
- Entièrement construit comme Espace de commerce de détail standard
- Aération – Ventilation
- Gas and venting capability for restaurant use
- Prime location 2 blocks away from the LIRR and a f
- at the base of Gantry Park Landing, a 199-unit mix
- Espace en coin
- Corner retail space up to 7,459 SF (divisible)
- Heavy residential density with high income; LIC is
- All uses considered; ideal for any retail, fitness
| Espace | Taille | Terme | Taux de location | Utilisation de l’espace | État | Disponible |
| RDC | 2 000 à 7 738 pi² | Négociable | Sur demande Sur demande Sur demande Sur demande | Commerce de détail | construction complète | Maintenant |
RDC
| Taille |
| 2 000 à 7 738 pi² |
| Terme |
| Négociable |
| Taux de location |
| Sur demande Sur demande Sur demande Sur demande |
| Utilisation de l’espace |
| Commerce de détail |
| État |
| construction complète |
| Disponible |
| Maintenant |
RDC
| Taille | 2 000 à 7 738 pi² |
| Terme | Négociable |
| Taux de location | Sur demande |
| Utilisation de l’espace | Commerce de détail |
| État | construction complète |
| Disponible | Maintenant |
Corner retail space up to 7,459 SF (divisible) at the base of Gantry Park Landing, a 199-unit building in Long Island City. Features 360 FT of wraparound frontage, gas and venting for restaurant use, and strong visibility. Located just two blocks from the LIRR and close to the Vernon Blvd 7 train. Surrounded by dense residential buildings and national retailers. All uses considered – ideal for retail, fitness, medical, or restaurant.
- Entièrement construit comme Espace de commerce de détail standard
- Espace en coin
- Aération – Ventilation
- Corner retail space up to 7,459 SF (divisible)
- Gas and venting capability for restaurant use
- Heavy residential density with high income; LIC is
- Prime location 2 blocks away from the LIRR and a f
- All uses considered; ideal for any retail, fitness
- at the base of Gantry Park Landing, a 199-unit mix
FAITS SUR LA PROPRIÉTÉ
| Superficie totale disponible | 7 738 pi² | Sous-type de propriété | Appartement |
| Nombre d’unités | 199 | Style d’appartement | De hauteur moyenne |
| Min. divisible | 2 000 pi² | Taille du bâtiment | 282 280 pi² |
| Type de propriété | Immeuble residentiel | Année de construction | 2013 |
| Superficie totale disponible | 7 738 pi² |
| Nombre d’unités | 199 |
| Min. divisible | 2 000 pi² |
| Type de propriété | Immeuble residentiel |
| Sous-type de propriété | Appartement |
| Style d’appartement | De hauteur moyenne |
| Taille du bâtiment | 282 280 pi² |
| Année de construction | 2013 |
À PROPOS DE LA PROPRIÉTÉ
Situé à l'angle de la 50e Avenue et de la 2e Rue, Gantry Park Landing est un immeuble polyvalent de 199 unités. Les co-locataires incluent Cohen’s Children’s Northwell Health et Black Star Bakery & Cafe. Les voisins à proximité comprennent CVS, American Brass, Osteria Brooklyn, Industry Gymnastics, Brighter Babies Early Development Center, Café Henri, Little Ones Early Childhood Learning Center, iFLY Indoor Skydiving, BQE Fitness, ProHealth Dental, Casa Enrique, Blend, Maiella, Shi et European Wax Center.
PRINCIPAUX DÉTAILLANTS À PROXIMITÉ
Présenté par
Corner Retail w/ 360 FT Frontage – LIC | 2-14 50th Ave
Hmm, il semble y avoir eu une erreur lors de l’envoi de votre message. Veuillez réessayer.
Merci! Votre message a été envoyé.



