Votre courriel a été envoyé.
Catelli House 2 Arthur St 4 349 pi² d'espace disponible • Pudsey LS28 6JY



Certaines informations ont été traduites automatiquement.
Faits saillants
- Modern office accommodation with meeting rooms
- Fully fitted kitchen and reception area
- 820 sq ft warehouse with roller shutter access
Caractéristiques
Tous les espaces disponibles(1)
Afficher les taux de location en
- Espace
- Taille
- Terme
- Taux de location
- Utilisation de l’espace
- Aménagement
- Disponible
Les 2 espaces de cet immeuble doivent être loués ensemble, pour une superficie totale de 4 349 pi² (Zone contiguë):
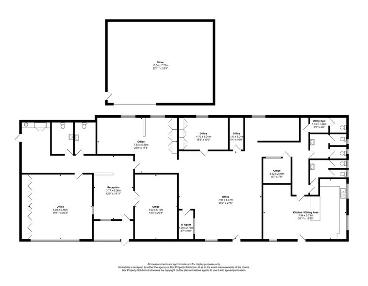
The property provides a self-contained office and warehouse facility totalling 4,349 sq ft, arranged to offer a high proportion of well-specified office accommodation alongside practical warehouse space. Internally, the offices comprise a mix of open-plan areas, private offices and meeting rooms, supported by a welcoming reception area and fully fitted kitchen facilities
- Classe d’utilisation : E
- Disposition du plan d’étage ouverte en général
- Stores automatiques
- Modern office accommodation with meeting rooms
- Secure gated compound with generous parking
- Cour
- Entièrement construit comme Bureau standard
- Convient pour 9 à 28 personnes
- Cote de rendement énergétique - C
- Fully fitted kitchen and reception area
- Installations WC abandonnées
- 820 sq ft warehouse with roller shutter access
| Espace | Taille | Terme | Taux de location | Utilisation de l’espace | Aménagement | Disponible |
| RDC - ste Offices, RDC - Workshop | 4 349 pi² | Négociable | 17,69 $ CAD/pi²/an 1,47 $ CAD/pi²/mois 76 950 $ CAD/an 6 412 $ CAD/mois | Bureau | construction complète | Maintenant |
RDC - ste Offices, RDC - Workshop
Les 2 espaces de cet immeuble doivent être loués ensemble, pour une superficie totale de 4 349 pi² (Zone contiguë):
| Taille |
|
RDC - ste Offices - 3 498 pi²
RDC - Workshop - 851 pi²
|
| Terme |
| Négociable |
| Taux de location |
| 17,69 $ CAD/pi²/an 1,47 $ CAD/pi²/mois 76 950 $ CAD/an 6 412 $ CAD/mois |
| Utilisation de l’espace |
| Bureau |
| Aménagement |
| construction complète |
| Disponible |
| Maintenant |
RDC - ste Offices, RDC - Workshop
| Taille |
RDC - ste Offices - 3 498 pi²
RDC - Workshop - 851 pi²
|
| Terme | Négociable |
| Taux de location | 17,69 $ CAD/pi²/an |
| Utilisation de l’espace | Bureau |
| Aménagement | construction complète |
| Disponible | Maintenant |
The property provides a self-contained office and warehouse facility totalling 4,349 sq ft, arranged to offer a high proportion of well-specified office accommodation alongside practical warehouse space. Internally, the offices comprise a mix of open-plan areas, private offices and meeting rooms, supported by a welcoming reception area and fully fitted kitchen facilities
- Classe d’utilisation : E
- Entièrement construit comme Bureau standard
- Disposition du plan d’étage ouverte en général
- Convient pour 9 à 28 personnes
- Stores automatiques
- Cote de rendement énergétique - C
- Modern office accommodation with meeting rooms
- Fully fitted kitchen and reception area
- Secure gated compound with generous parking
- Installations WC abandonnées
- Cour
- 820 sq ft warehouse with roller shutter access
Aperçu de la propriété
The property comprises a single storey industrial building of brick construction.
Faits sur la propriété
Sélectionner des locataires
- Étage
- Nom du locataire
- Secteur
- REZ-DE-CHAUSSÉE
- Leeds CIL
- Soins de santé et assistance sociale
Présenté par
Adair Paxton
Catelli House | 2 Arthur St
Hmm, il semble y avoir eu une erreur lors de l’envoi de votre message. Veuillez réessayer.
Merci! Votre message a été envoyé.



