Se Connecter/S’inscrire
Votre courriel a été envoyé.
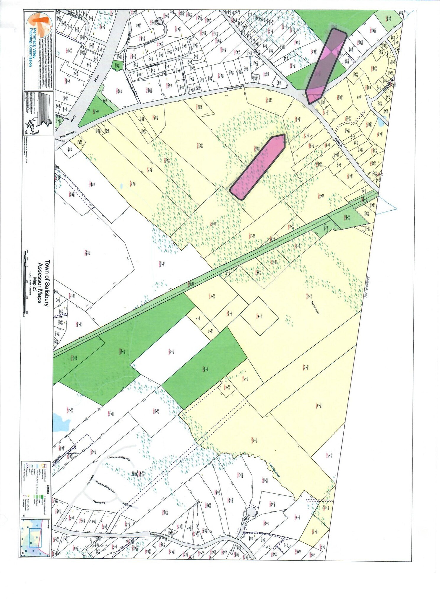
2 Collins St
Salisbury, MA 01952
Terrain À vendre
·
3,08 AC


Certaines informations ont été traduites automatiquement.
Faits sur la propriété
| Type de vente | Investissement | Sous-type de propriété | Terrain commercial |
| Nombre de lots | 1 | Taille totale du lot | 3,08 AC |
| Type de propriété | Terrain | ||
| Zonage | C | ||
| Type de vente | Investissement |
| Nombre de lots | 1 |
| Type de propriété | Terrain |
| Sous-type de propriété | Terrain commercial |
| Taille totale du lot | 3,08 AC |
| Zonage | C |
1 Lot disponible
Lot
| Prix | 2 119 005 $ CAD | Taille du lot | 3,08 AC |
| Prix par AC | 687 988,64 $ CAD |
| Prix | 2 119 005 $ CAD |
| Prix par AC | 687 988,64 $ CAD |
| Taille du lot | 3,08 AC |
1 de 8
Vidéos
Visite extérieure 3D Matterport
Visite 3D Matterport
Photos
Vue depuis la rue
Rue
Carte
