Votre courriel a été envoyé.
Gateway Park - Tom Thumb Anchored 200 N Town East Blvd 1 200–7 000 pi² d'espace disponible • Sunnyvale, TX 75182



Certaines informations ont été traduites automatiquement.
Faits saillants
- Direct access to US Highway 80, Interstate 635, and Interstate 30 with traffic counts of 40,196 vehicles per day on North Belt Line Road
- Three pad sites available, ranging from 1.32 to 1.50 acres with frontage on Town East Boulevard and Belt Line Road
- Adjacent development includes Tom Thumb and The Athletic Club sports fields, pickleball, retail, and restaurants
- Located at the southeast corner of Belt Line Road and Town East Boulevard at a signalized intersection
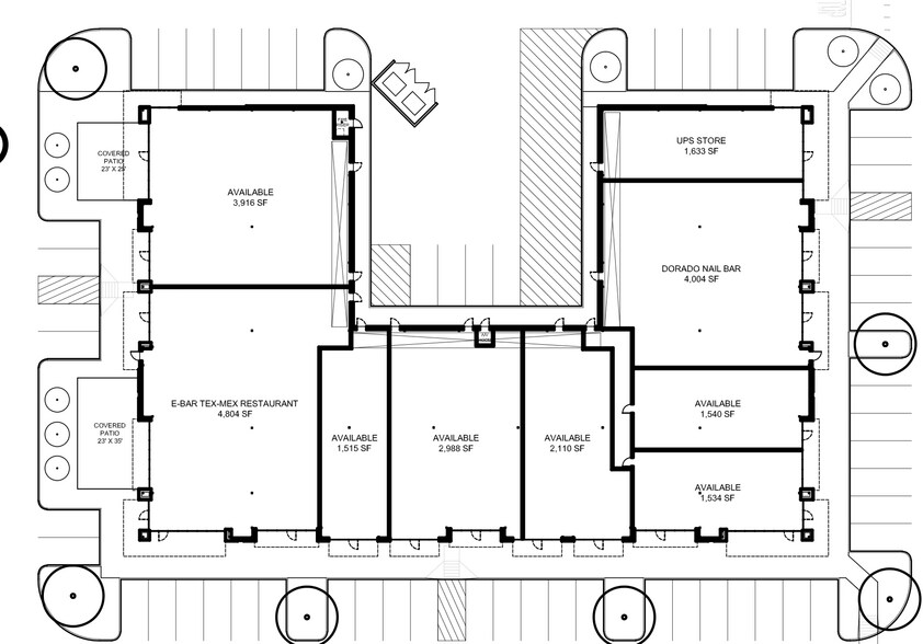
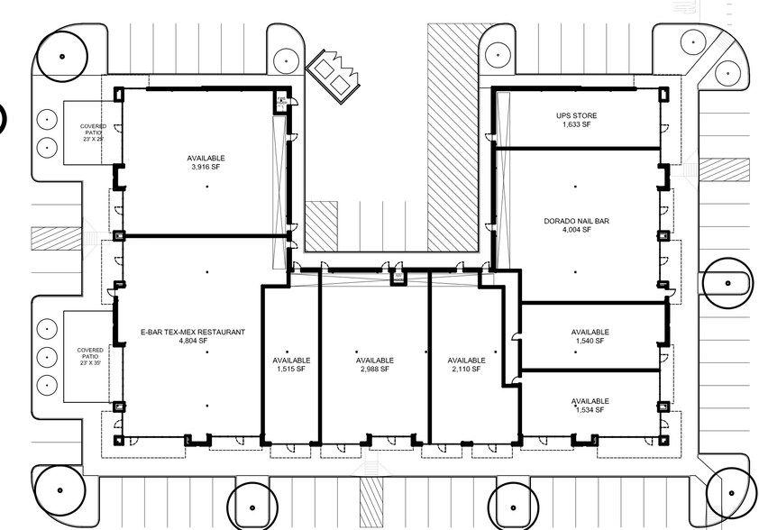
Disponibilité des espaces (2)
Afficher les taux de location en
- Espace
- Taille
- Terme
- Taux de location
- Type de loyer
| Espace | Taille | Terme | Taux de location | Type de loyer | ||
| 1er étage | 3 500 pi² | 5-10 ans | Sur demande Sur demande Sur demande Sur demande | Loyer hypernet | ||
| 1er étage | 1 200 à 3 500 pi² | 5-10 ans | Sur demande Sur demande Sur demande Sur demande | Loyer hypernet |
1er étage
End Cap space with Grease trap Grocer Anchored Retail Space for Lease; Athletic Club coming 2026
- Le taux de location ne comprend pas les services publics, les services de bâtiment ou les dépenses immobilières.
- Space for lease next to new Tom Thumb Grocer
- Signalized intersection
1er étage
Call for updated availability 214-725-5200
- Le taux de location ne comprend pas les services publics, les services de bâtiment ou les dépenses immobilières.
- Grocer Anchored
Types de loyers
Le type et le montant du loyer que le locataire (preneur) est tenu de payer au propriétaire (bailleur) sur la durée du bail sont négociés avant la signature du bail par les deux parties. Le type de loyer varie selon les services fournis. Par exemple, le prix d’un loyer hypernet est habituellement inférieur à celui d’un bail à service complet puisque le locataire est tenu d’assumer des dépenses additionnelles par rapport au loyer de base. Contactez le courtier inscripteur pour tout connaître sur les frais connexes et additionnels associés à chaque type de loyer.
1. Service complet: Un taux de location qui comprend des services standards liés à l’immeuble fournis par le propriétaire dans le cadre d’une location annuelle de base.
2. Loyer supernet: Le locataire paie seulement deux des frais de l’immeuble. Le propriétaire et le locataire déterminent ces frais spécifiques avant la signature du bail.
3. Loyer hypernet: Un bail en vertu duquel le locataire est responsable de tous les frais liés à sa part proportionnelle d’occupation de l’immeuble.
4. Brut modifié: Le loyer brut modifié désigne un type général de taux de location dans lequel le locataire est habituellement responsable de sa part proportionnelle d’un ou de plusieurs frais. C’est le propriétaire qui paie les frais restants. Considérez les structures tarifaires courantes suivantes applicables aux loyers bruts modifiés: 4. Plus les services: Un type de bail brut modifié suivant lequel le locataire est responsable de sa part proportionnelle des coûts des services publics, en plus du loyer. 4. Plus le nettoyage: Un type de bail brut modifié suivant lequel le locataire est responsable de sa part proportionnelle des coûts de nettoyage, en plus du loyer. 4. Plus l'électricité: Un type de bail brut modifié suivant lequel le locataire est responsable de sa part proportionnelle des coûts d’électricité, en plus du loyer. 4. Plus l’électricité et le nettoyage: Un type de bail brut modifié dans lequel le locataire est responsable de sa part proportionnelle des coûts d’électricité et de nettoyage, en plus du loyer. 4. Plus les services publics et le nettoyage: Un type de bail brut modifié dans lequel le locataire est responsable de sa part proportionnelle des coûts des services publics et de nettoyage, en plus du loyer. 4. Bail industriel brut: Un type de bail brut modifié dans lequel le locataire paie un ou plusieurs des frais, en plus du loyer. Le propriétaire et le locataire déterminent ces frais spécifiques avant la signature du bail.
5. L’électricité est à la charge du locataire: Le propriétaire paie pour tous les services et le locataire est responsable de sa propre utilisation de l’éclairage et des prises électriques dans l’espace qu’il occupe.
6. Négociable ou sur demande: Cette option est utilisée lorsque le contact de location ne précise pas le type de loyer ou de service.
7. À déterminer: À déterminer ; utilisé pour les immeubles dont le type de services ou de loyer n’est pas connu, souvent quand l’immeuble n’est pas encore construit.
Sélectionner des locataires à Gateway Park - Tom Thumb Anchored
- Locataire
- Description
- Emplacements US
- Portée
- Tom Thumb
- Supermarché
- 75
- Local
| Locataire | Description | Emplacements US | Portée |
| Tom Thumb | Supermarché | 75 | Local |
Faits sur la propriété
| Superficie totale disponible | 7 000 pi² | Sous-type de propriété | Superette |
| Min. divisible | 1 200 pi² | Superficie commerciale brute | 58 204 pi² |
| Type de propriété | Commerce de détail | Année de construction | 2025 |
| Superficie totale disponible | 7 000 pi² |
| Min. divisible | 1 200 pi² |
| Type de propriété | Commerce de détail |
| Sous-type de propriété | Superette |
| Superficie commerciale brute | 58 204 pi² |
| Année de construction | 2025 |
À propos de la propriété
Shell Space completed - call for updated availability . 214-725-5200. The property is in Sunnyvale, Texas, at a signalized intersection. The offering includes retail space for lease within a planned 24,500-square-foot retail building and multiple pad sites for sale. The site provides direct access to US Highway 80, Interstate 635, and Interstate 30. A Tom Thumb grocery store just opened adjacent to the site along with The Athletic Club sports and entertainment complex coming soon, which will include soccer fields, pickleball facilities, and additional retail and restaurant space. Traffic counts along North Belt Line Road measure 40,196 vehicles per day. Surrounding population within a five-mile radius totals 251,784, with household incomes and daytime population figures provided in the brochure.
Principaux détaillants à proximité
Présenté par
Gateway Park - Tom Thumb Anchored | 200 N Town East Blvd
Hmm, il semble y avoir eu une erreur lors de l’envoi de votre message. Veuillez réessayer.
Merci! Votre message a été envoyé.



