Votre courriel a été envoyé.
Certaines informations ont été traduites automatiquement.
Faits saillants du parc
- Equipped with 3 overhead cranes (5-ton capacity each) and multiple drive-in doors for efficient loading.
- Ample outdoor storage and paved areas suitable for heavy equipment and fleet operations.
- Located minutes from I-287, NJ Turnpike, and Garden State Parkway for regional access.
Faits sur le parc
| Superficie totale disponible | 29 337 pi² | Type de parc | Parc industriel |
| Superficie totale disponible | 29 337 pi² |
| Type de parc | Parc industriel |
Tous les espaces disponibles(2)
Afficher les taux de location en
- Espace
- Taille
- Terme
- Taux de location
- Utilisation de l’espace
- Aménagement
- Disponible
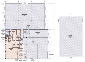
This industrial property offers a versatile warehouse and maintenance facility on ±7.81 acres in South Plainfield, NJ. The site includes two buildings totaling ±29,337 SF, featuring multiple drive-in doors, overhead cranes, and ample paved and storage areas. Building 1 provides ±20,524 SF with office space, training rooms, and conference facilities, while Building 2 offers ±8,813 SF of high-clear storage.
- Comprend 4 101 pi² d’espace de bureau dédié
- ±8 Acres IOS Site including ±29,337 SF Warehouse &
- 9 accès plain-pied
| Espace | Taille | Terme | Taux de location | Utilisation de l’espace | Aménagement | Disponible |
| 1er étage - Bldg 1 | 20 524 pi² | Négociable | Sur demande Sur demande Sur demande Sur demande | Industriel | construction partielle | 30 jours |
200 St Nicholas Ave - 1er étage - Bldg 1
- Espace
- Taille
- Terme
- Taux de location
- Utilisation de l’espace
- Aménagement
- Disponible
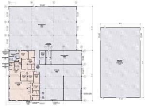
This industrial property offers a versatile warehouse and maintenance facility on ±7.81 acres in South Plainfield, NJ. The site includes two buildings totaling ±29,337 SF, featuring multiple drive-in doors, overhead cranes, and ample paved and storage areas. Building 1 provides ±20,524 SF with office space, training rooms, and conference facilities, while Building 2 offers ±8,813 SF of high-clear storage.
- 3 accès plain-pied
- ±8 Acres IOS Site including ±29,337 SF Warehouse &
| Espace | Taille | Terme | Taux de location | Utilisation de l’espace | Aménagement | Disponible |
| 1er étage - Bldg 2 | 8 813 pi² | Négociable | Sur demande Sur demande Sur demande Sur demande | Industriel | construction partielle | 30 jours |
200 St Nicholas Ave - 1er étage - Bldg 2
200 St Nicholas Ave - 1er étage - Bldg 1
| Taille | 20 524 pi² |
| Terme | Négociable |
| Taux de location | Sur demande |
| Utilisation de l’espace | Industriel |
| Aménagement | construction partielle |
| Disponible | 30 jours |
This industrial property offers a versatile warehouse and maintenance facility on ±7.81 acres in South Plainfield, NJ. The site includes two buildings totaling ±29,337 SF, featuring multiple drive-in doors, overhead cranes, and ample paved and storage areas. Building 1 provides ±20,524 SF with office space, training rooms, and conference facilities, while Building 2 offers ±8,813 SF of high-clear storage.
- Comprend 4 101 pi² d’espace de bureau dédié
- 9 accès plain-pied
- ±8 Acres IOS Site including ±29,337 SF Warehouse &
200 St Nicholas Ave - 1er étage - Bldg 2
| Taille | 8 813 pi² |
| Terme | Négociable |
| Taux de location | Sur demande |
| Utilisation de l’espace | Industriel |
| Aménagement | construction partielle |
| Disponible | 30 jours |
This industrial property offers a versatile warehouse and maintenance facility on ±7.81 acres in South Plainfield, NJ. The site includes two buildings totaling ±29,337 SF, featuring multiple drive-in doors, overhead cranes, and ample paved and storage areas. Building 1 provides ±20,524 SF with office space, training rooms, and conference facilities, while Building 2 offers ±8,813 SF of high-clear storage.
- 3 accès plain-pied
- ±8 Acres IOS Site including ±29,337 SF Warehouse &
Sélectionner des locataires à cette propriété
- Étage
- Nom du locataire
- 1ᵉʳ
- Jesco Inc
Aperçu du parc
The property at 200 St. Nicholas Avenue in South Plainfield, NJ consists of two industrial buildings on approximately 7.81 acres. It is zoned M-3 and includes warehouse and maintenance facilities with overhead cranes and multiple drive-in doors. The site is located near I-287 and offers access to major highways including the NJ Turnpike and Garden State Parkway. Newark International Airport and Port Newark Container Terminal are within 25 miles.
Présenté par
200 St Nicholas Ave | South Plainfield, NJ 07080
Hmm, il semble y avoir eu une erreur lors de l’envoi de votre message. Veuillez réessayer.
Merci! Votre message a été envoyé.









