Votre courriel a été envoyé.
Certaines informations ont été traduites automatiquement.
Faits sur le parc
| Superficie totale disponible | 39 286 pi² | Type de parc | Parc de bureaux |
| Max. contigu | 17 763 pi² |
| Superficie totale disponible | 39 286 pi² |
| Max. contigu | 17 763 pi² |
| Type de parc | Parc de bureaux |
Tous les espaces disponibles(7)
Afficher les taux de location en
- Espace
- Taille
- Terme
- Taux de location
- Utilisation de l’espace
- Aménagement
- Disponible
Class A office space. First class property with shared conference room, underground parking, and impressive common areas.
- Le taux comprend les services publics, les services de bâtiment et les dépenses immobilières.
- Disposition du plan d’étage ouverte en général
- Partiellement construit comme Bureau standard
- Lumière naturelle
Class A office space. First class property with shared conference room, underground parking, and impressive common areas.
- Le taux comprend les services publics, les services de bâtiment et les dépenses immobilières.
- Disposition du plan d’étage ouverte en général
- Lumière naturelle
- Partiellement construit comme Bureau standard
- Peut être associé à un ou plusieurs espaces supplémentaires pour obtenir jusqu’à 14 089 pi² d’espace adjacent.
- Le taux comprend les services publics, les services de bâtiment et les dépenses immobilières.
- Peut être associé à un ou plusieurs espaces supplémentaires pour obtenir jusqu’à 14 089 pi² d’espace adjacent.
- Le taux comprend les services publics, les services de bâtiment et les dépenses immobilières.
- Disposition du plan d’étage ouverte en général
- Partiellement construit comme Bureau standard
- Lumière naturelle
| Espace | Taille | Terme | Taux de location | Utilisation de l’espace | Aménagement | Disponible |
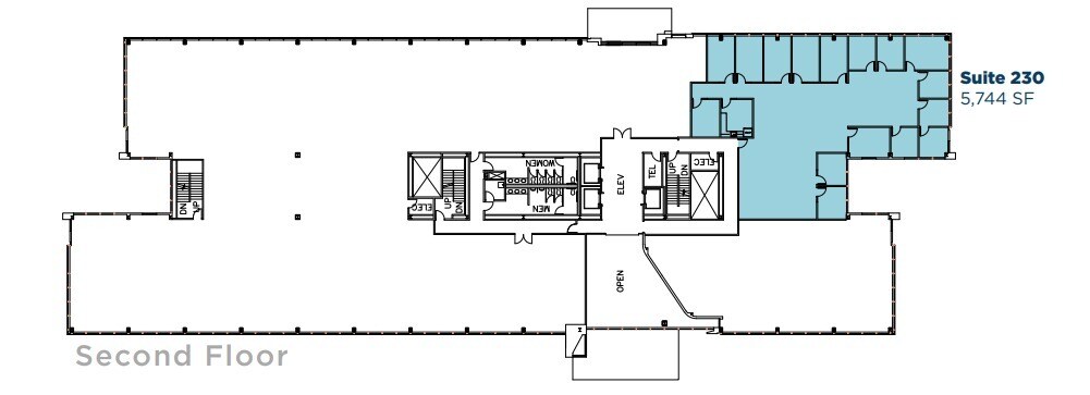
| 2e étage, ste 230 | 5 744 pi² | Négociable | 37,21 $ CAD/pi²/an 3,10 $ CAD/pi²/mois 213 708 $ CAD/an 17 809 $ CAD/mois | Bureau | construction partielle | 30 jours |
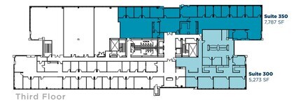
| 3e étage, ste 300 | 5 273 pi² | Négociable | 37,21 $ CAD/pi²/an 3,10 $ CAD/pi²/mois 196 184 $ CAD/an 16 349 $ CAD/mois | Bureau | construction partielle | 30 jours |
| 3e étage, ste 320 | 8 816 pi² | Négociable | 37,21 $ CAD/pi²/an 3,10 $ CAD/pi²/mois 328 003 $ CAD/an 27 334 $ CAD/mois | Bureau | - | Maintenant |
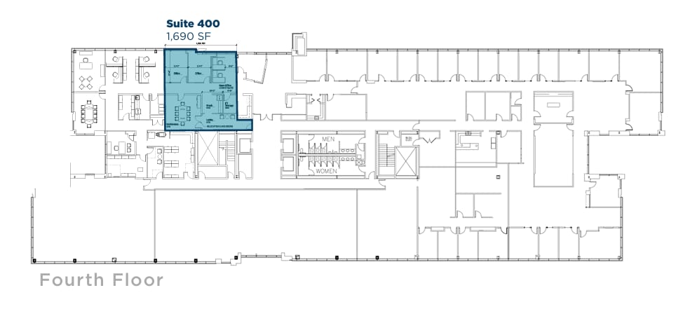
| 4e étage, ste 400 | 1 690 pi² | Négociable | 37,21 $ CAD/pi²/an 3,10 $ CAD/pi²/mois 62 877 $ CAD/an 5 240 $ CAD/mois | Bureau | construction partielle | Maintenant |
2000 Auburn Dr - 2e étage - ste 230
2000 Auburn Dr - 3e étage - ste 300
2000 Auburn Dr - 3e étage - ste 320
2000 Auburn Dr - 4e étage - ste 400
- Espace
- Taille
- Terme
- Taux de location
- Utilisation de l’espace
- Aménagement
- Disponible
- Le taux comprend les services publics, les services de bâtiment et les dépenses immobilières.
- Peut être associé à un ou plusieurs espaces supplémentaires pour obtenir jusqu’à 17 763 pi² d’espace adjacent.
Class A office space. First class property with shared conference room, underground parking, and impressive common areas.
- Le taux comprend les services publics, les services de bâtiment et les dépenses immobilières.
- Disposition du plan d’étage ouverte en général
- Lumière naturelle
- Partiellement construit comme Bureau standard
- Peut être associé à un ou plusieurs espaces supplémentaires pour obtenir jusqu’à 17 763 pi² d’espace adjacent.
Class A office space. First class property with shared conference room, underground parking, and impressive common areas.
- Le taux comprend les services publics, les services de bâtiment et les dépenses immobilières.
- Disposition du plan d’étage ouverte en général
- Lumière naturelle
- Entièrement construit comme Bureau standard
- Peut être associé à un ou plusieurs espaces supplémentaires pour obtenir jusqu’à 17 763 pi² d’espace adjacent.
| Espace | Taille | Terme | Taux de location | Utilisation de l’espace | Aménagement | Disponible |
| 4e étage, ste 430 | 3 958 pi² | Négociable | 37,21 $ CAD/pi²/an 3,10 $ CAD/pi²/mois 147 259 $ CAD/an 12 272 $ CAD/mois | Bureau | - | Maintenant |
| 4e étage, ste 440 | 2 324 pi² | Négociable | 37,21 $ CAD/pi²/an 3,10 $ CAD/pi²/mois 86 465 $ CAD/an 7 205 $ CAD/mois | Bureau | construction partielle | 30 jours |
| 4e étage, ste 450 | 11 481 pi² | Négociable | 37,21 $ CAD/pi²/an 3,10 $ CAD/pi²/mois 427 156 $ CAD/an 35 596 $ CAD/mois | Bureau | construction complète | Maintenant |
3000 Auburn Dr - 4e étage - ste 430
3000 Auburn Dr - 4e étage - ste 440
3000 Auburn Dr - 4e étage - ste 450
2000 Auburn Dr - 2e étage - ste 230
| Taille | 5 744 pi² |
| Terme | Négociable |
| Taux de location | 37,21 $ CAD/pi²/an |
| Utilisation de l’espace | Bureau |
| Aménagement | construction partielle |
| Disponible | 30 jours |
Class A office space. First class property with shared conference room, underground parking, and impressive common areas.
- Le taux comprend les services publics, les services de bâtiment et les dépenses immobilières.
- Partiellement construit comme Bureau standard
- Disposition du plan d’étage ouverte en général
- Lumière naturelle
2000 Auburn Dr - 3e étage - ste 300
| Taille | 5 273 pi² |
| Terme | Négociable |
| Taux de location | 37,21 $ CAD/pi²/an |
| Utilisation de l’espace | Bureau |
| Aménagement | construction partielle |
| Disponible | 30 jours |
Class A office space. First class property with shared conference room, underground parking, and impressive common areas.
- Le taux comprend les services publics, les services de bâtiment et les dépenses immobilières.
- Partiellement construit comme Bureau standard
- Disposition du plan d’étage ouverte en général
- Peut être associé à un ou plusieurs espaces supplémentaires pour obtenir jusqu’à 14 089 pi² d’espace adjacent.
- Lumière naturelle
2000 Auburn Dr - 3e étage - ste 320
| Taille | 8 816 pi² |
| Terme | Négociable |
| Taux de location | 37,21 $ CAD/pi²/an |
| Utilisation de l’espace | Bureau |
| Aménagement | - |
| Disponible | Maintenant |
- Le taux comprend les services publics, les services de bâtiment et les dépenses immobilières.
- Peut être associé à un ou plusieurs espaces supplémentaires pour obtenir jusqu’à 14 089 pi² d’espace adjacent.
2000 Auburn Dr - 4e étage - ste 400
| Taille | 1 690 pi² |
| Terme | Négociable |
| Taux de location | 37,21 $ CAD/pi²/an |
| Utilisation de l’espace | Bureau |
| Aménagement | construction partielle |
| Disponible | Maintenant |
- Le taux comprend les services publics, les services de bâtiment et les dépenses immobilières.
- Partiellement construit comme Bureau standard
- Disposition du plan d’étage ouverte en général
- Lumière naturelle
3000 Auburn Dr - 4e étage - ste 430
| Taille | 3 958 pi² |
| Terme | Négociable |
| Taux de location | 37,21 $ CAD/pi²/an |
| Utilisation de l’espace | Bureau |
| Aménagement | - |
| Disponible | Maintenant |
- Le taux comprend les services publics, les services de bâtiment et les dépenses immobilières.
- Peut être associé à un ou plusieurs espaces supplémentaires pour obtenir jusqu’à 17 763 pi² d’espace adjacent.
3000 Auburn Dr - 4e étage - ste 440
| Taille | 2 324 pi² |
| Terme | Négociable |
| Taux de location | 37,21 $ CAD/pi²/an |
| Utilisation de l’espace | Bureau |
| Aménagement | construction partielle |
| Disponible | 30 jours |
Class A office space. First class property with shared conference room, underground parking, and impressive common areas.
- Le taux comprend les services publics, les services de bâtiment et les dépenses immobilières.
- Partiellement construit comme Bureau standard
- Disposition du plan d’étage ouverte en général
- Peut être associé à un ou plusieurs espaces supplémentaires pour obtenir jusqu’à 17 763 pi² d’espace adjacent.
- Lumière naturelle
3000 Auburn Dr - 4e étage - ste 450
| Taille | 11 481 pi² |
| Terme | Négociable |
| Taux de location | 37,21 $ CAD/pi²/an |
| Utilisation de l’espace | Bureau |
| Aménagement | construction complète |
| Disponible | Maintenant |
Class A office space. First class property with shared conference room, underground parking, and impressive common areas.
- Le taux comprend les services publics, les services de bâtiment et les dépenses immobilières.
- Entièrement construit comme Bureau standard
- Disposition du plan d’étage ouverte en général
- Peut être associé à un ou plusieurs espaces supplémentaires pour obtenir jusqu’à 17 763 pi² d’espace adjacent.
- Lumière naturelle
Aperçu du parc
Meilleur emplacement et accès le long du corridor du boulevard Chagrin.
Présenté par
One & Two Chagrin Highlands | Beachwood, OH 44122
Hmm, il semble y avoir eu une erreur lors de l’envoi de votre message. Veuillez réessayer.
Merci! Votre message a été envoyé.












