Se Connecter/S’inscrire
Votre courriel a été envoyé.
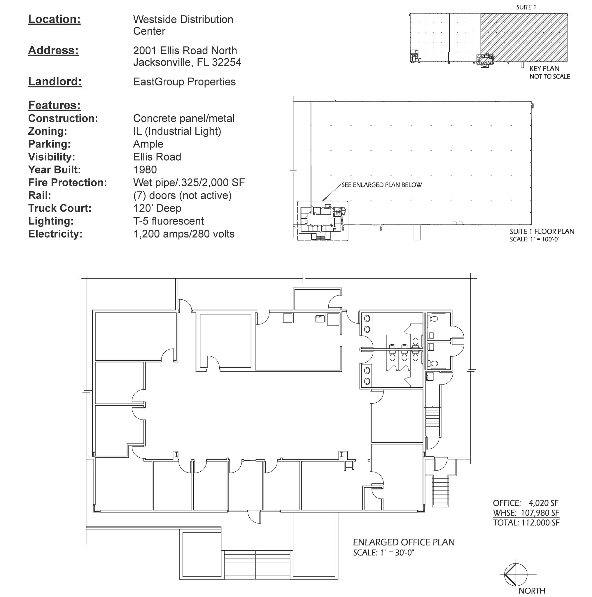
Westside Distribution Center 1 2001-2003 Ellis Rd N 112 000 pi² d'espace disponible • Industriel • 4 étoiles • Jacksonville, FL 32254



Certaines informations ont été traduites automatiquement.
Faits saillants
- ±112,000 SF Warehouse Space with ±1,450 SF Office Available 8/1/26
- 31’ Min. - 36’ Max. Ceiling Height
- Easy Access to I-295 and I-95
- Dock Doors: (6) 10’x10’ - 5 with EOD levelers (1) 20’x10’ - with 2 pit levelers (1) 10’x10’ door w/ 12’ ramp
- Zoned IL
Caractéristiques
Hauteur libre
36’
Espacement des colonnes
50’ x 50’
Portes de quai de chargement extérieures
20
Niveleurs
9
Places de stationnement standard
100
Tous les espaces disponibles(1)
Afficher les taux de location en
- Espace
- Taille
- Terme
- Taux de location
- Utilisation de l’espace
- Aménagement
- Disponible
Available August 1, 2026
- Le taux de location ne comprend pas les services publics, les services de bâtiment ou les dépenses immobilières.
- Comprend 1 450 pi² d’espace de bureau dédié
| Espace | Taille | Terme | Taux de location | Utilisation de l’espace | Aménagement | Disponible |
| 1er étage - 1 | 112 000 pi² | Négociable | 9,29 $ CAD/pi²/an 0,77 $ CAD/pi²/mois 1 040 657 $ CAD/an 86 721 $ CAD/mois | Industriel | - | 90 jours |
1er étage - 1
| Taille |
| 112 000 pi² |
| Terme |
| Négociable |
| Taux de location |
| 9,29 $ CAD/pi²/an 0,77 $ CAD/pi²/mois 1 040 657 $ CAD/an 86 721 $ CAD/mois |
| Utilisation de l’espace |
| Industriel |
| Aménagement |
| - |
| Disponible |
| 90 jours |
1 de 1
Vidéos
Visite extérieure 3D Matterport
Visite 3D Matterport
Photos
Vue depuis la rue
Rue
Carte
1er étage - 1
| Taille | 112 000 pi² |
| Terme | Négociable |
| Taux de location | 9,29 $ CAD/pi²/an |
| Utilisation de l’espace | Industriel |
| Aménagement | - |
| Disponible | 90 jours |
Available August 1, 2026
- Le taux de location ne comprend pas les services publics, les services de bâtiment ou les dépenses immobilières.
- Comprend 1 450 pi² d’espace de bureau dédié
Aperçu de la propriété
±112,000 SF Warehouse Space with ±1,450 SF Office Available 8/1/26
Faits sur l’installation fabrication
Taille du bâtiment
201 000 pi²
Taille du lot
8,78 AC
Année de construction
1980
Construction
Béton renforcé
Terrain de camion
120’
Système de gicleur
Humide
Éclairage
Fluorescent
Eau
Ville
Égout
Ville
Gaz
Propane
Alimentation électrique
Ampères: 1 200 Volts: 277-480 Phase: 3 Fil: 4
Zonage
IL - Entrepôt/distribution
Plutôt praticable à pied
20/100
Exceptionnellement facile d’accès en voiture
100/100
Plutôt praticable en vélo
50/100
1 de 7
Vidéos
Visite extérieure 3D Matterport
Visite 3D Matterport
Photos
Vue depuis la rue
Rue
Carte
Présenté par
Westside Distribution Center 1 | 2001-2003 Ellis Rd N
Vous êtes déjà membre? Connectez-vous
Hmm, il semble y avoir eu une erreur lors de l’envoi de votre message. Veuillez réessayer.
Merci! Votre message a été envoyé.



