Votre courriel a été envoyé.
Newport Birch Medical Plaza 20071 SW Birch St 1 750–23 000 pi² d'espace disponible • Bureau/Médical • 4 étoiles • Newport Beach, CA 92660



Certaines informations ont été traduites automatiquement.
Faits saillants
- New Class “A” Construction
- Ideal fit for Surgical Center use
- Open contiguous floor plans
- Type II Building Construction- Non-combustible & sprinklered
- Medical Suites from ±1,750-11,500 Sq. Ft.
- Served with two (2) elevators
Tous les espaces disponibles(2)
Afficher les taux de location en
- Espace
- Taille
- Terme
- Taux de location
- Utilisation de l’espace
- Aménagement
- Disponible
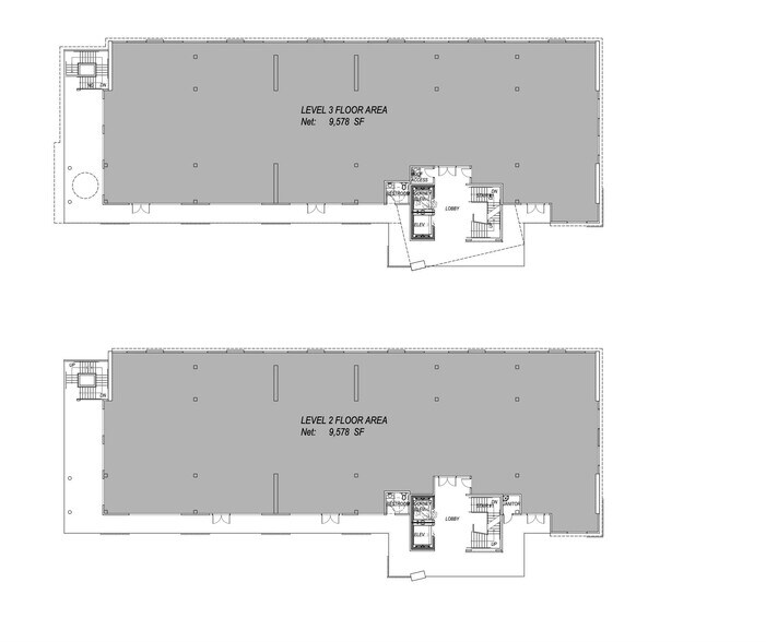
Medical suites range from 1,750 to 23,000 square feet, featuring open, contiguous floor plans that support flexible layouts.
- Le taux de location ne comprend pas les services publics, les services de bâtiment ou les dépenses immobilières.
- Disposition du plan d’étage ouverte en général
- Espace en excellent état
- Free Covered Parking
- Entièrement construit comme Bureau standard
- Convient pour 5 à 92 personnes
- Class “A” Medical Office
- Near UCI & Hoag Hospitals
Medical suites range from 1,750 to 23,000 square feet, featuring open, contiguous floor plans that support flexible layouts.
- Le taux de location ne comprend pas les services publics, les services de bâtiment ou les dépenses immobilières.
- Disposition du plan d’étage ouverte en général
- Espace en excellent état
- Free Covered Parking
- Entièrement construit comme Bureau standard
- Convient pour 5 à 92 personnes
- Class “A” Medical Office
- Near UCI & Hoag Hospitals
| Espace | Taille | Terme | Taux de location | Utilisation de l’espace | Aménagement | Disponible |
| 1er étage | 1 750 à 11 500 pi² | 10 ans | 80,67 $ CAD/pi²/an 6,72 $ CAD/pi²/mois 927 650 $ CAD/an 77 304 $ CAD/mois | Bureau/Médical | construction complète | 2027-01-01 |
| 2e étage | 1 750 à 11 500 pi² | 10 ans | 80,67 $ CAD/pi²/an 6,72 $ CAD/pi²/mois 927 650 $ CAD/an 77 304 $ CAD/mois | Bureau/Médical | construction complète | 2027-01-01 |
1er étage
| Taille |
| 1 750 à 11 500 pi² |
| Terme |
| 10 ans |
| Taux de location |
| 80,67 $ CAD/pi²/an 6,72 $ CAD/pi²/mois 927 650 $ CAD/an 77 304 $ CAD/mois |
| Utilisation de l’espace |
| Bureau/Médical |
| Aménagement |
| construction complète |
| Disponible |
| 2027-01-01 |
2e étage
| Taille |
| 1 750 à 11 500 pi² |
| Terme |
| 10 ans |
| Taux de location |
| 80,67 $ CAD/pi²/an 6,72 $ CAD/pi²/mois 927 650 $ CAD/an 77 304 $ CAD/mois |
| Utilisation de l’espace |
| Bureau/Médical |
| Aménagement |
| construction complète |
| Disponible |
| 2027-01-01 |
1er étage
| Taille | 1 750 à 11 500 pi² |
| Terme | 10 ans |
| Taux de location | 80,67 $ CAD/pi²/an |
| Utilisation de l’espace | Bureau/Médical |
| Aménagement | construction complète |
| Disponible | 2027-01-01 |
Medical suites range from 1,750 to 23,000 square feet, featuring open, contiguous floor plans that support flexible layouts.
- Le taux de location ne comprend pas les services publics, les services de bâtiment ou les dépenses immobilières.
- Entièrement construit comme Bureau standard
- Disposition du plan d’étage ouverte en général
- Convient pour 5 à 92 personnes
- Espace en excellent état
- Class “A” Medical Office
- Free Covered Parking
- Near UCI & Hoag Hospitals
2e étage
| Taille | 1 750 à 11 500 pi² |
| Terme | 10 ans |
| Taux de location | 80,67 $ CAD/pi²/an |
| Utilisation de l’espace | Bureau/Médical |
| Aménagement | construction complète |
| Disponible | 2027-01-01 |
Medical suites range from 1,750 to 23,000 square feet, featuring open, contiguous floor plans that support flexible layouts.
- Le taux de location ne comprend pas les services publics, les services de bâtiment ou les dépenses immobilières.
- Entièrement construit comme Bureau standard
- Disposition du plan d’étage ouverte en général
- Convient pour 5 à 92 personnes
- Espace en excellent état
- Class “A” Medical Office
- Free Covered Parking
- Near UCI & Hoag Hospitals
Aperçu de la propriété
Ce nouvel immeuble de bureaux médicaux de classe « A » offre des finitions haut de gamme et une infrastructure moderne, idéal pour des centres chirurgicaux. Construit avec des matériaux non combustibles de type II et entièrement équipé de gicleurs, ce bâtiment de deux étages repose sur un stationnement au niveau du sol et est desservi par deux ascenseurs pour un accès pratique. Les suites médicales varient de 1 750 à 23 000 pieds carrés, avec des plans d'étage ouverts et contigus permettant des aménagements flexibles. Les locataires bénéficient d’un stationnement gratuit, à la fois en surface et couvert, de vues panoramiques vers le sud, incluant Newport Back Bay, ainsi que d’un accès à pied aux sentiers de la baie. Situé à proximité du nouveau centre médical UCI et du campus de l’hôpital Hoag, le bâtiment offre également un accès direct aux autoroutes 73, 55 et 405. Ce projet est une autre réalisation de grande qualité par ACS Development Group, Inc., conçu pour répondre aux besoins des professionnels de la santé d’aujourd’hui.
Faits sur la propriété
Présenté par
Newport Birch Medical Plaza | 20071 SW Birch St
Hmm, il semble y avoir eu une erreur lors de l’envoi de votre message. Veuillez réessayer.
Merci! Votre message a été envoyé.
