Votre courriel a été envoyé.
Certaines informations ont été traduites automatiquement.
Faits saillants
- À proximité des transports en commun et à distance de marche de nombreux restaurants et magasins haut de gamme.
- Sécurité assurée 24 heures par jour, 365 jours par année, complétée par des caméras de surveillance et un système d'accès par clé par carte après les heures normales de travail.
Tous les espaces disponibles(28)
Afficher les taux de location en
- Espace
- Taille
- Terme
- Taux de location
- Utilisation de l’espace
- État
- Disponible
The office space includes 10 private offices, 2 conference rooms, 2 IT/storage rooms, 2 kitchens, and 3 phone rooms.
- Entièrement construit comme Bureau standard
- 10 bureaux privés
- Plafonds finis: 11’
- Cuisine
- Accès direct à la terrasse sur le toit
- Disposition du plan d’étage ouverte en général
- 2 salles de conférence
- Espace en excellent état
- Entreposage sécurisé
Available now, 2 window-line private offices, 2 conference rooms, Kitchen/break area, open area
- Entièrement construit comme Bureau standard
- 2 bureaux privés
- Plafonds finis: 11’
- Cuisine
- Disposition du plan d’étage ouverte
- 2 salles de conférence
- Espace en excellent état
The space is available now and includes 1 private office, 1 conference room, an open area, a kitchen, and an IT/storage room.
- Entièrement construit comme Bureau standard
- 1 bureau privé
- Plafonds finis: 11’
- Cuisine
- https://my.matterport.com/show/?m=FLWWjCKVzs5
- Disposition du plan d’étage ouverte
- 1 salle de conférence
- Espace en excellent état
- Vues du parc Salesforce
The space is available now and includes 6 private window-line offices, 1 glass-wall conference room, a kitchen, an open area, and double-door identity access off the elevator lobby.
- Entièrement construit comme Bureau de services professionnels
- 6 bureaux privés
- Plafonds finis: 11’
- Cuisine
- https://my.matterport.com/show/?m=3D6SbSNLTc2
- Disposition du plan d’étage ouverte
- 1 salle de conférence
- Espace en excellent état
- Accès aux ascenseurs
The space is available now and features an exposed ceiling, 7 window-line offices, 2 private interior offices, 3 conference rooms, a production room, and a kitchen. It can also be combined with floors 10, 11, and 12 for a contiguous block of 78,513 RSF.
- Entièrement construit comme Bureau de services professionnels
- 3 salles de conférence
- Peut être associé à un ou plusieurs espaces supplémentaires pour obtenir jusqu’à 69 847 pi² d’espace adjacent.
- 2 bureaux privés
- Plafonds finis: 11’
- Cuisine
The space is available now and includes 29 private window-line offices, 2 private interior offices, 5 conference rooms, a telco room, a production room, a large all-hands kitchen, an open area, and an extra-high 17' ceiling. It can also be combined with floors 9, 11, and 12 for a contiguous block of 68,721 RSF.
- Entièrement construit comme Bureau de services professionnels
- 31 bureaux privés
- Plafonds finis: 17’
- Cuisine
- Disposition du plan d’étage ouverte
- 5 salles de conférence
- Peut être associé à un ou plusieurs espaces supplémentaires pour obtenir jusqu’à 69 847 pi² d’espace adjacent.
The space will be available starting January 1, 2023, and includes a large all-hands kitchen, 19 private window-line offices, 5 conference rooms, a production room, an open area, and a telco room. It can also be combined with floors 9, 10, and 12 for a contiguous block of 68,721 RSF.
- Entièrement construit comme Bureau standard
- 19 bureaux privés
- Plafonds finis: 11’
- Peut être associé à un ou plusieurs espaces supplémentaires pour obtenir jusqu’à 69 847 pi² d’espace adjacent.
- https://my.matterport.com/show/?m=B8WCAPJLBqU
- Disposition du plan d’étage ouverte
- 5 salles de conférence
- Espace en excellent état
- Cuisine
The space is available now with an executive suite configuration, featuring 39 private offices, 9 large conference rooms, a copy/print area, a large break area, an IT/storage room, great views, and 2 kitchens. It can also be combined with floors 9, 10, and 11 for a contiguous block of 78,513 RSF.
- Entièrement construit comme Bureau standard
- 9 salles de conférence
- Espace en excellent état
- Cuisine
- 39 bureaux privés
- Plafonds finis: 11’
- Peut être associé à un ou plusieurs espaces supplémentaires pour obtenir jusqu’à 69 847 pi² d’espace adjacent.
- Vues sur la région de la baie
The space is available now and includes 1 private window-line office, 2 conference rooms, a kitchen, a storage/IT closet, and an open area.
- Entièrement construit comme Bureau standard
- 1 bureau privé
- Plafonds finis: 11’
- Cuisine
- https://my.matterport.com/show/?m=Da91WUJ4ZQm
- Disposition du plan d’étage ouverte
- 2 salles de conférence
- Espace en excellent état
- Entreposage sécurisé
The space is available now and includes 3 IT/storage rooms, 2 private offices, a kitchen/break area, and 4 conference rooms. It can also be combined with a full-floor opportunity.
- Entièrement construit comme Bureau standard
- 2 bureaux privés
- Plafonds finis: 11’
- Cuisine
- Disposition du plan d’étage ouverte en général
- 4 salles de conférence
- Espace en excellent état
- Entreposage sécurisé
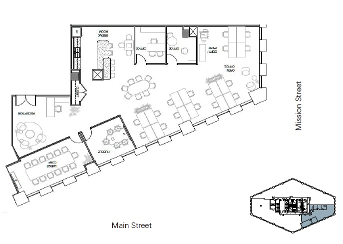
The space is available now and includes 6 private offices, 4 conference rooms, a kitchen/break area, an IT/storage room, a reception area, and a copy/print area. It can also be combined with a full-floor opportunity. Virtual Tour: https://my.matterport.com/show/?m=Kju67q95Eij
- Entièrement construit comme Bureau standard
- 6 bureaux privés
- Plafonds finis: 11’
- Aire de réception
- Salle d’impression/Photocopie
- Entièrement meublé
- Disposition du plan d’étage ouverte en général
- 4 salles de conférence
- Espace en excellent état
- Cuisine
- Entreposage sécurisé
- https://my.matterport.com/show/?m=9KsKHTpb5yC
Mostly open plan with 30 private offices, 4 conference rooms, a kitchen, print/copy room, IT/storage room, and break area.
- Entièrement construit comme Bureau standard
- 30 bureaux privés
- Plafonds finis: 11’
- Cuisine
- Entreposage sécurisé
- Disposition du plan d’étage ouverte en général
- 4 salles de conférence
- Espace en excellent état
- Salle d’impression/Photocopie
- Vues de la ville
The space is available now and includes 5 private offices, 3 conference rooms, a partially furnished setup, a copy area, an exposed ceiling, a phone room, a kitchen/break area, an IT room, and an open area.
- Entièrement construit comme Bureau standard
- 5 bureaux privés
- Plafonds finis: 11’
- Cuisine
- Disposition du plan d’étage ouverte en général
- 3 salles de conférence
- Espace en excellent état
- Vues sur Salesforce Park
The space is available now and includes 3 private offices, 4 conference rooms, a kitchen/break area, an IT/storage room, an open area, 2 phone rooms, and an exposed ceiling.
- Entièrement construit comme Bureau standard
- 3 bureaux privés
- Plafonds finis: 11’
- Plafond exposé
- Disposition du plan d’étage ouverte en général
- 4 salles de conférence
- Espace en excellent état
- Entreposage sécurisé
The space is available now and includes an open area and 1 private window-line office.
- Entièrement construit comme Bureau de services professionnels
- 1 bureau privé
- Espace en excellent état
- Disposition du plan d’étage ouverte
- Plafonds finis: 11’
The space is available now and includes 18 private offices, 4 conference rooms, a kitchen, a server/IT room, a storage room, and an open area.
- Entièrement construit comme Bureau de services professionnels
- 18 bureaux privés
- Plafonds finis: 11’
- Entreposage sécurisé
- Disposition du plan d’étage ouverte en général
- 4 salles de conférence
- Cuisine
- Vues spectaculaires
Space includes 6 private offices, 2 conference rooms, a kitchen, and a storage room.
- Entièrement construit comme Bureau standard
- 6 bureaux privés
- Plafonds finis: 11’
- Entreposage sécurisé
- Disposition du plan d’étage ouverte en général
- 2 salles de conférence
- Cuisine
- Vues de la ville
The space is available now and includes 8 private window-line offices, 1 large conference room, 2 medium conference rooms, 1 large training/team room, a kitchen, and a server and storage room.
- Entièrement construit comme Bureau de services professionnels
- 8 bureaux privés
- Plafonds finis: 11’
- Entreposage sécurisé
- Disposition du plan d’étage ouverte en général
- 3 salles de conférence
- Cuisine
- Vues de la baie et du parc Salesforce
Available now, 4 private offices, 1 large conference room, 1 medium conference room, kitchen/break room, IT/supply room
- Entièrement construit comme Bureau standard
- 4 bureaux privés
- Plafonds finis: 11’
- Entreposage sécurisé
- Disposition du plan d’étage ouverte en général
- 2 salles de conférence
- Cuisine
- Vues sur l'eau et le pont Bay
Nice water views, 4 private offices/conference rooms, kitchen, open space. Available August 1, 2025.
- Entièrement construit comme Bureau standard
- Plafonds finis: 11’
- Disposition du plan d’étage ouverte en général
Fully furnished, open ceiling creative suite, 1 large conference room, 3 private offices, water views, kitchen, and storage room/IT room.
- Entièrement construit comme Bureau standard
- Plafonds finis: 11’
- Disposition du plan d’étage ouverte en général
- https://my.matterport.com/show/?m=uCnaPVk7nhK
- https://my.matterport.com/show/?m=g2Bbt3Hj11h
Upgraded finshes, 32 window-line private offices, 2 large conference rooms, copy/print area, Kitchen, Storage/IT room, Open area, mother's room
- Entièrement construit comme Bureau standard
- 32 bureaux privés
- Plafonds finis: 11’
- Salle d’impression/Photocopie
- Vues incroyables sur la baie
- Disposition du plan d’étage ouverte en général
- 2 salles de conférence
- Cuisine
- Entreposage sécurisé
The space is available now and includes 19 private offices, 1 conference room, a kitchen, a server room, a copy/storage room, and double-door elevator lobby access.
- Entièrement construit comme Bureau standard
- 19 bureaux privés
- Plafonds finis: 11’
- Cuisine
- Salle d’impression/Photocopie
- Disposition du plan d’étage ouverte
- 1 salle de conférence
- Espace en excellent état
- Accès aux ascenseurs
- Vues incroyables sur l'eau
Available Now 9 private offices 1 Board room Salesforce Park and Water Views Open Plan Kitchen
The space is available now and includes 22 private window-line offices, 6 private interior offices, 4 conference rooms, a telco room, a kitchen, a production room, and an extra-high 11' ceiling.
- Entièrement construit comme Bureau standard
- 28 bureaux privés
- Plafonds finis: 11’
- Vues exceptionnelles sur la baie
- Disposition du plan d’étage ouverte en général
- 4 salles de conférence
- Cuisine
The space is available now and offers incredible Bay Bridge views, featuring 16 private offices, 4 conference rooms, a kitchen, a storage/IT closet, and a 14-foot ceiling.
- Partiellement construit comme Bureau standard
- 16 bureaux privés
- Plafonds finis: 14’
- Entreposage sécurisé
- Disposition du plan d’étage ouverte en général
- 4 salles de conférence
- Cuisine
- Vues incroyables sur le pont Bay
| Espace | Taille | Terme | Taux de location | Utilisation de l’espace | État | Disponible |
| 4e étage, ste 400 | 21 492 pi² | 3-5 ans | Sur demande Sur demande Sur demande Sur demande | Bureau | construction complète | Maintenant |
| 5e étage, ste 540 | 4 304 pi² | 3-5 ans | Sur demande Sur demande Sur demande Sur demande | Bureau | construction complète | Maintenant |
| 6e étage, ste 640 | 2 913 pi² | 3-5 ans | Sur demande Sur demande Sur demande Sur demande | Bureau | construction complète | Maintenant |
| 7e étage, ste 710 | 3 893 pi² | 3-5 ans | Sur demande Sur demande Sur demande Sur demande | Bureau | construction complète | Maintenant |
| 8e étage, ste 800 | 18 047 pi² | Négociable | Sur demande Sur demande Sur demande Sur demande | Bureau | - | Maintenant |
| 9e étage, ste 900 | 18 022 pi² | 3-5 ans | Sur demande Sur demande Sur demande Sur demande | Bureau | construction complète | Maintenant |
| 10e étage, ste 1000 | 17 332 pi² | 3-5 ans | Sur demande Sur demande Sur demande Sur demande | Bureau | construction complète | Maintenant |
| 11e étage, ste 1100 | 17 234 pi² | 3-5 ans | Sur demande Sur demande Sur demande Sur demande | Bureau | construction complète | Maintenant |
| 12e étage, ste 1200 | 17 259 pi² | 3-5 ans | Sur demande Sur demande Sur demande Sur demande | Bureau | construction complète | Maintenant |
| 13e étage, ste 1320 | 3 604 pi² | 3-5 ans | Sur demande Sur demande Sur demande Sur demande | Bureau | construction complète | Maintenant |
| 14e étage, ste 1400 | 5 937 pi² | 3-5 ans | Sur demande Sur demande Sur demande Sur demande | Bureau | construction complète | Maintenant |
| 14e étage, ste 1450 | 11 322 pi² | 3-5 ans | Sur demande Sur demande Sur demande Sur demande | Bureau | construction complète | Maintenant |
| 15e étage, ste 1500 | 8 456 pi² | 3-5 ans | Sur demande Sur demande Sur demande Sur demande | Bureau | construction complète | Maintenant |
| 17e étage, ste 1700 | 17 259 pi² | 3-5 ans | Sur demande Sur demande Sur demande Sur demande | Bureau | construction complète | Maintenant |
| 18e étage, ste 1800 | 11 668 pi² | 3-5 ans | Sur demande Sur demande Sur demande Sur demande | Bureau | construction complète | Maintenant |
| 18e étage, ste 1875 | 796 pi² | 3-5 ans | Sur demande Sur demande Sur demande Sur demande | Bureau | construction complète | Maintenant |
| 20e étage, ste 2000 | 11 864 pi² | 3-5 ans | Sur demande Sur demande Sur demande Sur demande | Bureau | construction complète | Maintenant |
| 20e étage, ste 2020 | 4 928 pi² | 3-5 ans | Sur demande Sur demande Sur demande Sur demande | Bureau | construction complète | Maintenant |
| 21e étage, ste 2100 | 10 234 pi² | 3-5 ans | Sur demande Sur demande Sur demande Sur demande | Bureau | construction complète | Maintenant |
| 21e étage, ste 2150 | 7 605 pi² | 3-5 ans | Sur demande Sur demande Sur demande Sur demande | Bureau | construction complète | Maintenant |
| 22e étage, ste 2240 | 2 476 pi² | 3-5 ans | Sur demande Sur demande Sur demande Sur demande | Bureau | construction complète | Maintenant |
| 23e étage, ste 2350 | 3 631 pi² | 3-5 ans | Sur demande Sur demande Sur demande Sur demande | Bureau | construction complète | Maintenant |
| 23e étage, ste 2375 | 6 559 pi² | Négociable | Sur demande Sur demande Sur demande Sur demande | Bureau | - | Maintenant |
| 26e étage, ste 2600 | 17 839 pi² | 3-5 ans | Sur demande Sur demande Sur demande Sur demande | Bureau | construction complète | Maintenant |
| 27e étage, ste 2700 | 8 859 pi² | 3-5 ans | Sur demande Sur demande Sur demande Sur demande | Bureau | construction complète | Maintenant |
| 27e étage, ste 2750 | 7 792 pi² | Négociable | Sur demande Sur demande Sur demande Sur demande | Bureau | - | Maintenant |
| 28e étage, ste 2800 | 17 397 pi² | 3-5 ans | Sur demande Sur demande Sur demande Sur demande | Bureau | construction complète | Maintenant |
| 30e étage, ste 3000 | 16 510 pi² | 3-5 ans | Sur demande Sur demande Sur demande Sur demande | Bureau | construction partielle | Maintenant |
4e étage, ste 400
| Taille |
| 21 492 pi² |
| Terme |
| 3-5 ans |
| Taux de location |
| Sur demande Sur demande Sur demande Sur demande |
| Utilisation de l’espace |
| Bureau |
| État |
| construction complète |
| Disponible |
| Maintenant |
5e étage, ste 540
| Taille |
| 4 304 pi² |
| Terme |
| 3-5 ans |
| Taux de location |
| Sur demande Sur demande Sur demande Sur demande |
| Utilisation de l’espace |
| Bureau |
| État |
| construction complète |
| Disponible |
| Maintenant |
6e étage, ste 640
| Taille |
| 2 913 pi² |
| Terme |
| 3-5 ans |
| Taux de location |
| Sur demande Sur demande Sur demande Sur demande |
| Utilisation de l’espace |
| Bureau |
| État |
| construction complète |
| Disponible |
| Maintenant |
7e étage, ste 710
| Taille |
| 3 893 pi² |
| Terme |
| 3-5 ans |
| Taux de location |
| Sur demande Sur demande Sur demande Sur demande |
| Utilisation de l’espace |
| Bureau |
| État |
| construction complète |
| Disponible |
| Maintenant |
8e étage, ste 800
| Taille |
| 18 047 pi² |
| Terme |
| Négociable |
| Taux de location |
| Sur demande Sur demande Sur demande Sur demande |
| Utilisation de l’espace |
| Bureau |
| État |
| - |
| Disponible |
| Maintenant |
9e étage, ste 900
| Taille |
| 18 022 pi² |
| Terme |
| 3-5 ans |
| Taux de location |
| Sur demande Sur demande Sur demande Sur demande |
| Utilisation de l’espace |
| Bureau |
| État |
| construction complète |
| Disponible |
| Maintenant |
10e étage, ste 1000
| Taille |
| 17 332 pi² |
| Terme |
| 3-5 ans |
| Taux de location |
| Sur demande Sur demande Sur demande Sur demande |
| Utilisation de l’espace |
| Bureau |
| État |
| construction complète |
| Disponible |
| Maintenant |
11e étage, ste 1100
| Taille |
| 17 234 pi² |
| Terme |
| 3-5 ans |
| Taux de location |
| Sur demande Sur demande Sur demande Sur demande |
| Utilisation de l’espace |
| Bureau |
| État |
| construction complète |
| Disponible |
| Maintenant |
12e étage, ste 1200
| Taille |
| 17 259 pi² |
| Terme |
| 3-5 ans |
| Taux de location |
| Sur demande Sur demande Sur demande Sur demande |
| Utilisation de l’espace |
| Bureau |
| État |
| construction complète |
| Disponible |
| Maintenant |
13e étage, ste 1320
| Taille |
| 3 604 pi² |
| Terme |
| 3-5 ans |
| Taux de location |
| Sur demande Sur demande Sur demande Sur demande |
| Utilisation de l’espace |
| Bureau |
| État |
| construction complète |
| Disponible |
| Maintenant |
14e étage, ste 1400
| Taille |
| 5 937 pi² |
| Terme |
| 3-5 ans |
| Taux de location |
| Sur demande Sur demande Sur demande Sur demande |
| Utilisation de l’espace |
| Bureau |
| État |
| construction complète |
| Disponible |
| Maintenant |
14e étage, ste 1450
| Taille |
| 11 322 pi² |
| Terme |
| 3-5 ans |
| Taux de location |
| Sur demande Sur demande Sur demande Sur demande |
| Utilisation de l’espace |
| Bureau |
| État |
| construction complète |
| Disponible |
| Maintenant |
15e étage, ste 1500
| Taille |
| 8 456 pi² |
| Terme |
| 3-5 ans |
| Taux de location |
| Sur demande Sur demande Sur demande Sur demande |
| Utilisation de l’espace |
| Bureau |
| État |
| construction complète |
| Disponible |
| Maintenant |
17e étage, ste 1700
| Taille |
| 17 259 pi² |
| Terme |
| 3-5 ans |
| Taux de location |
| Sur demande Sur demande Sur demande Sur demande |
| Utilisation de l’espace |
| Bureau |
| État |
| construction complète |
| Disponible |
| Maintenant |
18e étage, ste 1800
| Taille |
| 11 668 pi² |
| Terme |
| 3-5 ans |
| Taux de location |
| Sur demande Sur demande Sur demande Sur demande |
| Utilisation de l’espace |
| Bureau |
| État |
| construction complète |
| Disponible |
| Maintenant |
18e étage, ste 1875
| Taille |
| 796 pi² |
| Terme |
| 3-5 ans |
| Taux de location |
| Sur demande Sur demande Sur demande Sur demande |
| Utilisation de l’espace |
| Bureau |
| État |
| construction complète |
| Disponible |
| Maintenant |
20e étage, ste 2000
| Taille |
| 11 864 pi² |
| Terme |
| 3-5 ans |
| Taux de location |
| Sur demande Sur demande Sur demande Sur demande |
| Utilisation de l’espace |
| Bureau |
| État |
| construction complète |
| Disponible |
| Maintenant |
20e étage, ste 2020
| Taille |
| 4 928 pi² |
| Terme |
| 3-5 ans |
| Taux de location |
| Sur demande Sur demande Sur demande Sur demande |
| Utilisation de l’espace |
| Bureau |
| État |
| construction complète |
| Disponible |
| Maintenant |
21e étage, ste 2100
| Taille |
| 10 234 pi² |
| Terme |
| 3-5 ans |
| Taux de location |
| Sur demande Sur demande Sur demande Sur demande |
| Utilisation de l’espace |
| Bureau |
| État |
| construction complète |
| Disponible |
| Maintenant |
21e étage, ste 2150
| Taille |
| 7 605 pi² |
| Terme |
| 3-5 ans |
| Taux de location |
| Sur demande Sur demande Sur demande Sur demande |
| Utilisation de l’espace |
| Bureau |
| État |
| construction complète |
| Disponible |
| Maintenant |
22e étage, ste 2240
| Taille |
| 2 476 pi² |
| Terme |
| 3-5 ans |
| Taux de location |
| Sur demande Sur demande Sur demande Sur demande |
| Utilisation de l’espace |
| Bureau |
| État |
| construction complète |
| Disponible |
| Maintenant |
23e étage, ste 2350
| Taille |
| 3 631 pi² |
| Terme |
| 3-5 ans |
| Taux de location |
| Sur demande Sur demande Sur demande Sur demande |
| Utilisation de l’espace |
| Bureau |
| État |
| construction complète |
| Disponible |
| Maintenant |
23e étage, ste 2375
| Taille |
| 6 559 pi² |
| Terme |
| Négociable |
| Taux de location |
| Sur demande Sur demande Sur demande Sur demande |
| Utilisation de l’espace |
| Bureau |
| État |
| - |
| Disponible |
| Maintenant |
26e étage, ste 2600
| Taille |
| 17 839 pi² |
| Terme |
| 3-5 ans |
| Taux de location |
| Sur demande Sur demande Sur demande Sur demande |
| Utilisation de l’espace |
| Bureau |
| État |
| construction complète |
| Disponible |
| Maintenant |
27e étage, ste 2700
| Taille |
| 8 859 pi² |
| Terme |
| 3-5 ans |
| Taux de location |
| Sur demande Sur demande Sur demande Sur demande |
| Utilisation de l’espace |
| Bureau |
| État |
| construction complète |
| Disponible |
| Maintenant |
27e étage, ste 2750
| Taille |
| 7 792 pi² |
| Terme |
| Négociable |
| Taux de location |
| Sur demande Sur demande Sur demande Sur demande |
| Utilisation de l’espace |
| Bureau |
| État |
| - |
| Disponible |
| Maintenant |
28e étage, ste 2800
| Taille |
| 17 397 pi² |
| Terme |
| 3-5 ans |
| Taux de location |
| Sur demande Sur demande Sur demande Sur demande |
| Utilisation de l’espace |
| Bureau |
| État |
| construction complète |
| Disponible |
| Maintenant |
30e étage, ste 3000
| Taille |
| 16 510 pi² |
| Terme |
| 3-5 ans |
| Taux de location |
| Sur demande Sur demande Sur demande Sur demande |
| Utilisation de l’espace |
| Bureau |
| État |
| construction partielle |
| Disponible |
| Maintenant |
4e étage, ste 400
| Taille | 21 492 pi² |
| Terme | 3-5 ans |
| Taux de location | Sur demande |
| Utilisation de l’espace | Bureau |
| État | construction complète |
| Disponible | Maintenant |
The office space includes 10 private offices, 2 conference rooms, 2 IT/storage rooms, 2 kitchens, and 3 phone rooms.
- Entièrement construit comme Bureau standard
- Disposition du plan d’étage ouverte en général
- 10 bureaux privés
- 2 salles de conférence
- Plafonds finis: 11’
- Espace en excellent état
- Cuisine
- Entreposage sécurisé
- Accès direct à la terrasse sur le toit
5e étage, ste 540
| Taille | 4 304 pi² |
| Terme | 3-5 ans |
| Taux de location | Sur demande |
| Utilisation de l’espace | Bureau |
| État | construction complète |
| Disponible | Maintenant |
Available now, 2 window-line private offices, 2 conference rooms, Kitchen/break area, open area
- Entièrement construit comme Bureau standard
- Disposition du plan d’étage ouverte
- 2 bureaux privés
- 2 salles de conférence
- Plafonds finis: 11’
- Espace en excellent état
- Cuisine
6e étage, ste 640
| Taille | 2 913 pi² |
| Terme | 3-5 ans |
| Taux de location | Sur demande |
| Utilisation de l’espace | Bureau |
| État | construction complète |
| Disponible | Maintenant |
The space is available now and includes 1 private office, 1 conference room, an open area, a kitchen, and an IT/storage room.
- Entièrement construit comme Bureau standard
- Disposition du plan d’étage ouverte
- 1 bureau privé
- 1 salle de conférence
- Plafonds finis: 11’
- Espace en excellent état
- Cuisine
- Vues du parc Salesforce
- https://my.matterport.com/show/?m=FLWWjCKVzs5
7e étage, ste 710
| Taille | 3 893 pi² |
| Terme | 3-5 ans |
| Taux de location | Sur demande |
| Utilisation de l’espace | Bureau |
| État | construction complète |
| Disponible | Maintenant |
The space is available now and includes 6 private window-line offices, 1 glass-wall conference room, a kitchen, an open area, and double-door identity access off the elevator lobby.
- Entièrement construit comme Bureau de services professionnels
- Disposition du plan d’étage ouverte
- 6 bureaux privés
- 1 salle de conférence
- Plafonds finis: 11’
- Espace en excellent état
- Cuisine
- Accès aux ascenseurs
- https://my.matterport.com/show/?m=3D6SbSNLTc2
8e étage, ste 800
| Taille | 18 047 pi² |
| Terme | Négociable |
| Taux de location | Sur demande |
| Utilisation de l’espace | Bureau |
| État | - |
| Disponible | Maintenant |
9e étage, ste 900
| Taille | 18 022 pi² |
| Terme | 3-5 ans |
| Taux de location | Sur demande |
| Utilisation de l’espace | Bureau |
| État | construction complète |
| Disponible | Maintenant |
The space is available now and features an exposed ceiling, 7 window-line offices, 2 private interior offices, 3 conference rooms, a production room, and a kitchen. It can also be combined with floors 10, 11, and 12 for a contiguous block of 78,513 RSF.
- Entièrement construit comme Bureau de services professionnels
- 2 bureaux privés
- 3 salles de conférence
- Plafonds finis: 11’
- Peut être associé à un ou plusieurs espaces supplémentaires pour obtenir jusqu’à 69 847 pi² d’espace adjacent.
- Cuisine
10e étage, ste 1000
| Taille | 17 332 pi² |
| Terme | 3-5 ans |
| Taux de location | Sur demande |
| Utilisation de l’espace | Bureau |
| État | construction complète |
| Disponible | Maintenant |
The space is available now and includes 29 private window-line offices, 2 private interior offices, 5 conference rooms, a telco room, a production room, a large all-hands kitchen, an open area, and an extra-high 17' ceiling. It can also be combined with floors 9, 11, and 12 for a contiguous block of 68,721 RSF.
- Entièrement construit comme Bureau de services professionnels
- Disposition du plan d’étage ouverte
- 31 bureaux privés
- 5 salles de conférence
- Plafonds finis: 17’
- Peut être associé à un ou plusieurs espaces supplémentaires pour obtenir jusqu’à 69 847 pi² d’espace adjacent.
- Cuisine
11e étage, ste 1100
| Taille | 17 234 pi² |
| Terme | 3-5 ans |
| Taux de location | Sur demande |
| Utilisation de l’espace | Bureau |
| État | construction complète |
| Disponible | Maintenant |
The space will be available starting January 1, 2023, and includes a large all-hands kitchen, 19 private window-line offices, 5 conference rooms, a production room, an open area, and a telco room. It can also be combined with floors 9, 10, and 12 for a contiguous block of 68,721 RSF.
- Entièrement construit comme Bureau standard
- Disposition du plan d’étage ouverte
- 19 bureaux privés
- 5 salles de conférence
- Plafonds finis: 11’
- Espace en excellent état
- Peut être associé à un ou plusieurs espaces supplémentaires pour obtenir jusqu’à 69 847 pi² d’espace adjacent.
- Cuisine
- https://my.matterport.com/show/?m=B8WCAPJLBqU
12e étage, ste 1200
| Taille | 17 259 pi² |
| Terme | 3-5 ans |
| Taux de location | Sur demande |
| Utilisation de l’espace | Bureau |
| État | construction complète |
| Disponible | Maintenant |
The space is available now with an executive suite configuration, featuring 39 private offices, 9 large conference rooms, a copy/print area, a large break area, an IT/storage room, great views, and 2 kitchens. It can also be combined with floors 9, 10, and 11 for a contiguous block of 78,513 RSF.
- Entièrement construit comme Bureau standard
- 39 bureaux privés
- 9 salles de conférence
- Plafonds finis: 11’
- Espace en excellent état
- Peut être associé à un ou plusieurs espaces supplémentaires pour obtenir jusqu’à 69 847 pi² d’espace adjacent.
- Cuisine
- Vues sur la région de la baie
13e étage, ste 1320
| Taille | 3 604 pi² |
| Terme | 3-5 ans |
| Taux de location | Sur demande |
| Utilisation de l’espace | Bureau |
| État | construction complète |
| Disponible | Maintenant |
The space is available now and includes 1 private window-line office, 2 conference rooms, a kitchen, a storage/IT closet, and an open area.
- Entièrement construit comme Bureau standard
- Disposition du plan d’étage ouverte
- 1 bureau privé
- 2 salles de conférence
- Plafonds finis: 11’
- Espace en excellent état
- Cuisine
- Entreposage sécurisé
- https://my.matterport.com/show/?m=Da91WUJ4ZQm
14e étage, ste 1400
| Taille | 5 937 pi² |
| Terme | 3-5 ans |
| Taux de location | Sur demande |
| Utilisation de l’espace | Bureau |
| État | construction complète |
| Disponible | Maintenant |
The space is available now and includes 3 IT/storage rooms, 2 private offices, a kitchen/break area, and 4 conference rooms. It can also be combined with a full-floor opportunity.
- Entièrement construit comme Bureau standard
- Disposition du plan d’étage ouverte en général
- 2 bureaux privés
- 4 salles de conférence
- Plafonds finis: 11’
- Espace en excellent état
- Cuisine
- Entreposage sécurisé
14e étage, ste 1450
| Taille | 11 322 pi² |
| Terme | 3-5 ans |
| Taux de location | Sur demande |
| Utilisation de l’espace | Bureau |
| État | construction complète |
| Disponible | Maintenant |
The space is available now and includes 6 private offices, 4 conference rooms, a kitchen/break area, an IT/storage room, a reception area, and a copy/print area. It can also be combined with a full-floor opportunity. Virtual Tour: https://my.matterport.com/show/?m=Kju67q95Eij
- Entièrement construit comme Bureau standard
- Disposition du plan d’étage ouverte en général
- 6 bureaux privés
- 4 salles de conférence
- Plafonds finis: 11’
- Espace en excellent état
- Aire de réception
- Cuisine
- Salle d’impression/Photocopie
- Entreposage sécurisé
- Entièrement meublé
- https://my.matterport.com/show/?m=9KsKHTpb5yC
15e étage, ste 1500
| Taille | 8 456 pi² |
| Terme | 3-5 ans |
| Taux de location | Sur demande |
| Utilisation de l’espace | Bureau |
| État | construction complète |
| Disponible | Maintenant |
Mostly open plan with 30 private offices, 4 conference rooms, a kitchen, print/copy room, IT/storage room, and break area.
- Entièrement construit comme Bureau standard
- Disposition du plan d’étage ouverte en général
- 30 bureaux privés
- 4 salles de conférence
- Plafonds finis: 11’
- Espace en excellent état
- Cuisine
- Salle d’impression/Photocopie
- Entreposage sécurisé
- Vues de la ville
17e étage, ste 1700
| Taille | 17 259 pi² |
| Terme | 3-5 ans |
| Taux de location | Sur demande |
| Utilisation de l’espace | Bureau |
| État | construction complète |
| Disponible | Maintenant |
The space is available now and includes 5 private offices, 3 conference rooms, a partially furnished setup, a copy area, an exposed ceiling, a phone room, a kitchen/break area, an IT room, and an open area.
- Entièrement construit comme Bureau standard
- Disposition du plan d’étage ouverte en général
- 5 bureaux privés
- 3 salles de conférence
- Plafonds finis: 11’
- Espace en excellent état
- Cuisine
- Vues sur Salesforce Park
18e étage, ste 1800
| Taille | 11 668 pi² |
| Terme | 3-5 ans |
| Taux de location | Sur demande |
| Utilisation de l’espace | Bureau |
| État | construction complète |
| Disponible | Maintenant |
The space is available now and includes 3 private offices, 4 conference rooms, a kitchen/break area, an IT/storage room, an open area, 2 phone rooms, and an exposed ceiling.
- Entièrement construit comme Bureau standard
- Disposition du plan d’étage ouverte en général
- 3 bureaux privés
- 4 salles de conférence
- Plafonds finis: 11’
- Espace en excellent état
- Plafond exposé
- Entreposage sécurisé
18e étage, ste 1875
| Taille | 796 pi² |
| Terme | 3-5 ans |
| Taux de location | Sur demande |
| Utilisation de l’espace | Bureau |
| État | construction complète |
| Disponible | Maintenant |
The space is available now and includes an open area and 1 private window-line office.
- Entièrement construit comme Bureau de services professionnels
- Disposition du plan d’étage ouverte
- 1 bureau privé
- Plafonds finis: 11’
- Espace en excellent état
20e étage, ste 2000
| Taille | 11 864 pi² |
| Terme | 3-5 ans |
| Taux de location | Sur demande |
| Utilisation de l’espace | Bureau |
| État | construction complète |
| Disponible | Maintenant |
The space is available now and includes 18 private offices, 4 conference rooms, a kitchen, a server/IT room, a storage room, and an open area.
- Entièrement construit comme Bureau de services professionnels
- Disposition du plan d’étage ouverte en général
- 18 bureaux privés
- 4 salles de conférence
- Plafonds finis: 11’
- Cuisine
- Entreposage sécurisé
- Vues spectaculaires
20e étage, ste 2020
| Taille | 4 928 pi² |
| Terme | 3-5 ans |
| Taux de location | Sur demande |
| Utilisation de l’espace | Bureau |
| État | construction complète |
| Disponible | Maintenant |
Space includes 6 private offices, 2 conference rooms, a kitchen, and a storage room.
- Entièrement construit comme Bureau standard
- Disposition du plan d’étage ouverte en général
- 6 bureaux privés
- 2 salles de conférence
- Plafonds finis: 11’
- Cuisine
- Entreposage sécurisé
- Vues de la ville
21e étage, ste 2100
| Taille | 10 234 pi² |
| Terme | 3-5 ans |
| Taux de location | Sur demande |
| Utilisation de l’espace | Bureau |
| État | construction complète |
| Disponible | Maintenant |
The space is available now and includes 8 private window-line offices, 1 large conference room, 2 medium conference rooms, 1 large training/team room, a kitchen, and a server and storage room.
- Entièrement construit comme Bureau de services professionnels
- Disposition du plan d’étage ouverte en général
- 8 bureaux privés
- 3 salles de conférence
- Plafonds finis: 11’
- Cuisine
- Entreposage sécurisé
- Vues de la baie et du parc Salesforce
21e étage, ste 2150
| Taille | 7 605 pi² |
| Terme | 3-5 ans |
| Taux de location | Sur demande |
| Utilisation de l’espace | Bureau |
| État | construction complète |
| Disponible | Maintenant |
Available now, 4 private offices, 1 large conference room, 1 medium conference room, kitchen/break room, IT/supply room
- Entièrement construit comme Bureau standard
- Disposition du plan d’étage ouverte en général
- 4 bureaux privés
- 2 salles de conférence
- Plafonds finis: 11’
- Cuisine
- Entreposage sécurisé
- Vues sur l'eau et le pont Bay
22e étage, ste 2240
| Taille | 2 476 pi² |
| Terme | 3-5 ans |
| Taux de location | Sur demande |
| Utilisation de l’espace | Bureau |
| État | construction complète |
| Disponible | Maintenant |
Nice water views, 4 private offices/conference rooms, kitchen, open space. Available August 1, 2025.
- Entièrement construit comme Bureau standard
- Disposition du plan d’étage ouverte en général
- Plafonds finis: 11’
23e étage, ste 2350
| Taille | 3 631 pi² |
| Terme | 3-5 ans |
| Taux de location | Sur demande |
| Utilisation de l’espace | Bureau |
| État | construction complète |
| Disponible | Maintenant |
Fully furnished, open ceiling creative suite, 1 large conference room, 3 private offices, water views, kitchen, and storage room/IT room.
- Entièrement construit comme Bureau standard
- Disposition du plan d’étage ouverte en général
- Plafonds finis: 11’
- https://my.matterport.com/show/?m=uCnaPVk7nhK
23e étage, ste 2375
| Taille | 6 559 pi² |
| Terme | Négociable |
| Taux de location | Sur demande |
| Utilisation de l’espace | Bureau |
| État | - |
| Disponible | Maintenant |
- https://my.matterport.com/show/?m=g2Bbt3Hj11h
26e étage, ste 2600
| Taille | 17 839 pi² |
| Terme | 3-5 ans |
| Taux de location | Sur demande |
| Utilisation de l’espace | Bureau |
| État | construction complète |
| Disponible | Maintenant |
Upgraded finshes, 32 window-line private offices, 2 large conference rooms, copy/print area, Kitchen, Storage/IT room, Open area, mother's room
- Entièrement construit comme Bureau standard
- Disposition du plan d’étage ouverte en général
- 32 bureaux privés
- 2 salles de conférence
- Plafonds finis: 11’
- Cuisine
- Salle d’impression/Photocopie
- Entreposage sécurisé
- Vues incroyables sur la baie
27e étage, ste 2700
| Taille | 8 859 pi² |
| Terme | 3-5 ans |
| Taux de location | Sur demande |
| Utilisation de l’espace | Bureau |
| État | construction complète |
| Disponible | Maintenant |
The space is available now and includes 19 private offices, 1 conference room, a kitchen, a server room, a copy/storage room, and double-door elevator lobby access.
- Entièrement construit comme Bureau standard
- Disposition du plan d’étage ouverte
- 19 bureaux privés
- 1 salle de conférence
- Plafonds finis: 11’
- Espace en excellent état
- Cuisine
- Accès aux ascenseurs
- Salle d’impression/Photocopie
- Vues incroyables sur l'eau
27e étage, ste 2750
| Taille | 7 792 pi² |
| Terme | Négociable |
| Taux de location | Sur demande |
| Utilisation de l’espace | Bureau |
| État | - |
| Disponible | Maintenant |
Available Now 9 private offices 1 Board room Salesforce Park and Water Views Open Plan Kitchen
28e étage, ste 2800
| Taille | 17 397 pi² |
| Terme | 3-5 ans |
| Taux de location | Sur demande |
| Utilisation de l’espace | Bureau |
| État | construction complète |
| Disponible | Maintenant |
The space is available now and includes 22 private window-line offices, 6 private interior offices, 4 conference rooms, a telco room, a kitchen, a production room, and an extra-high 11' ceiling.
- Entièrement construit comme Bureau standard
- Disposition du plan d’étage ouverte en général
- 28 bureaux privés
- 4 salles de conférence
- Plafonds finis: 11’
- Cuisine
- Vues exceptionnelles sur la baie
30e étage, ste 3000
| Taille | 16 510 pi² |
| Terme | 3-5 ans |
| Taux de location | Sur demande |
| Utilisation de l’espace | Bureau |
| État | construction partielle |
| Disponible | Maintenant |
The space is available now and offers incredible Bay Bridge views, featuring 16 private offices, 4 conference rooms, a kitchen, a storage/IT closet, and a 14-foot ceiling.
- Partiellement construit comme Bureau standard
- Disposition du plan d’étage ouverte en général
- 16 bureaux privés
- 4 salles de conférence
- Plafonds finis: 14’
- Cuisine
- Entreposage sécurisé
- Vues incroyables sur le pont Bay
Aperçu de la propriété
Bien en vue au cœur du quartier financier du centre-ville, entre Beale et la rue Main. Près des transports en commun et à distance de marche de nombreux restaurants et magasins haut de gamme. Sécurité avec personnel 24 heures sur 24, 365 jours par année, complétée par des caméras de surveillance et un système d'accès par carte après les heures normales de bureau ; garde supplémentaire posté au quai de chargement pendant les heures normales de bureau. Neuf silos passagers, deux silos à marchandises et deux escaliers mécaniques. Système de VAV à conduit unique entièrement automatisé. Des unités de traitement de l'air à chaque étage des locataires. Sur place, le terrain découvert peut accueillir 75 voitures stationnées avec service de voiturier. Conception contemporaine de panneaux prémoulés en béton et en agrégats rehaussés par du verre à double vitrage teinté de bronze et de solides lignes architecturales. Lobby frappant de deux étages. Accès par un escalator bien en vue au hall d'ascenseur au 2e étage Attrayants espaces assises paysagés au rez-de-chaussée ; terrasses en plein air au deuxième et troisième étages. À l'heure actuelle, 27 des 30 étages des locataires ont des lampes T-8 et des ballasts électroniques. Le hall d'entrée de deux étages de l'édifice utilise une ampoule fluorescente Prolight R40/709/WVQ de 9 watts, une version écoénergétique de l'ampoule type utilisée sur cet appareil d'éclairage propre au bâtiment. De plus, toutes les aires communes extérieures de l'édifice, qui comprennent des surplombs de garage et des voies publiques, sont contrôlées par des cellules photographiques. 201 Mission est équipé d'un système de gestion de l'énergie (SGE) /Système d'automatisation des bâtiments (BAS) contrôlé par Staefa. Le programme SGE et SCA susmentionné exécute actuellement diverses fonctions d'efficacité énergétique. Par exemple, il faut s'assurer que les systèmes mécaniques du bâtiment de base fonctionnent au niveau le plus efficace possible et surveiller les températures de l'air extérieur et intérieur pour calculer le temps optimal de démarrage et d'arrêt de chaque unité de traitement de l'air. De plus, le système EMS/BAS réglemente l'utilisation par les principaux refroidisseurs et les manipulateurs d'air de l'eau réfrigérée et de la température de l'air de décharge en fonction des charges de refroidissement du bâtiment et des exigences météorologiques. Un balayage de l'éclairage dans tous les locaux des locataires a lieu toutes les 2 heures entre minuit et 6 h. L'édifice réduit les coûts énergétiques en entretenant systématiquement l'équipement mécanique au moyen d'un programme informatisé d'entretien préventif (PGP). Le PGR permet aux ingénieurs en bâtiment d'effectuer systématiquement les niveaux d'entretien nécessaires afin de maintenir l'efficacité maximale de chaque pièce d'équipement. L'édifice investit du temps dans la formation et le perfectionnement de nos ingénieurs afin d'assurer des mesures d'entretien préventif de qualité uniformes et un contrôle adéquat de l'équipement. Une vérification annuelle des opérations effectuée par l'ingénieur régional examine le calendrier actuel du PGR pour tout ajout ou modification au PGR. Un essai thermique est effectué chaque année pour détecter tout branchement lâche et prévenir tout drainage énergétique à long terme possible. Cet édifice a reçu une étiquette Energy Star en 2019 pour son efficacité opérationnelle et sa désignation Or LEED en 2015.
- Atrium
- Ligne d'autobus
- Train de banlieue
- Dépanneur
- Cour
- Service d'alimentation
- Métro
- Restaurant
- Certifié Energy Star
- Entreposage de vélo
- Clef en main
- Douches
Faits sur la propriété
Durabilité
Durabilité
Certification LEED Établi par le U.S. Green Building Council (USGBC, Conseil américain du bâtiment durable), le programme de certification LEED (Leadership in Energy and Environmental Design) est axé sur la conception, la construction, l’exploitation et l’entretien de bâtiments, de maisons et de quartiers écologiques. Sa vocation est d’aider les propriétaires et les exploitants à adopter des pratiques écoresponsables et à utiliser les ressources de façon efficace. La certification LEED est un symbole mondialement reconnu de réussite et de leadership en matière de développement durable. Pour obtenir la certification LEED, un projet doit obtenir des points en respectant des conditions préalables et un barème de crédits qui tiennent compte des émissions de carbone, de l’énergie, de l’eau, des déchets, du transport, des matériaux, de la santé et de la qualité de l’environnement intérieur. Les projets passent par un processus de vérification et d’évaluation et reçoivent un pointage correspondant à un niveau de certification LEED: Platine (80 points et plus) Or (60 à 79 points) Silver (50-59 points) Certifié (40 à 49 points)
ENERGY STAR® Géré par la U.S. Environmental Protection Agency (EPA, L’agence des États-Unis pour la protection de l’environnement) et le Département américain de l’énergie (DOE), le programme Energy Star fait la promotion de l’efficacité énergétique et fournit des renseignements simples, crédibles et objectifs sur lesquels les consommateurs et les entreprises peuvent s’appuyer pour prendre des décisions éclairées. Des milliers d’organisations industrielles, commerciales, gouvernementales, locales et de services publics travaillent de concert avec l’EPA afin de fournir des solutions d’efficacité énergétique économiques protégeant le climat et la santé publique tout en améliorant la qualité de l’air. La cote Energy Star compare la performance énergétique d’un bâtiment à celle de bâtiments similaires à l’échelle nationale et tient compte des différences dans les conditions d’exploitation, des données météorologiques régionales et autres considérations importantes. Comme la certification est renouvelée annuellement, chaque immeuble doit maintenir un rendement élevé pour conserver son titre. Pour être admissible à la certification Energy Star, un bâtiment doit obtenir une cote de 75 ou plus sur l’échelle de 1 à 100 de l’EPA, indiquant qu’il offre un rendement supérieur à au moins 75 % des bâtiments comparables à l’échelle nationale. Cette cote Energy Star d’un à 100 est calculée selon la consommation d’énergie réelle d’un bâtiment au moyen de l’outil Energy Star Portfolio Manager de l’EPA.
Présenté par
201 Mission St
Hmm, il semble y avoir eu une erreur lors de l’envoi de votre message. Veuillez réessayer.
Merci! Votre message a été envoyé.




















































