Se Connecter/S’inscrire
Votre courriel a été envoyé.
2016 Rowe Loop Lot • Terrain commercial • 13 Acres • 4 933 476 $ CAD • Pflugerville, TX 78660



Certaines informations ont été traduites automatiquement.
Faits saillants de l'investissement
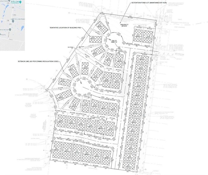
- Entitlements in Place: Completed and approved site plan with all city and utility requirements satisfied.
- Utilities Ready: Water, sewer, and electricity are available and ready for connection.
- Desirable Surroundings: Located in a high-demand growth area near schools, parks, and shopping—perfect for a new residential community.
- Prime Location: Ideally positioned near major employers, retail centers, and entertainment hubs with convenient access to TX-130, SH-45, and I-35.
- Flexible Design Potential: Entitlements allow for single-family homes with optional in-law suites or ADUs on each lot, catering to a variety of buyer
- Investment-Ready: All approvals secured, minimizing uncertainty and streamlining the development process.
Résumé de l'annonce
A premier development opportunity awaits in the rapidly growing North Austin–Pflugerville corridor. Situated just minutes from TX-130, this 13-acre tract offers a fully entitled residential subdivision with approved site plans—presenting a rare turnkey investment for builders, developers, or investors seeking a ready-to-go project in one of Central Texas’s most active markets. With entitlements and infrastructure already in place, this property represents a truly rare opportunity to deliver a new residential neighborhood in one of Austin’s most dynamic submarkets. Its prime location, thoughtful planning, and full city approvals make it an exceptional offering for developers looking to capitalize on Pflugerville’s continued growth and strong housing demand.
Faits sur la propriété
1 Lot disponible
Lot
| Prix | 4 933 476 $ CAD | Taille du lot | 13,00 AC |
| Prix par AC | 379 498,14 $ CAD |
| Prix | 4 933 476 $ CAD |
| Prix par AC | 379 498,14 $ CAD |
| Taille du lot | 13,00 AC |
Prime Residential Development Opportunity – North Austin / Pflugerville.
Description
S'étendant sur environ 13 acres, la propriété est zonée SF-R et entièrement autorisée pour 44 lots (46 maisons) avec des tailles de lots allant de 7 500 à 15 000 pieds carrés. Toutes les autorisations et approbations municipales nécessaires sont en place, y compris les accords de service d'eau et les raccordements aux services publics, garantissant une transition fluide de l'acquisition au développement. Points forts :
1 1
Plutôt praticable à pied
30/100
Très facile d’accès en voiture
80/100
Plutôt praticable en vélo
40/100
1 de 8
Vidéos
Visite extérieure 3D Matterport
Visite 3D Matterport
Photos
Vue depuis la rue
Rue
Carte
1 de 1
Présenté par
Caleb Home Sales
2016 Rowe Loop
Vous êtes déjà membre? Connectez-vous
Hmm, il semble y avoir eu une erreur lors de l’envoi de votre message. Veuillez réessayer.
Merci! Votre message a été envoyé.
