Votre courriel a été envoyé.
Certaines informations ont été traduites automatiquement.
TOUS LES ESPACES DISPONIBLES(2)
Afficher les taux de location en
- ESPACE
- TAILLE
- TERME
- TAUX DE LOCATION
- UTILISATION DE L’ESPACE
- ÉTAT
- DISPONIBLE
Flexible executive office suites available in the historic St. Charles National Bank Building, located in the heart of downtown St. Charles. Suites range from 140 SF to 550 SF, ideal for solo professionals and small teams. The building offers shared amenities, including a beautifully furnished lobby, reception desk, conference room, kitchenette, and access to a unique historic bank vault from 1932, preserved inside the conference room. Tenants benefit from on-site private parking, ADA-compliant access, and a large public parking lot directly across Cedar Street. Enjoy walkability to shops, restaurants, city offices, and the scenic Fox River. Perfect for professionals seeking a turnkey office environment with a prestigious downtown address.
- 2 bureaux privés
- 4 postes de travail
- 1 salle de conférence
- Espace en excellent état
Available office suite totaling 1,079 SF located in the St. Charles National Bank Building, a well-maintained Class B property in the heart of downtown St. Charles. The space features two private offices, a conference room that can easily be converted into a third private office, a private restroom, and a kitchenette. Step out onto a private outdoor deck—ideal for breaks or fresh air. The suite includes on-site private parking, and a large public lot across Cedar Drive for clients and guests. Just steps from the Fox River and surrounded by downtown amenities including restaurants, coffee shops, retail, and professional services. Ideal for: Attorneys Accountants Financial advisors Therapists or counselors Architects or design professionals Small professional service firms Remote executives needing private meeting space Lease Rate and Term: Flexible. Perfect for small professional users seeking a polished, downtown presence with flexible layout and modern comfort.
- Le taux inscrit peut ne pas comprendre certains services publics, les services de bâtiment et les dépenses immobilières.
- 2 bureaux privés
- 2 postes de travail
- Entièrement construit comme Bureau standard
- 3 salles de conférence
- Espace en excellent état
| Espace | Taille | Terme | Taux de location | Utilisation de l’espace | État | Disponible |
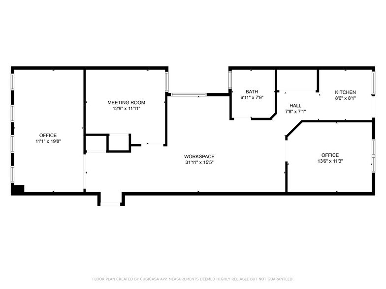
| 1er étage | 275 à 550 pi² | Négociable | Sur demande Sur demande Sur demande Sur demande | Bureau | - | 30 jours |
| 2e étage | 1 079 pi² | Négociable | Sur demande Sur demande Sur demande Sur demande | Bureau | construction complète | Maintenant |
1er étage
| Taille |
| 275 à 550 pi² |
| Terme |
| Négociable |
| Taux de location |
| Sur demande Sur demande Sur demande Sur demande |
| Utilisation de l’espace |
| Bureau |
| État |
| - |
| Disponible |
| 30 jours |
2e étage
| Taille |
| 1 079 pi² |
| Terme |
| Négociable |
| Taux de location |
| Sur demande Sur demande Sur demande Sur demande |
| Utilisation de l’espace |
| Bureau |
| État |
| construction complète |
| Disponible |
| Maintenant |
1er étage
| Taille | 275 à 550 pi² |
| Terme | Négociable |
| Taux de location | Sur demande |
| Utilisation de l’espace | Bureau |
| État | - |
| Disponible | 30 jours |
Flexible executive office suites available in the historic St. Charles National Bank Building, located in the heart of downtown St. Charles. Suites range from 140 SF to 550 SF, ideal for solo professionals and small teams. The building offers shared amenities, including a beautifully furnished lobby, reception desk, conference room, kitchenette, and access to a unique historic bank vault from 1932, preserved inside the conference room. Tenants benefit from on-site private parking, ADA-compliant access, and a large public parking lot directly across Cedar Street. Enjoy walkability to shops, restaurants, city offices, and the scenic Fox River. Perfect for professionals seeking a turnkey office environment with a prestigious downtown address.
- 2 bureaux privés
- 1 salle de conférence
- 4 postes de travail
- Espace en excellent état
2e étage
| Taille | 1 079 pi² |
| Terme | Négociable |
| Taux de location | Sur demande |
| Utilisation de l’espace | Bureau |
| État | construction complète |
| Disponible | Maintenant |
Available office suite totaling 1,079 SF located in the St. Charles National Bank Building, a well-maintained Class B property in the heart of downtown St. Charles. The space features two private offices, a conference room that can easily be converted into a third private office, a private restroom, and a kitchenette. Step out onto a private outdoor deck—ideal for breaks or fresh air. The suite includes on-site private parking, and a large public lot across Cedar Drive for clients and guests. Just steps from the Fox River and surrounded by downtown amenities including restaurants, coffee shops, retail, and professional services. Ideal for: Attorneys Accountants Financial advisors Therapists or counselors Architects or design professionals Small professional service firms Remote executives needing private meeting space Lease Rate and Term: Flexible. Perfect for small professional users seeking a polished, downtown presence with flexible layout and modern comfort.
- Le taux inscrit peut ne pas comprendre certains services publics, les services de bâtiment et les dépenses immobilières.
- Entièrement construit comme Bureau standard
- 2 bureaux privés
- 3 salles de conférence
- 2 postes de travail
- Espace en excellent état
APERÇU DE LA PROPRIÉTÉ
Découvrez une occasion rare de louer ou d'investir dans un immeuble de bureaux multi-locataires de premier plan situé au cœur du centre-ville de St. Charles. Cette propriété commerciale de classe B, bien entretenue, s'étend sur trois adresses interconnectées—202 W Main St, 3 N 2nd St et 9 N 2nd St—totalisant environ 17 868 pieds carrés d'espace de bureaux professionnels. Située à l'intersection signalée de Main Street (Route 64) et N 2nd Street (Route 31), cette propriété d'angle très visible offre un accès inégalé, une grande accessibilité à pied et une présence professionnelle dans l'un des corridors les plus dynamiques du centre-ville de la vallée de Fox. **Caractéristiques principales :** - Taille totale du bâtiment : ±17 868 pi² - Plusieurs configurations de suites disponibles—idéales pour une occupation par un seul locataire ou plusieurs locataires - Entrées privées et partagées - Mélange de bureaux privés, espaces ouverts, salles de conférence et zones de pause - Stationnement privé sur place, avec stationnement public supplémentaire directement en face - Opportunités de signalisation de premier plan sur deux artères principales (Route 64 & Route 31) - À quelques pas de la rivière Fox, des bâtiments municipaux, des restaurants, des boutiques et des lieux de divertissement **Idéal pour :** - Cabinets d'avocats, comptables et conseillers financiers - Professionnels de la santé ou du bien-être - Agences de marketing et de création - Bureaux immobiliers, d'assurance ou de prêts hypothécaires - Utilisateurs de technologies ou bureaux à distance - Opérateurs de suites exécutives ou fournisseurs d'espaces de coworking Ce bâtiment géré de manière professionnelle offre aux locataires et visiteurs un caractère architectural classique, une fonctionnalité moderne pour les bureaux et une commodité inégalée—tout cela au cœur d'un centre-ville en pleine croissance et accessible à pied. Les conditions de location sont négociables. Renseignez-vous dès aujourd'hui pour connaître la disponibilité des suites, les prix ou les options d'investissement.
- Affichage
FAITS SUR LA PROPRIÉTÉ
SÉLECTIONNER DES LOCATAIRES
- ÉTAGE
- NOM DU LOCATAIRE
- SECTEUR
- 2ᵉ
- Ameriprise Financial
- Finance et assurances
- 1ᵉʳ
- Hightower Advisors
- Finance et assurances
- 1ᵉʳ
- Meyers & Flowers
- Services professionnels, scientifiques et techniques
- 1ᵉʳ
- Team Rehabilitation Physical Therapy
- Soins de santé et assistance sociale
- 2ᵉ
- Vanek, Larson & Kolb LLC
- -
Présenté par
202 W Main St
Hmm, il semble y avoir eu une erreur lors de l’envoi de votre message. Veuillez réessayer.
Merci! Votre message a été envoyé.









