Votre courriel a été envoyé.
Jenks Hwy 75 Office and Land Development 204 S Gateway Pl 3 000–12 000 pi² d'espace disponible • Bureau • 4 étoiles • Jenks, OK 74037



Certaines informations ont été traduites automatiquement.
Faits saillants
- Conception d'architecture supérieure pour l'utilisateur le plus discriminant
- Concevez votre espace sur mesure
- Bâtiment fortement éclairé la nuit grâce à un éclairage à bande DEL
Tous les espaces disponibles(2)
Afficher les taux de location en
- Espace
- Taille
- Terme
- Taux de location
- Utilisation de l’espace
- Aménagement
- Disponible
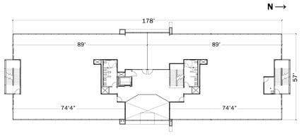
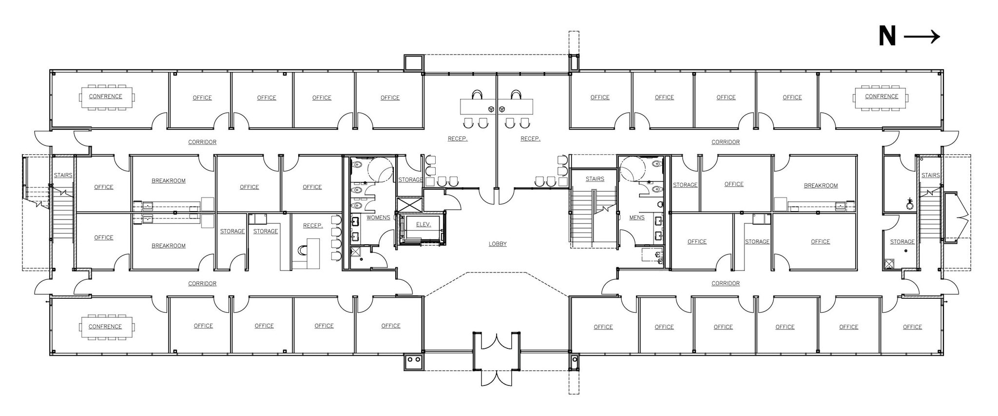
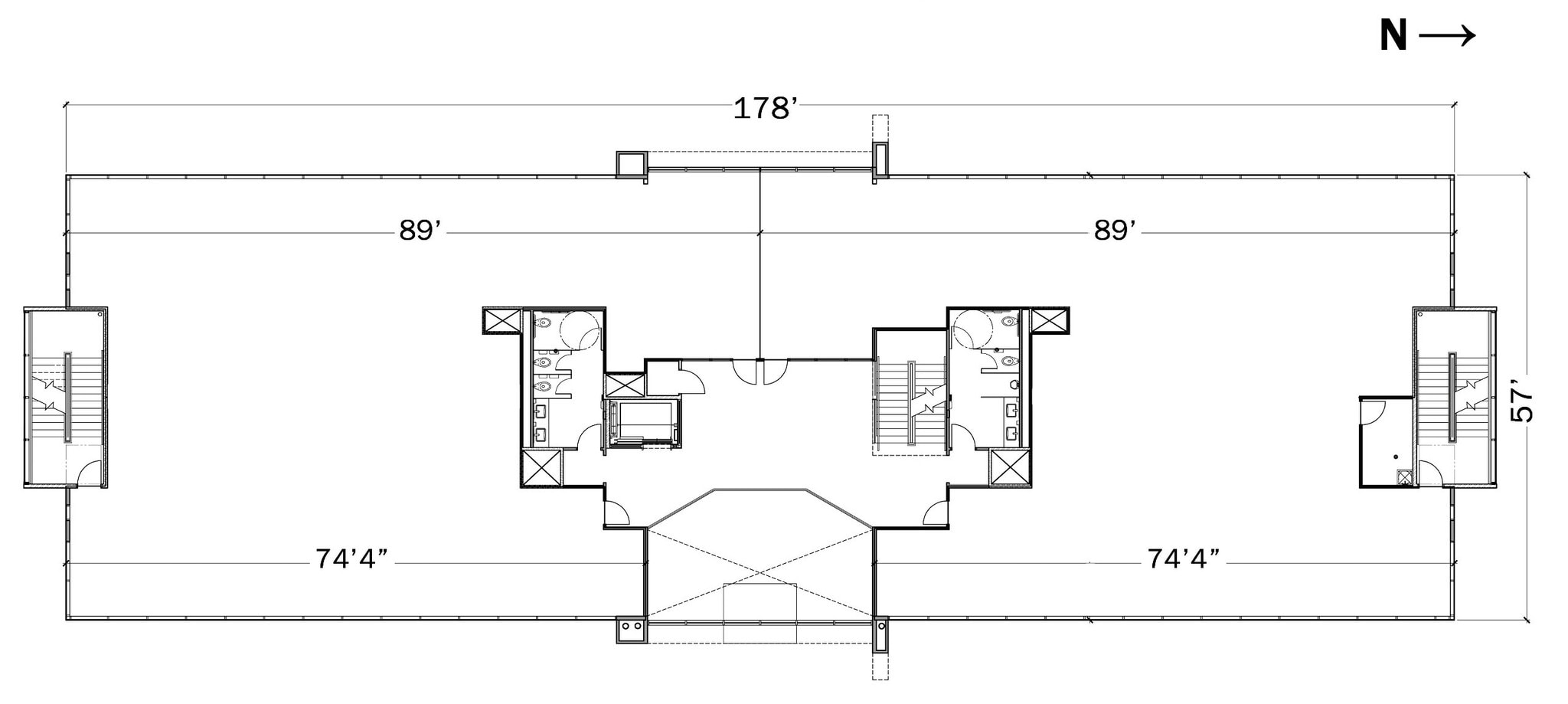
Superb New A Class Office space available early 2019 Lease sizes ranging from 2,000 – 20,000 RSF Tenant Suites with ceiling height of 10’-0” Large open ceiling atrium overlook to all floors Condominium unit purchase also available; sizes from 10,000 RSF Custom Design services/improvement packages available
- Convient pour 7 à 48 personnes
- Plafonds finis: 10’
- Air central et chauffage
- Accès aux ascenseurs
- Système de sécurité
- Plafond suspendu
- Éclairage d’urgence
- Bureaux partitionnés
- Espace en excellent état
- Connectivité Wi-Fi
- Balcon
- Hauts plafonds
- Lumière naturelle
New A Class Office planned 2025 Lease sizes ranging from 3,000 – 6,000 RSF (actual sizes TBD) Tenant Suites with ceiling height of 10’-0” Large open ceiling atrium overlook to all floors Condominium unit purchase also available; sizes from 10,000 RSF Custom Design services/improvement packages available
- Convient pour 7 à 48 personnes
- Espace en excellent état
- Plafonds finis: 10’
- Air central et chauffage
| Espace | Taille | Terme | Taux de location | Utilisation de l’espace | Aménagement | Disponible |
| 1er étage, ste 100 | 3 000 à 6 000 pi² | 5-10 ans | Sur demande Sur demande Sur demande Sur demande | Bureau | selon spécifications | 2027-07-01 |
| 2e étage, ste 200 | 3 000 à 6 000 pi² | Négociable | Sur demande Sur demande Sur demande Sur demande | Bureau | selon spécifications | 2027-07-01 |
1er étage, ste 100
| Taille |
| 3 000 à 6 000 pi² |
| Terme |
| 5-10 ans |
| Taux de location |
| Sur demande Sur demande Sur demande Sur demande |
| Utilisation de l’espace |
| Bureau |
| Aménagement |
| selon spécifications |
| Disponible |
| 2027-07-01 |
2e étage, ste 200
| Taille |
| 3 000 à 6 000 pi² |
| Terme |
| Négociable |
| Taux de location |
| Sur demande Sur demande Sur demande Sur demande |
| Utilisation de l’espace |
| Bureau |
| Aménagement |
| selon spécifications |
| Disponible |
| 2027-07-01 |
1er étage, ste 100
| Taille | 3 000 à 6 000 pi² |
| Terme | 5-10 ans |
| Taux de location | Sur demande |
| Utilisation de l’espace | Bureau |
| Aménagement | selon spécifications |
| Disponible | 2027-07-01 |
Superb New A Class Office space available early 2019 Lease sizes ranging from 2,000 – 20,000 RSF Tenant Suites with ceiling height of 10’-0” Large open ceiling atrium overlook to all floors Condominium unit purchase also available; sizes from 10,000 RSF Custom Design services/improvement packages available
- Convient pour 7 à 48 personnes
- Bureaux partitionnés
- Plafonds finis: 10’
- Espace en excellent état
- Air central et chauffage
- Connectivité Wi-Fi
- Accès aux ascenseurs
- Balcon
- Système de sécurité
- Hauts plafonds
- Plafond suspendu
- Lumière naturelle
- Éclairage d’urgence
2e étage, ste 200
| Taille | 3 000 à 6 000 pi² |
| Terme | Négociable |
| Taux de location | Sur demande |
| Utilisation de l’espace | Bureau |
| Aménagement | selon spécifications |
| Disponible | 2027-07-01 |
New A Class Office planned 2025 Lease sizes ranging from 3,000 – 6,000 RSF (actual sizes TBD) Tenant Suites with ceiling height of 10’-0” Large open ceiling atrium overlook to all floors Condominium unit purchase also available; sizes from 10,000 RSF Custom Design services/improvement packages available
- Convient pour 7 à 48 personnes
- Plafonds finis: 10’
- Espace en excellent état
- Air central et chauffage
Aperçu de la propriété
* Nouvel immeuble de bureaux de catégorie A prévu avec un potentiel de vente de terrain de plus de 1 acre * Parc d'affaires Prominent Gateway directement à côté de l'autoroute américaine 75 et de la 96e rue (rue Main de Jenks) * Excellente visibilité sur la route 75 aux États-Unis ; 75 000 vpj * Réseau routier dynamique avec accès vers/depuis les États-Unis 75/Creek Turnpike (364), Riverside Drive et I-44 * Nouveaux développements commerciaux dynamiques à proximité, notamment Tulsa Outlet Malls, Tulsa Hills, The Walk, Riverwalk Crossing et River Spirit Casino * Appeler pour plus de détails sur l'offre à venir
Faits sur la propriété
Présenté par
Jenks Hwy 75 Office and Land Development | 204 S Gateway Pl
Hmm, il semble y avoir eu une erreur lors de l’envoi de votre message. Veuillez réessayer.
Merci! Votre message a été envoyé.





