Se Connecter/S’inscrire
Votre courriel a été envoyé.
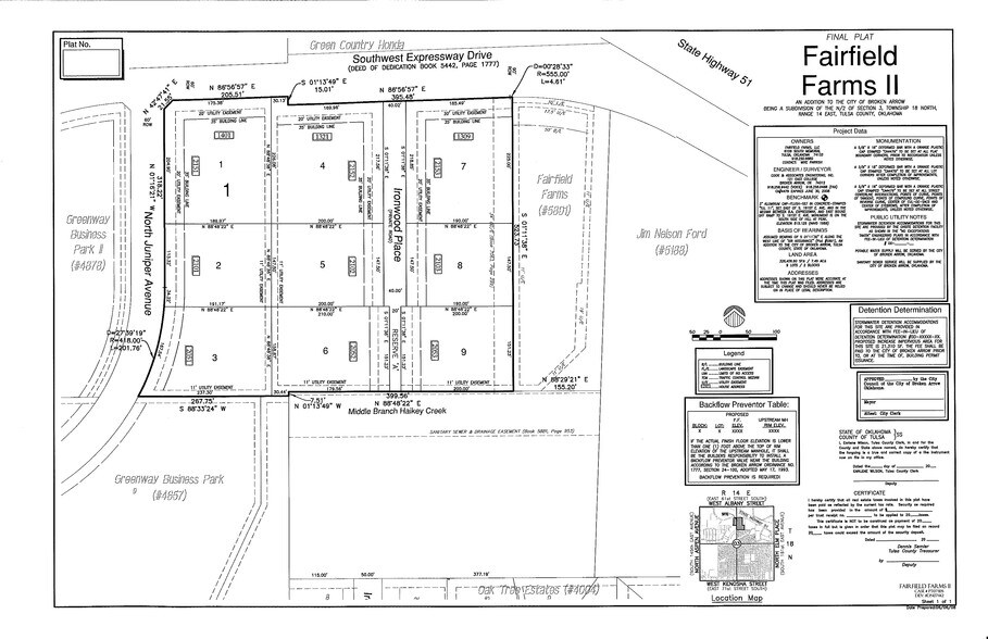
2051 N Juniper Ave - Fairfield Farms Lot 3 Block 1 Lot • Terrain industriel • 0,76 Acres • Broken Arrow, OK 74012



Certaines informations ont été traduites automatiquement.
Résumé de l'annonce
À vendre ou à construire sur demande. Les lots peuvent être combinés pour une propriété supplémentaire. Accès facile à l'autoroute Broken Arrow. Les entreprises de la région comprennent : Bass Pro, l'hôpital St. John's, Air Assurance, Jim Norton Ford, Nelson Nissan, Green Country Honda et Skycam.
Autoroutes Broken Arrow et Elm.
Autoroutes Broken Arrow et Elm.
Faits sur la propriété
| Type de vente | Investissement ou propriétaire utilisateur | Sous-type de propriété | Terrain industriel |
| Condition de vente | Construction sur mesure | Utilisation proposée | Industriel |
| Nombre de lots | 1 | Taille totale du lot | 0,76 AC |
| Type de propriété | Terrain | ||
| Zonage | PUD | ||
| Type de vente | Investissement ou propriétaire utilisateur |
| Condition de vente | Construction sur mesure |
| Nombre de lots | 1 |
| Type de propriété | Terrain |
| Sous-type de propriété | Terrain industriel |
| Utilisation proposée | Industriel |
| Taille totale du lot | 0,76 AC |
| Zonage | PUD |
1 Lot disponible
Lot 1
| Taille du lot | 0,76 AC |
| Taille du lot | 0,76 AC |
1 1
Assez practicable à pied
40/100
Très facile d'accès en voiture
80/100
Assez praticable en vélo
30/100
Impôts fonciers
| Numéro de lot | 98403-84-03-73530 | Évaluation des bâtiments | 0 $ CAD |
| Évaluation du terrain | 2 645 $ CAD | Évaluation totale | 2 645 $ CAD |
Impôts fonciers
Numéro de lot
98403-84-03-73530
Évaluation du terrain
2 645 $ CAD
Évaluation des bâtiments
0 $ CAD
Évaluation totale
2 645 $ CAD
1 de 4
Vidéos
Visite extérieure 3D Matterport
Visite 3D Matterport
Photos
Vue depuis la rue
Rue
Carte
1 de 1
Présenté par
2051 N Juniper Ave - Fairfield Farms Lot 3 Block 1
Vous êtes déjà membre? Connectez-vous
Hmm, il semble y avoir eu une erreur lors de l’envoi de votre message. Veuillez réessayer.
Merci! Votre message a été envoyé.
