Se Connecter/S’inscrire
Votre courriel a été envoyé.
2080 Placentia Ave 8 283 pi² Industriel Immeuble Costa Mesa, CA 92627 7 885 100 $ CAD (951,96 $ CAD/pi²)



Certaines informations ont été traduites automatiquement.
Faits saillants de l'investissement
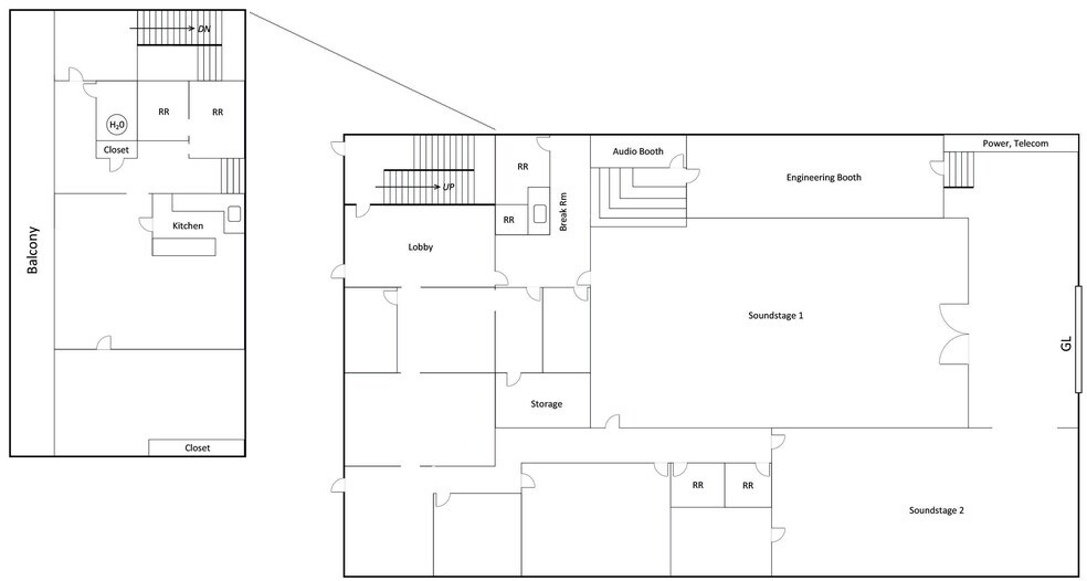
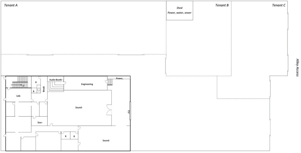
- Two-parcel industrial property with flexible layout and additional outbuilding
- 100% HVAC warehouse -equipped with natural gas service
- 2nd parcel (2086 Placentia) has 600 SF 'out' building (not in SF) with power, water, and sewer connections
- Large yard area and rear alley access for operational efficiency
- Tenants currently on month-to-month lease, offering potential for owner-user or redevelopment
- High visibility street frontage
Résumé de l'annonce
This offering presents a rare opportunity to acquire two contiguous industrial parcels totaling approximately 0.8 acres in the highly desirable Costa Mesa market. The property features a ±8,283 SF main building complemented by a ±600 SF outbuilding, providing flexible space for a variety of industrial uses. The site includes a large yard and rear alley access, enhancing operational efficiency for storage, loading, and distribution.
The building offers a two-story office component of ±3,200 SF, 16-foot clearance, and 400-amp power across four panels. Additional features include 100% HVAC, natural gas service, and convenient access from 16th Street. The property is zoned General Industrial (MG), allowing for a wide range of industrial and creative applications. With a tenant currently on a month-to-month basis, this asset is well-suited for an owner-user seeking immediate occupancy or an investor looking for redevelopment potential in a strong infill location.
Positioned near major transportation routes and within minutes of coastal communities, this property combines functionality with long-term upside in one of Orange County’s most dynamic industrial corridors.
The building offers a two-story office component of ±3,200 SF, 16-foot clearance, and 400-amp power across four panels. Additional features include 100% HVAC, natural gas service, and convenient access from 16th Street. The property is zoned General Industrial (MG), allowing for a wide range of industrial and creative applications. With a tenant currently on a month-to-month basis, this asset is well-suited for an owner-user seeking immediate occupancy or an investor looking for redevelopment potential in a strong infill location.
Positioned near major transportation routes and within minutes of coastal communities, this property combines functionality with long-term upside in one of Orange County’s most dynamic industrial corridors.
Taxes et dépenses d’exploitation (Réel - 2026) Cliquez ici pour accéder à |
Annuel (CAD) | Annuel par pi² (CAD) |
|---|---|---|
| Taxes |
$99,999
|
$9.99
|
| Dépenses d’exploitation |
-
|
-
|
| Total des dépenses |
$99,999
|
$9.99
|
Taxes et dépenses d’exploitation (Réel - 2026) Cliquez ici pour accéder à
| Taxes (CAD) | |
|---|---|
| Annuel | $99,999 |
| Annuel par pi² | $9.99 |
| Dépenses d’exploitation (CAD) | |
|---|---|
| Annuel | - |
| Annuel par pi² | - |
| Total des dépenses (CAD) | |
|---|---|
| Annuel | $99,999 |
| Annuel par pi² | $9.99 |
Faits sur la propriété
Commodités
- Terrain clôturé
- Climatisation
Services publics
- Éclairage
- Gaz - Naturel
- Eau - Ville
- Égout - Ville
1 1
Moyennement praticable à pied
60/100
Exceptionnellement facile d’accès en voiture
90/100
Transports en commun limités
30/100
Moyennement praticable en vélo
70/100
Impôts fonciers
Impôts fonciers
Numéros de lot
Évaluation du terrain
168 611 $ CAD (2025)
Évaluation des bâtiments
429 010 $ CAD (2025)
Évaluation totale
597 621 $ CAD (2025)
Impôts annuels
(1 $) CAD (0,00 $ CAD/pi²)
Année d’imposition
2026
1 de 4
Vidéos
Visite extérieure 3D Matterport
Visite 3D Matterport
Photos
Vue depuis la rue
Rue
Carte
1 de 1
Présenté par
2080 Placentia Ave
Vous êtes déjà membre? Connectez-vous
Hmm, il semble y avoir eu une erreur lors de l’envoi de votre message. Veuillez réessayer.
Merci! Votre message a été envoyé.
