Votre courriel a été envoyé.
Torrance Gateway Distribution Center 20900-20910 Normandie Ave 18 475–38 672 pi² d'espace disponible • Industriel • Los Angeles, CA 90502



Certaines informations ont été traduites automatiquement.
Faits saillants
- Excellent accès aux autoroutes 405 et 110
- Dock-high configuration supports streamlined loading operations.
- Two-story office build-out enhances operational flexibility.
- Stratégiquement situé entre LAX et les ports de LA/Long Beach
- Modern industrial design accommodates a range of users.
- Strategically Located Between LAX & Ports of LA/Long Beach
Caractéristiques
Tous les espaces disponibles(2)
Afficher les taux de location en
- Espace
- Taille
- Terme
- Taux de location
- Utilisation de l’espace
- Aménagement
- Disponible
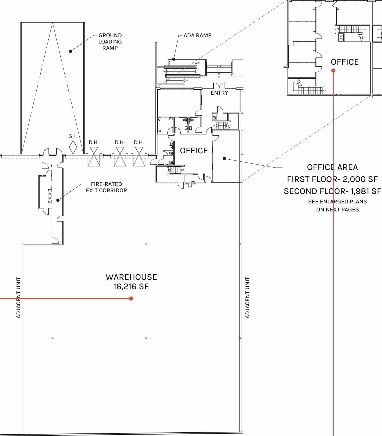
Unit B is a dock-high industrial space featuring multiple dock-high loading positions and one ground-level loading door via ramp. The space includes a highly functional two-story office build-out, providing a strong mix of warehouse and office functionality. Clear heights support efficient storage and racking, while power and sprinkler coverage meet modern industrial requirements. The layout is designed to accommodate distribution, logistics, or light manufacturing users seeking efficient loading and well-integrated office space. Lessee to verify all information. Call broker to show. Operating expenses estimated to be $0.716 PSF/mo.
- Le taux de location ne comprend pas les services publics, les services de bâtiment ou les dépenses immobilières.
- 1 accès plain-pied
- Multiple Dock-High Loading
- Ground-Level Loading Ramp
- Comprend 3 981 pi² d’espace de bureau dédié
- 3 quais de chargement
- Two-Story Office Component
18,475 dock high industrial unit with 4,363 SF of highly functional two-story office space.
- Le taux de location ne comprend pas les services publics, les services de bâtiment ou les dépenses immobilières.
- Espace en excellent état
- 28 pi de dégagement
- Puissance de 200 ampères
- Comprend 4 363 pi² d’espace de bureau dédié
- Plafonds finis: 28’
- Arroseurs ESFR
| Espace | Taille | Terme | Taux de location | Utilisation de l’espace | Aménagement | Disponible |
| 1er étage - B | 20 197 pi² | Négociable | 14,88 $ CAD/pi²/an 1,24 $ CAD/pi²/mois 300 471 $ CAD/an 25 039 $ CAD/mois | Industriel | construction partielle | Maintenant |
| 1er étage - C | 18 475 pi² | Négociable | 14,88 $ CAD/pi²/an 1,24 $ CAD/pi²/mois 274 853 $ CAD/an 22 904 $ CAD/mois | Industriel | construction partielle | 30 jours |
1er étage - B
| Taille |
| 20 197 pi² |
| Terme |
| Négociable |
| Taux de location |
| 14,88 $ CAD/pi²/an 1,24 $ CAD/pi²/mois 300 471 $ CAD/an 25 039 $ CAD/mois |
| Utilisation de l’espace |
| Industriel |
| Aménagement |
| construction partielle |
| Disponible |
| Maintenant |
1er étage - C
| Taille |
| 18 475 pi² |
| Terme |
| Négociable |
| Taux de location |
| 14,88 $ CAD/pi²/an 1,24 $ CAD/pi²/mois 274 853 $ CAD/an 22 904 $ CAD/mois |
| Utilisation de l’espace |
| Industriel |
| Aménagement |
| construction partielle |
| Disponible |
| 30 jours |
1er étage - B
| Taille | 20 197 pi² |
| Terme | Négociable |
| Taux de location | 14,88 $ CAD/pi²/an |
| Utilisation de l’espace | Industriel |
| Aménagement | construction partielle |
| Disponible | Maintenant |
Unit B is a dock-high industrial space featuring multiple dock-high loading positions and one ground-level loading door via ramp. The space includes a highly functional two-story office build-out, providing a strong mix of warehouse and office functionality. Clear heights support efficient storage and racking, while power and sprinkler coverage meet modern industrial requirements. The layout is designed to accommodate distribution, logistics, or light manufacturing users seeking efficient loading and well-integrated office space. Lessee to verify all information. Call broker to show. Operating expenses estimated to be $0.716 PSF/mo.
- Le taux de location ne comprend pas les services publics, les services de bâtiment ou les dépenses immobilières.
- Comprend 3 981 pi² d’espace de bureau dédié
- 1 accès plain-pied
- 3 quais de chargement
- Multiple Dock-High Loading
- Two-Story Office Component
- Ground-Level Loading Ramp
1er étage - C
| Taille | 18 475 pi² |
| Terme | Négociable |
| Taux de location | 14,88 $ CAD/pi²/an |
| Utilisation de l’espace | Industriel |
| Aménagement | construction partielle |
| Disponible | 30 jours |
18,475 dock high industrial unit with 4,363 SF of highly functional two-story office space.
- Le taux de location ne comprend pas les services publics, les services de bâtiment ou les dépenses immobilières.
- Comprend 4 363 pi² d’espace de bureau dédié
- Espace en excellent état
- Plafonds finis: 28’
- 28 pi de dégagement
- Arroseurs ESFR
- Puissance de 200 ampères
Aperçu de la propriété
Located along South Normandie Avenue in the South Bay, this modern warehouse distribution facility offers a highly functional industrial environment designed for efficient logistics and operational performance. The building features dock-high loading capabilities, generous clear heights, and robust power and fire life safety systems to support a wide range of distribution and light industrial uses. A professionally finished two-story office component provides a strong balance of warehouse and administrative space, enhancing day-to-day functionality. The property benefits from excellent regional connectivity with immediate access to the 110 and 405 freeways, placing it strategically between Los Angeles International Airport and the Ports of Los Angeles and Long Beach. This central South Bay location supports streamlined inbound and outbound distribution throughout greater Los Angeles. Positioned within an established industrial corridor, the facility offers the infrastructure, access, and location required by modern users seeking efficiency and proximity to key transportation hubs.
Faits sur l’installation distribution
Présenté par
Torrance Gateway Distribution Center | 20900-20910 Normandie Ave
Hmm, il semble y avoir eu une erreur lors de l’envoi de votre message. Veuillez réessayer.
Merci! Votre message a été envoyé.







