Se Connecter/S’inscrire
Votre courriel a été envoyé.
Certaines informations ont été traduites automatiquement.
Faits saillants de l'investissement
- Freehold Landmark Building.
- Suitable for alternative uses, subject to necessary consents.
- Income producing with asset management potential.
Résumé de l'annonce
The premises are located in a prominent position on Paradise Road, in the heart of Richmond Town Centre. Richmond has excellent transport communications. It is located on the A316 with access to the M3 and in turn the M25; the A4, M4 and A3 are a short distance away. Heathrow Airport is 9 miles to the West of Richmond. Richmond Station is only a short walk away from the premises offering train services to London Waterloo and provides access to the District Line as well as London overground services to Stratford via Willesden Junction and Highbury & Islington.
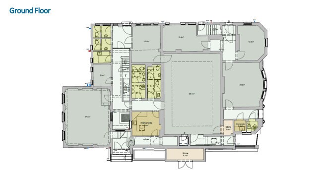
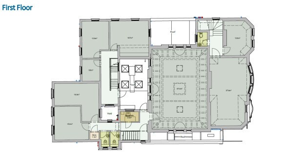
The property is a two-storey, detached, red-brick building located prominently in the heart of Richmond and comprises the former purpose-built Petty Sessions / Magistrates’ Courthouse, designed by architect W.J. Ancell, opened in 1896. Arranged over ground and first floors the building also benefits from basement storage. The specification is a mix of cellular and open plan spaces, WC’s and kitchen areas, with central heating and supplementary comfort cooling. The property is not listed however is a Building of Townscape Merit and located within a conservation area.
The property is a two-storey, detached, red-brick building located prominently in the heart of Richmond and comprises the former purpose-built Petty Sessions / Magistrates’ Courthouse, designed by architect W.J. Ancell, opened in 1896. Arranged over ground and first floors the building also benefits from basement storage. The specification is a mix of cellular and open plan spaces, WC’s and kitchen areas, with central heating and supplementary comfort cooling. The property is not listed however is a Building of Townscape Merit and located within a conservation area.
Faits sur la propriété
Type de vente
Investissement
Type de propriété
Bureau
Ancienneté
Pleine propriété / Bail à long terme
Taille du bâtiment
5 713 pi²
Classe d’immeuble
B
Année de construction
1800
Pourcentage loué
100%
Location
Multiples
Hauteur du bâtiment
2 étages
Superficie de plancher typique
3 662 pi²
Dalle à dalle
10’
Commodités
- Ligne d'autobus
- Système de sécurité
- Éclairage accentué
- Climatisation
Principaux locataires
- Locataire
- Secteur
- pi² Occupé
- Loyer/pi²
- Fin du bail
- Hays Accountancy & Finance
- Services administratifs et de soutien
- 2 044 pi²
- -
- -
- Richmond Parish Lands Charity
- Services
- 800 pi²
- -
- -
- Twcog Llp
- -
- 1 130 pi²
- -
- -
- Vineyard Community
- -
- 578 pi²
- -
- -
- Yoga Bar
- -
- 540 pi²
- -
- -
| Locataire | Secteur | pi² Occupé | Loyer/pi² | Fin du bail | ||
| Hays Accountancy & Finance | Services administratifs et de soutien | 2 044 pi² | - | - | ||
| Richmond Parish Lands Charity | Services | 800 pi² | - | - | ||
| Twcog Llp | - | 1 130 pi² | - | - | ||
| Vineyard Community | - | 578 pi² | - | - | ||
| Yoga Bar | - | 540 pi² | - | - |
1 1
1 de 4
Vidéos
Visite extérieure 3D Matterport
Visite 3D Matterport
Photos
Vue depuis la rue
Rue
Carte
1 de 1
Présenté par
Vestry House | 21-23 Paradise Rd
Vous êtes déjà membre? Connectez-vous
Hmm, il semble y avoir eu une erreur lors de l’envoi de votre message. Veuillez réessayer.
Merci! Votre message a été envoyé.



