Se Connecter/S’inscrire
Votre courriel a été envoyé.
210 Chaffin Pl
Murfreesboro, TN 37129
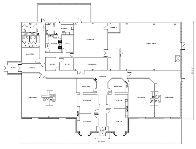
Local d'activités Propriété À vendre


Certaines informations ont été traduites automatiquement.
Résumé de l'annonce
Zoné CH
Faits sur la propriété Sous contrat
Impôts fonciers
| Numéro de lot | 092-088.00-000 | Évaluation des bâtiments | 530 474 $ CAD |
| Évaluation du terrain | 879 627 $ CAD | Évaluation totale | 1 410 101 $ CAD |
Impôts fonciers
Numéro de lot
092-088.00-000
Évaluation du terrain
879 627 $ CAD
Évaluation des bâtiments
530 474 $ CAD
Évaluation totale
1 410 101 $ CAD
1 de 3
Vidéos
Visite extérieure 3D Matterport
Visite 3D Matterport
Photos
Vue depuis la rue
Rue
Carte
