Votre courriel a été envoyé.
Certaines informations ont été traduites automatiquement.
Faits saillants
- Prime High Point location with immediate interstate access
- Six dock-high doors plus one oversized drive-in door
- 32-foot clear height for optimized racking and storage
- ESFR sprinkler system and energy-efficient lighting
Caractéristiques
Tous les espaces disponibles(1)
Afficher les taux de location en
- Espace
- Taille
- Terme
- Taux de location
- Utilisation de l’espace
- Aménagement
- Disponible
With its modern construction, efficient layout, and proximity to intermodal facilities, 210 N. Pendleton Street is an ideal solution for companies seeking a high-performance industrial base in a growth-oriented market.
- Le taux de location ne comprend pas les services publics, les services de bâtiment ou les dépenses immobilières.
- 1 accès plain-pied
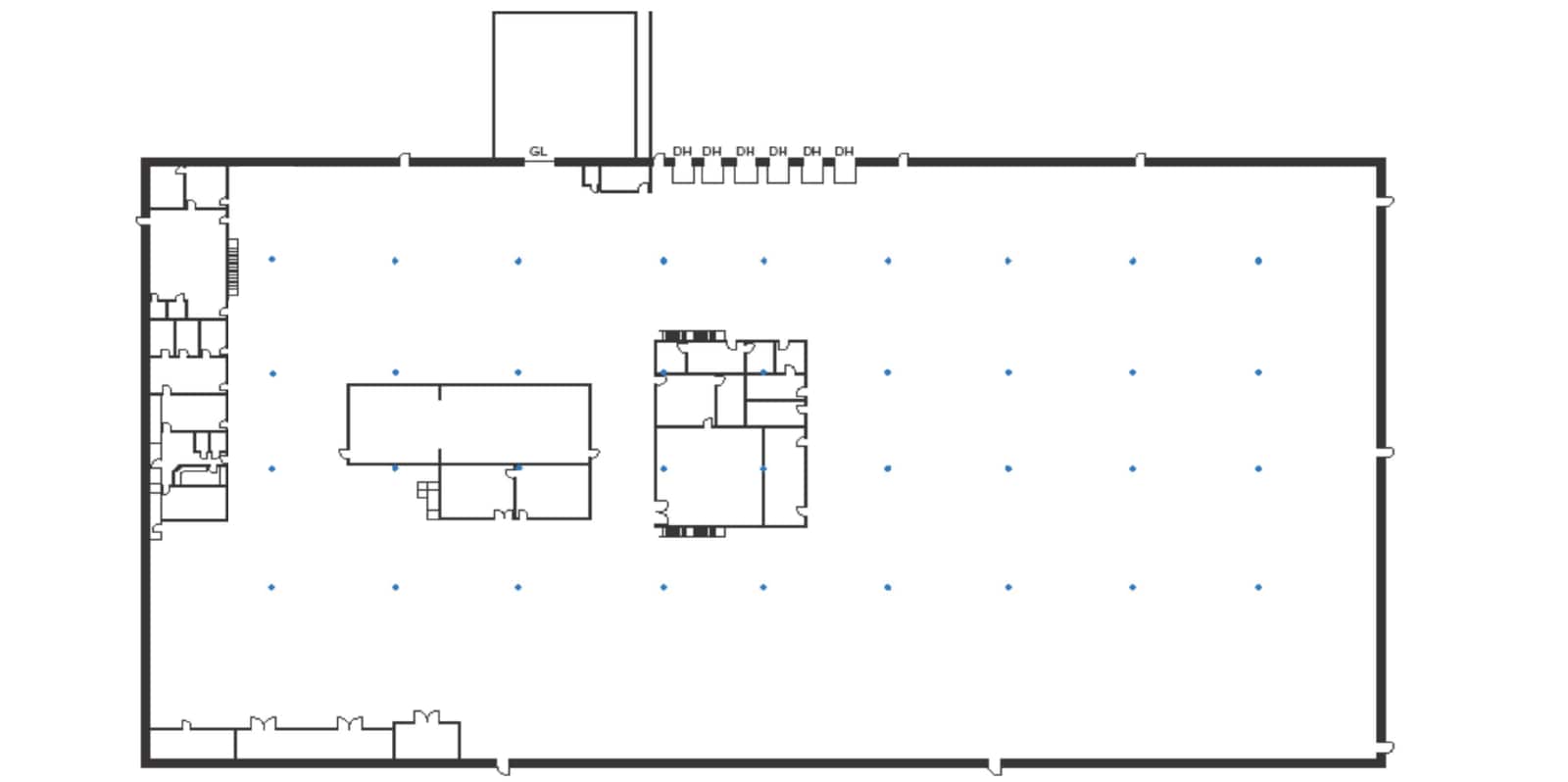
- Dock High Doors: Six (6) 8’ x 10’ w/Pit-Levelers
- Column Spacing: 35’ 0” x 40’ 8” & 45’ 7” x 47’ 0”
- Comprend 6 400 pi² d’espace de bureau dédié
- 6 quais de chargement
- Drive-In Doors: One (1) 12’ x 14’
- Ceiling Height: 32’
| Espace | Taille | Terme | Taux de location | Utilisation de l’espace | Aménagement | Disponible |
| 1er étage | 108 000 pi² | Négociable | Sur demande Sur demande Sur demande Sur demande | Industriel | - | Maintenant |
1er étage
| Taille |
| 108 000 pi² |
| Terme |
| Négociable |
| Taux de location |
| Sur demande Sur demande Sur demande Sur demande |
| Utilisation de l’espace |
| Industriel |
| Aménagement |
| - |
| Disponible |
| Maintenant |
1er étage
| Taille | 108 000 pi² |
| Terme | Négociable |
| Taux de location | Sur demande |
| Utilisation de l’espace | Industriel |
| Aménagement | - |
| Disponible | Maintenant |
With its modern construction, efficient layout, and proximity to intermodal facilities, 210 N. Pendleton Street is an ideal solution for companies seeking a high-performance industrial base in a growth-oriented market.
- Le taux de location ne comprend pas les services publics, les services de bâtiment ou les dépenses immobilières.
- Comprend 6 400 pi² d’espace de bureau dédié
- 1 accès plain-pied
- 6 quais de chargement
- Dock High Doors: Six (6) 8’ x 10’ w/Pit-Levelers
- Drive-In Doors: One (1) 12’ x 14’
- Column Spacing: 35’ 0” x 40’ 8” & 45’ 7” x 47’ 0”
- Ceiling Height: 32’
Aperçu de la propriété
Positioned in the heart of High Point’s industrial corridor, 210 N. Pendleton Street offers a modern distribution facility designed for efficiency and scalability. This ±108,650 SF building features a generous 32-foot clear height, ESFR sprinkler system, and robust infrastructure tailored for high-volume operations. Six dock-high doors with pit levelers and one oversized drive-in door ensure seamless loading and unloading, while motion-sensing T-5 high-bay fluorescent lighting and an in-place air rotation HVAC system create an energy-conscious environment. The property’s strategic location provides direct connectivity to major transportation routes, including Interstates 74, 85, and 40, enabling rapid access to regional hubs. Piedmont Triad International Airport is nearby, supporting air freight needs, and the site sits within 70 miles of Raleigh and 83 miles of Charlotte—two of North Carolina’s largest economic centers. Surrounded by corporate neighbors such as Publix, Lenovo, HondaJet, and Thermo Fisher Scientific, this address places tenants in a thriving logistics and manufacturing ecosystem.
Faits sur l’installation fabrication
Sélectionner des locataires
- Étage
- Nom du locataire
- Secteur
- 1ᵉʳ
- Carolina Container Company
- Fabrication
Présenté par
210 N Pendleton St
Hmm, il semble y avoir eu une erreur lors de l’envoi de votre message. Veuillez réessayer.
Merci! Votre message a été envoyé.






