Votre courriel a été envoyé.
53 +/- Acres With a 32,750 SF Warehouse 211 Martingale Dr 32 750 pi² Vacant Industriel Immeuble Conway, MO 65632 2 050 575 $ CAD (62,61 $ CAD/pi²)



Certaines informations ont été traduites automatiquement.
Résumé de l'annonce
Property located in Conway, MO 1 mile from Exit 113 Interstate-44 just 15 miles from Lebanon, MO and 30 from Springfield, MO. Conway’s strategic value is the strong east-west visibility with quick Interstate connectivity. Land values are going to be cheaper offering less congestion than larger markets and flexible governmental approval processes. Located along the Route 66 historic corridor and adjacent to to Interstate 44 with 20,000 vehicles per day passing by.
Faits sur la propriété
| Prix | 2 050 575 $ CAD | Nombre d’étages | 1 |
| Prix par pi² | 62,61 $ CAD | Année de construction/rénovation | 1987/2025 |
| Type de vente | Investissement ou propriétaire utilisateur | Effacer hauteur du plafond | 24’ |
| Type de propriété | Industriel | Nbre d’entrées dans les portes/au niveau du sol | 3 |
| Taille du lot | 52,91 AC | Zone de développement économique |
Oui
|
| Aire du bâtiment louable | 32 750 pi² | ||
| Zonage | Industrial | ||
| Prix | 2 050 575 $ CAD |
| Prix par pi² | 62,61 $ CAD |
| Type de vente | Investissement ou propriétaire utilisateur |
| Type de propriété | Industriel |
| Taille du lot | 52,91 AC |
| Aire du bâtiment louable | 32 750 pi² |
| Nombre d’étages | 1 |
| Année de construction/rénovation | 1987/2025 |
| Effacer hauteur du plafond | 24’ |
| Nbre d’entrées dans les portes/au niveau du sol | 3 |
| Zone de développement économique |
Oui |
| Zonage | Industrial |
Services publics
- Éclairage
- Gaz
- Eau
- Égout
Disponibilité des espaces
- Espace
- Taille
- Utilisation de l’espace
- État
- Disponible
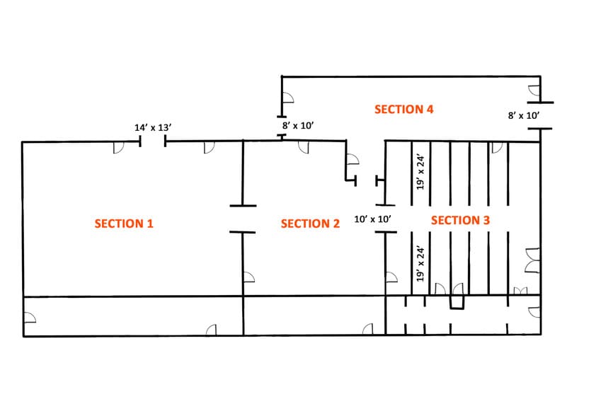
There are 30 +/- acres of usable land that is ideal for future interstate related businesses, heavy commercial or industrial type operations. Excess land available for development for outdoor storage, laydown yard or truck parking. The property has 3 existing billboards that could be utilized for income purposes. The 32,750 SF building could be subdivided into 4 sections and leased out to multiple tenants or be converted to self storage units. The site currently has two (2) tenants on month to month leases taking up about 40% of the building. Property located in Conway, MO 1 mile from Exit 113 Interstate-44 just 15 miles from Lebanon, MO and 30 from Springfield, MO. Conway’s strategic value is the strong east-west visibility with quick Interstate connectivity. Land values are going to be cheaper offering less congestion than larger markets and flexible governmental approval processes. Located along the Route 66 historic corridor and adjacent to to Interstate 44 with 20,000 vehicles per day passing by.
| Espace | Taille | Utilisation de l’espace | État | Disponible |
| 1er Ét. - Bldg | 32 750 pi² | Industriel | - | Maintenant |
1er Ét. - Bldg
| Taille |
| 32 750 pi² |
| Utilisation de l’espace |
| Industriel |
| État |
| - |
| Disponible |
| Maintenant |
1er Ét. - Bldg
| Taille | 32 750 pi² |
| Utilisation de l’espace | Industriel |
| État | - |
| Disponible | Maintenant |
There are 30 +/- acres of usable land that is ideal for future interstate related businesses, heavy commercial or industrial type operations. Excess land available for development for outdoor storage, laydown yard or truck parking. The property has 3 existing billboards that could be utilized for income purposes. The 32,750 SF building could be subdivided into 4 sections and leased out to multiple tenants or be converted to self storage units. The site currently has two (2) tenants on month to month leases taking up about 40% of the building. Property located in Conway, MO 1 mile from Exit 113 Interstate-44 just 15 miles from Lebanon, MO and 30 from Springfield, MO. Conway’s strategic value is the strong east-west visibility with quick Interstate connectivity. Land values are going to be cheaper offering less congestion than larger markets and flexible governmental approval processes. Located along the Route 66 historic corridor and adjacent to to Interstate 44 with 20,000 vehicles per day passing by.
Impôts fonciers
| Numéro de lot | 26-3.0-06-000-000-010.000 | Évaluation des bâtiments | 0 $ CAD |
| Évaluation du terrain | 0 $ CAD | Évaluation totale | 182 647 $ CAD |
Impôts fonciers
Présenté par
53 +/- Acres With a 32,750 SF Warehouse | 211 Martingale Dr
Hmm, il semble y avoir eu une erreur lors de l’envoi de votre message. Veuillez réessayer.
Merci! Votre message a été envoyé.
