Se Connecter/S’inscrire
Votre courriel a été envoyé.
211 S River Ridge Cir
Burnsville, MN 55337
Industriel Propriété À louer
·
9 735 pi²


Certaines informations ont été traduites automatiquement.
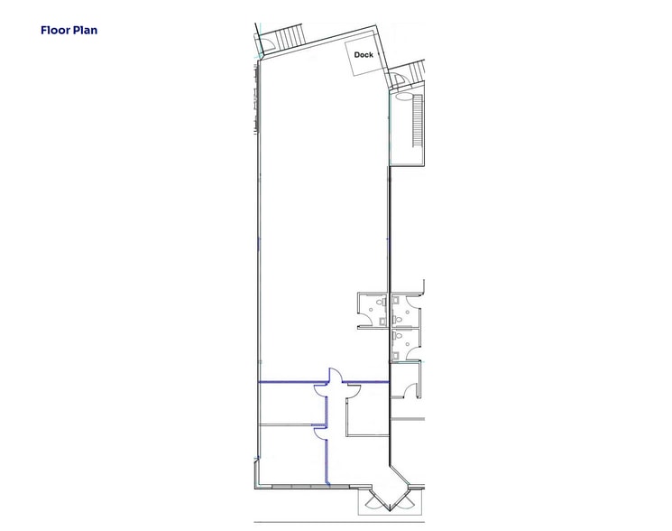
Faits saillants
- Total building size: 20,325 SF
- Convenient Burnsville location with easy access to I-35W and Highway 13
- Quality construction built in 1996
- Professionally managed and well-maintained property
- Combination of office and warehouse space
- Ample on-site parking
Caractéristiques
Hauteur libre
14’
Baies d’entrée
4
Places de stationnement standard
50
Aperçu de la propriété
Well-maintained office/warehouse building located in the desirable River Ridge Business Park in Burnsville, MN. This property offers a functional combination of office and warehouse space suitable for a wide range of light industrial, distribution, or service-oriented businesses. The building features modern construction, convenient access to major highways, and a professional setting ideal for growing companies seeking a clean and efficient workspace.
Faits sur la propriété
Taille du bâtiment
20 568 pi²
Taille du lot
2,12 AC
Année de construction
1996
Construction
Maçonnerie
Zonage
B-3 - Neighborhood Business Arterial
1 de 9
Vidéos
Visite extérieure 3D Matterport
Visite 3D Matterport
Photos
Vue depuis la rue
Rue
Carte
